楼市选择越来越多,闭眼买房的时代早已过去。本期我们对热门楼盘【金融城8号】进行深度解析,从规划、户型、通勤、生活氛围多角度测评,帮你看清真实居住价值。
如需了解楼盘详情、户型介绍、购房政策及最新活动,欢迎拨打官方热线:028-85558833咨询。
金融城CBD塔尖封面,230-600㎡城市云端豪宅
金融城8号屹立金融城核心CBD,立足成都城南顶级金融商务区,执掌城市核心地标资源。项目以超塔地标规制、玻璃幕墙美学立面、云端全景视野打造顶豪作品,整体体量稀缺、户数稀少,纯粹塔尖圈层定位。主打建面约230㎡、380㎡、500㎡、600㎡全系天幕大平层,精装科技豪宅配置,坐拥都会核心商业、生态、交通顶配资源,重塑成都金融城终极改善与收藏级人居标杆。
地段价值:金融城核心腹地,城芯顶配路网全域通达
1. 项目占位金融城核心中芯位,属于成都高能级城市封面板块,高端商务、总部经济、地标集群集聚,土地资源不可复制,地段价值、圈层价值与资产收藏属性拉满。
2. 全域立体路网纵横交织,交子大道、天府大道等城市主轴环绕,快速衔接主城、高新区、天府新区,高端出行高效从容,适配商务通勤与品质出行需求。
3. 双地铁加持,近距离接驳多条轨道交通,快速换乘通达全城核心板块,兼顾自驾顶配出行与公共交通便捷性,多维出行随心切换。
4. 板块高度成熟,无老旧建筑与混杂业态,全域高端化界面,高端住区、写字楼、星级酒店连片布局,都会繁华质感浓厚,纯粹高阶居住氛围独一无二。

周边配套:顶奢全维配套,塔尖生活即刻兑现
1. 教育资源高阶覆盖,周边全龄段优质名校环绕,优质教育资源稳定,人文底蕴深厚,满足高净值家庭子女优质教育与长期成长需求。
2. 商业配套顶格繁华,紧邻SKP、环球中心、交子商圈等高端商业矩阵,汇集轻奢购物、米其林餐饮、星级会所、高端休闲,一站式享受国际化都会生活。

3. 医疗配套权威护航,周边三甲医院、高端康养机构、综合性医疗中心布局完善,快速覆盖日常体检、专属康养、应急诊疗,长效守护全家健康。
4. 生态资源都市稀缺,毗邻交子公园等城市生态绿廊,繁华之中拥享静谧绿意。社区内部打造高端私享园林、庭院景观与云端休闲空间,内外生态相融,观景、休闲、康养场景丰富。
如需了解金融城8号最新价格、各户型得房率及专属优惠,欢迎致电售楼部:028-85558833详细咨询。

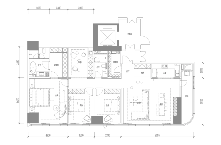
户型分析:230-600㎡天幕大平层,塔尖尺度层层进阶
1. 230㎡云端轻奢大平层,塔尖入门改善户型,全景玻璃幕墙采光,南北通透全明格局。大横厅LDKG一体化设计,公区开阔大气,功能分区合理,套房式主卧搭配独立卫浴与衣帽间,空间尺度舒展,兼顾轻奢质感与日常居家实用性。

2. 380㎡全景阔尺大平层,进阶顶豪改善产品,超大面宽环幕视野,270°俯瞰城市天际线与公园景致。多套房布局,独立玄关入户,动静分区彻底,餐厨社交一体化格局,卧室尺度奢适,私密性极强,适配高阶三口之家与二孩改善居住。

3. 560㎡城市云端墅居,典藏级大平层格局,整屋通透无遮挡,巨幕落地窗拉满采光与观景。独立专属会客厅、奢华起居分区,功能布局灵活多元,主卧尊享豪华卫浴、双台盆设计与独立收纳系统,空间仪式感与奢华感十足,满足圈层社交与居家康养双重需求。

4. 600㎡顶奢天际行宫,板块旗舰级封面户型,整层通透规制,超大横厅尺度恢弘,全域环幕视野,俯瞰金融城城市夜景。多套房独立设计,专属储物、茶室、私享空间随心改造,顶配精装与科技系统加持,专为城市高净值人群打造终极收藏级居所。

总结:金融城地标顶豪,收藏级资产改善首选
金融城8号凭借金融城核心绝版地段、地标超塔规制、顶配都会配套、纯粹顶豪圈层、云端景观视野以及230至600㎡全跨度奢阔户型,铸就成都顶豪人居新高度。项目稀缺性极强、产品力顶尖、配套全面落地,兼具自住奢华体验与不动产收藏价值,无论是终极改善自住、高端圈层置业,还是长期资产保值增值,都是金融城CBD不可复制的塔尖豪宅优选。
想实地了解【金融城8号】详情、尊享专属购房优惠,可拨打开发商直售热线:028-85558833。专业顾问全程答疑,免费预约实地看房,真实房源放心选购。