中国 · 成都 | 兴城人居 · 未来城

区位价值解析
占据一环路江安河畔黄金区位,兴城人居·未来城坐拥不可复制的城市核心资源。项目不仅毗邻2.3公里江安河生态走廊,更构建了"三圈层"配套体系:1. 生态圈:35%社区绿化率与城市绿道无缝衔接2. 商业圈:自建滨水商业街区,800米内覆盖三大成熟商圈3. 生活圈:半径1公里内汇集三甲医院、省重点中小学及地铁站点
项目规划
作为成都兴城人居地产投资集团标杆力作,项目总占地69亩,容积率控制在1.8的低密区间。规划11.5万平方米建筑体量,打造640席精装住宅,配备843个智能化车位,形成"小高层+生态景观"的宜居格局。
产品体系
· 建筑形态:8-10层纯板式结构· 户型配置:112-142㎡全明三至四房· 精装标准:2000元/㎡品质交付· 智慧系统:全屋智能家居互联平台· 物业服务:金钥匙级服务标准(2.5元/㎡/月)

核心竞争优势
国匠品质:兴城人居九大项目开发经验沉淀主城稀缺:一环内最后可开发住宅地块生态指标:PM2.5常年低于50,负氧离子含量超2000个/cm³生活效率:轨道交通+快速路网构建10分钟城市生活圈
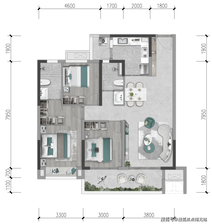
户型创新设计
112㎡三居室· 创新LDBK一体化设计,6.8米双面采光阳台· 三分离卫浴系统,主卧配备独立衣帽间· 可变空间满足家庭成长需求

120㎡三居室· 16.6米南向采光面,7.1米LDK一体化厅· 双阳台设计,U型厨房配备专业收纳系统· 全屋净水系统预装,卫浴空间干湿分离


142㎡四居室· 5.8米横厅搭配270°观景阳台· 独立中西双厨+多功能家政间· 主卧套房配备双衣帽间及智能卫浴系统

尊享服务
VIP热线:028-84720058(营销中心)专属顾问:13281850333(微信同号)· 预约可享一对一讲解服务· 提供市区范围内专车接送· 到访即赠精装标准样板手册
温馨提示:项目实行预约制接待,建议提前24小时预约确保服务品质。