成都「复地金融岛商铺」臻稀席位限量发售,抢占黄金旺铺良机!热销户型全面解析,限时钜惠倒计时,权威投资前景深度剖析,VIP专属置业通道正式开通。

搜狐焦点南充站

2025-08-22 20:42:00

购房群

买房如何避坑,加入购房群,看看他们怎么说

立即进群

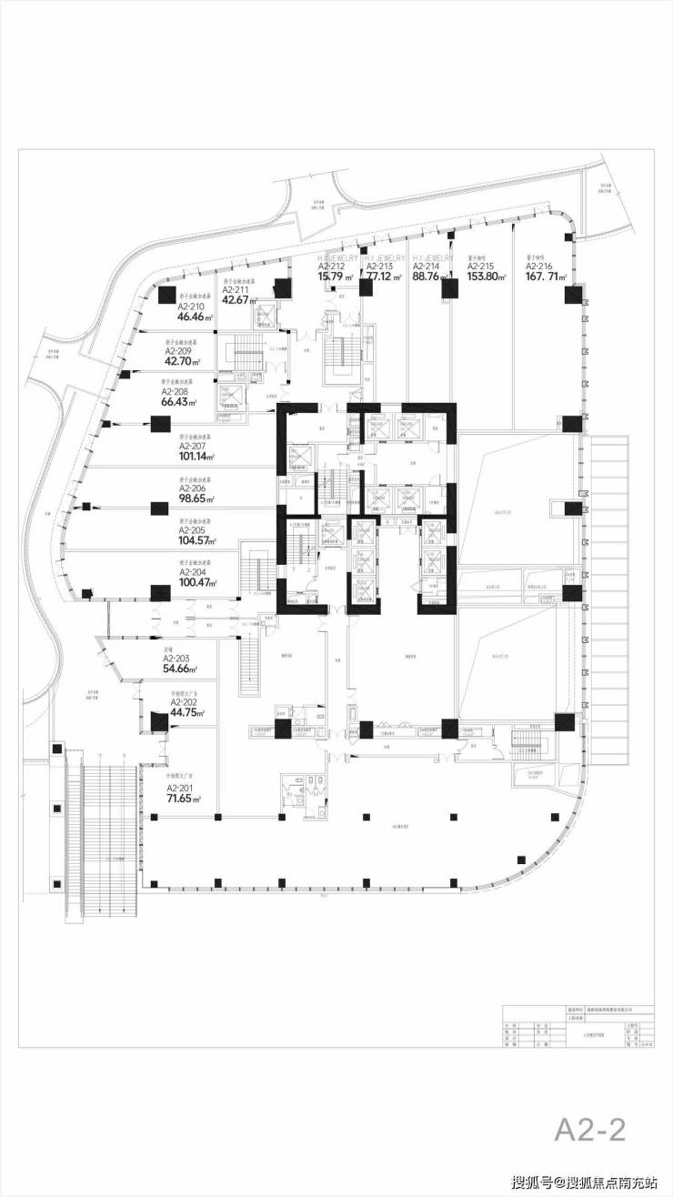
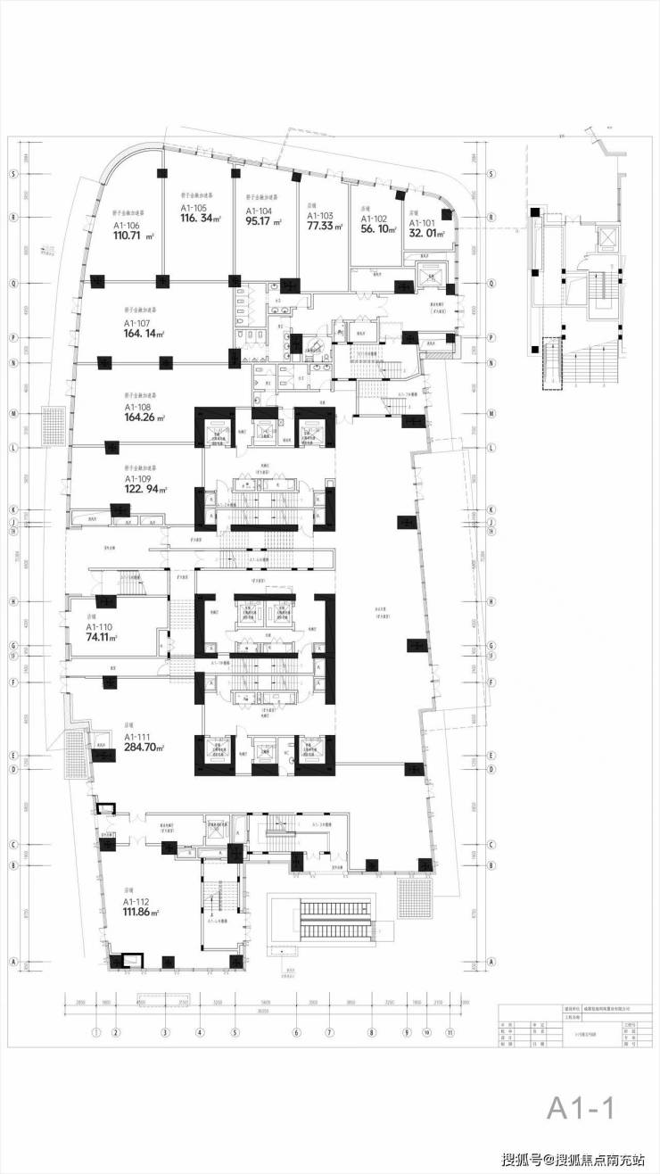
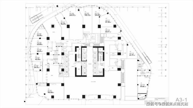
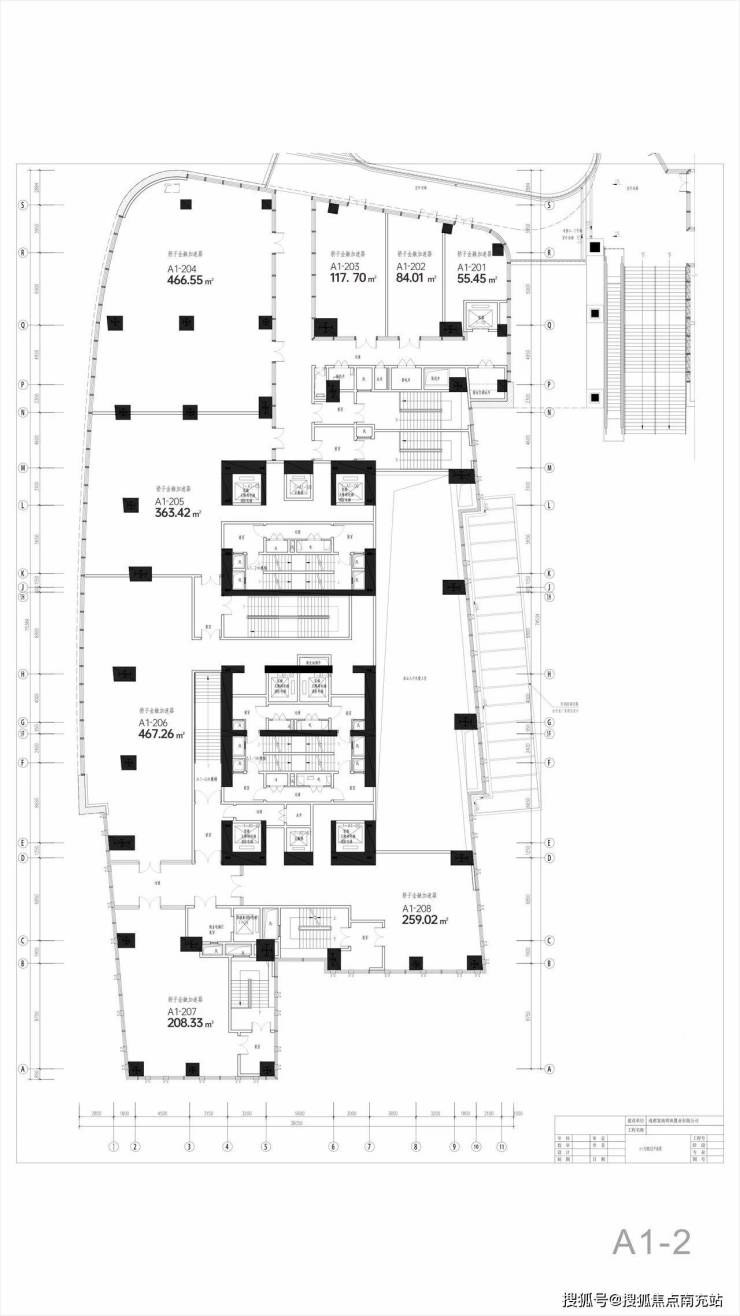
【复地金融岛商铺】售楼部热线 028 62444811(已认证)【复地金融岛商铺】客户经理热线 15388440405(微信同号)在此温馨提示:若您想要获得更优质、更高效的接待服务,前往看房前请提前致电售楼部进行预约!另外,项目还提供看房车接送服务,若您有此需求,同样请致电售楼部进行预约 。### 十年金融城,唯一金融岛滨江商业街品牌租约现铺限量发售,30 - 400㎡全业态吸金铺来袭

### 【基础信息】- **占地面积**:350亩- **业态分布**:项目业态丰富多元,涵盖高端住宅、酒店、总部办公、大平层公寓、购物中心以及滨江商业街等多种类型。- **总套数**:46间- **价格区间**:一楼每平米价格在4 - 6万,二楼每平米约2.5万左右。- **总层数**:共2层- **层高规格**:1F层高为6米,2F层高为5.4米- **经营业态**:全业态(且带有外摆空间)- **付款方式**:支持全款或按揭付款- **公摊比例**: 28%- **拿地时间**:2015年- **交房时间**:2017年- **物业费**:19 元/m²- **交房标准**:以现状交付(大部分商铺还带有租约)- **销售面积**:销售面积范围为30 - 400㎡,主力面积区间在60 - 100㎡### |核心卖点|位于金融城的全业态现铺,带有品牌租约,并且是区域内目前唯一在售的商铺。### |经营价值|项目尽享金融城1、2期的成熟配套资源,同时坐拥金融城3期的巨大发展潜力。周边5Km范围内汇聚了百万人流,客源丰富。### |收藏价值|作为成都独一无二的江岛商业项目,拥有唯一的滨江商街和水秀广场,极具收藏意义。### 【区域价值】

#### 【岛上业态完善】岛上的业态十分完备,包含住宅、酒店、写字楼、公寓、艺术中心、购物中心以及商业街等。这里自带高净值人群,消费能力强劲。而且其CBD业态布局合理,具备百万级别的人口吸附能力

。#### 【金融城唯一滨江在售现铺】主力面积在60 - 100㎡之间,带有租约,不仅收益高,而且转手容易。360°环江街区旺铺,开放式布局使其拥有超强的昭示性。可24h经营,能满足全时段的消费人群需求。项目实行统一运营管理,有效避免了业态失控的情况。此外,商铺背靠购物中心,能够自带客流,便于进行引流

【复地金融岛商铺】售楼部热线 028 62444811(已认证)【复地金融岛商铺】客户经理热线 15388440405(微信同号)温馨提示:为了给您提供更高品质的接待服务,看房请提前致电售楼部预约!【有看房车接送服务,如需预约,请致电售楼部】

全部

相关资讯

报名成功
稍后会有专业的置业顾问联系您
返回楼盘

频道导航

返回首页

看房小程序

APP下载

电话拨通后,请您手动拨打分机号

确定拨打电话

电话号码:

分机号:(可能需要拨分机号)