成都「兴唐新川雅境」楼盘热线:户型解析+价值评测+房价动态,专业顾问一对一咨询,助您把握置业良机

搜狐焦点南充站

2025-06-25 10:05:00

购房群

买房如何避坑,加入购房群,看看他们怎么说

立即进群

新川雅境营销中心专属热线 028-84720058(官方认证)

新川雅境项目负责人直通专线 13281850333(支持微信咨询)

重要提示:为保障客户尊享服务体验,样板房参观需提前致电预约登记!

【项目配备专属看房接送服务,具体预约方式请咨询营销中心】

当下房地产行业正经历全面品质升级的新阶段。

从户型规划、园林打造、外立面设计到精装细节等各方面都在不断突破,部分开发商甚至采取降价促销策略。但作为高新南区的核心价值板块,该区域始终致力于满足高端改善型置业需求,只有那些真正从居住者实际生活需求出发的创新项目,才能在激烈的市场竞争中脱颖而出。

区别于简单粗暴的价格竞争策略,新川雅境开发商深谙价格战犹如饮鸩止渴——既损害购房者权益,又破坏区域价值体系,更对企业可持续发展造成伤害。当项目利润空间被过度压缩,往往导致工程减配,最终引发交付纠纷。

基于此,项目方自2023年5月起便确立"品质升级"战略,历时三个月对社区景观体系、公共空间、地下车库及户型功能进行全面优化。通过实地调研业主需求,结合项目特质完成系统性提升,真正实现"品质内卷"的价值突破。

立体化生活配套体系:

· 都会生活圈:3号邻里中心、时光里美食街、新川中心等成熟商业环伺

· 全龄教育矩阵:蒙彼利埃小学、教科院附属学校集群、金苹果锦城一中等20余所优质学府

· 轨道交通优势:地铁6号线新通大道站便捷可达

· 生态资源禀赋:坐拥滨河双湿地系统,毗邻新怡公园与新川之心城市绿肺

准现房核心价值:

1. 即买即住优势:显著缩短交付周期,快速解决居住需求,同步节省租房成本

2. 实体呈现保障:购房者可实地验证社区规划、楼栋间距、采光通风等关键指标,规避"效果图陷阱"

3. 风险管控机制:兴唐地产创新采用"实景开放+延期开盘"模式,确保产品兑现度

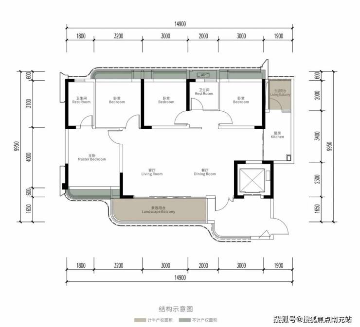
匠心户型解析:

132㎡四室两厅环幕平层:创新LDKB一体化设计,实现空间效能最大化

143㎡四室两厅瞰景平层:270°景观视野,重构人居与自然的对话关系

值得关注的是,新川雅境特邀龙湖智创生活担纲物业服务,以智慧化服务体系护航品质生活。开发商兴唐地产虽非本土龙头,却敢于突破行业惯例,通过延长开发周期确保实景呈现,从根本上保障购房者权益。

新川雅境营销中心咨询专线 028-84720058(官方认证)

新川雅境项目总监直联电话 13281850333(支持微信沟通)

特别提醒:为确保专属服务品质,参观样板间需提前电话预约登记!

【项目提供免费看房专车接送,预约详情请致电营销中心】

全部

相关资讯

报名成功
稍后会有专业的置业顾问联系您
返回楼盘

频道导航

返回首页

看房小程序

APP下载

电话拨通后,请您手动拨打分机号

确定拨打电话

电话号码:

分机号:(可能需要拨分机号)