【高投启鸣宸序】售楼部电话:028-62444811(已认证)
【高投启鸣宸序】销售经理电话:15388440405(微信同号)
温馨提示:咨询楼盘信息及优惠政策,可致电售楼处,线上看房可享内部优惠。
高投启鸣宸序位于高新区新川路与新通南三路交汇处的西南角,属于新川板块且位于新川创新科技园范围内,算是最根正苗红的“新儿”。新川作为高新区的一个新开发片区所有的道路、景观、建筑都是新修的,给人一种很新很整洁的第一印象。

成都高投启鸣宸序6大核心优点:
1.国企硬核保障:高新高投国企开发(建天府软件园/铁像寺水街),交付零风险,新川首个新规红盘,资产抗跌性拉满
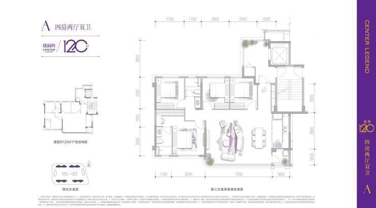
2.新规王炸得房:高新首个新规产品,120㎡得房率约107%=老规143㎡,143㎡得房率约111%=老规170㎡,2T2纯板楼+独立入户光厅,实得碾压同圈
3.低密纯改圈层:容积率2.5,全17F小高层,383户纯120-143㎡四房无刚需,1楼全架空(健身/亲子/书吧),中海物业加持,圈层纯粹
4.户型越级能打:120㎡7米横厅40㎡,143㎡双套房+11㎡大厨房+270°圆弧落地窗,封窗交付,全系四房满足全龄改善,居家实用性拉满
5.新川核芯配套:一街之隔上海师大海川K12(25年开学),步行500米地铁6号线,1km到865亩新川之心,2km万象天地(在建)+三甲医院,配套全兑现
6.臻装舒居拉满:3000元/㎡精装带格力中央空调+威能地暖+百朗新风,玄关收纳/双台盆等10+人性化细节,安缦风园林+13座假日花园,下楼即度假。
【户型鉴赏】
建面约120平套四
建面约143平套四
建面约143平套四
我们一直在说,中国房地产正在迎来新的发展模式。在这个楼市大变局时刻,市场主体顺势而为、主动迎接新发展模式,是必然抉择。
【高投启鸣宸序】售楼部电话:028-62444811(已认证)
【高投启鸣宸序】销售经理电话:15388440405(微信同号)
温馨提示:咨询楼盘信息及优惠政策,可致电售楼处,线上看房可享内部优惠。