都江堰「人居未来城」售楼处电话-楼盘详情-6月最新销售价格

搜狐焦点南充站

2025-06-09 17:13:00

购房群

买房如何避坑,加入购房群,看看他们怎么说

立即进群

中国 · 成都 | 兴城人居 · 未来城

### 项目概况人居未来城,由成都兴城人居地产投资集团精心打造。其地处一环路江安河畔的黄金地段,地理位置得天独厚。该项目占地面积达 69 亩,总建筑面积为 11.5 万平方米。整体规划了 640 户精品住宅,容积率仅 1.8,较低的容积率意味着更少的居住人口和更开阔的空间。同时,项目绿化率高达 35%,营造出低密宜居的生态社区环境,为业主提供舒适惬意的居住氛围。### 核心参数- **产品类型**:8 - 10 层精装电梯洋房,彰显高品质居住体验。- **主力户型**:涵盖 112 - 142㎡的三至四房,能够满足不同家庭结构的居住需求。- **参考均价**:10000 - 13000 元/㎡,在该地段具有一定的性价比。- **梯户配置**:1 梯 2 户/1 梯 3 户,保障业主出行便捷。- **车位配比**:1:1.3(共 843 个),充分满足业主停车需求。- **物业服务**:2.5 元/㎡/月(暂定),为业主提供优质的物业服务。

### 区位价值兴城人居·未来城作为主城一环的稀缺新作,拥有三大核心显著优势:1. **生态资源**:项目紧挨着江安河生态走廊,与世界遗产距离近在咫尺。这里全年平均气温保持在 10 - 22℃,气候宜人。而且,区域内负氧离子含量极为丰富,为业主提供清新健康的空气环境,仿佛置身于天然氧吧之中。2. **商业配套**:项目自建滨河商业街区,为业主的日常生活提供了极大的便利。并且,仅需 5 分钟即可到达成熟商圈,从日常购物到休闲娱乐,全龄段的生活需求都能在这里得到充分满足。3. **教育资源**:周边构建了 3 - 18 岁的全龄教育体系,让孩子在家门口就能享受到优质教育资源。同时,项目周边还有众多优质医疗资源环绕,为业主及其家人的健康保驾护航 。

### 产品亮点1. **国企匠造**:兴城人居作为成都本土国企的标杆企业,凭借九大精品项目在市场上树立了良好的品质口碑。其对于品质的执着追求和严谨的匠心精神,在未来城项目中得到了充分体现。2. **智慧社区**:项目引入浙江未来社区的先进理念,配备智能家居系统。业主通过手机即可实现远程管控,无论是控制家电设备还是查看家中情况,都变得轻松便捷,为业主带来智能化的现代生活体验。3. **稀缺地段**:项目位于主城核心区,此地土地储备稀缺。坐落在这样的地段,不仅享受着当下城市发展的各项成熟配套,更能坐享城市持续发展带来的红利,具有较高的投资价值。4. **立体交通**:多维路网交织,构建起高效的出行体系。业主无论是自驾还是选择公共交通,都能够快速通达全城各个区域,有效节省出行时间。

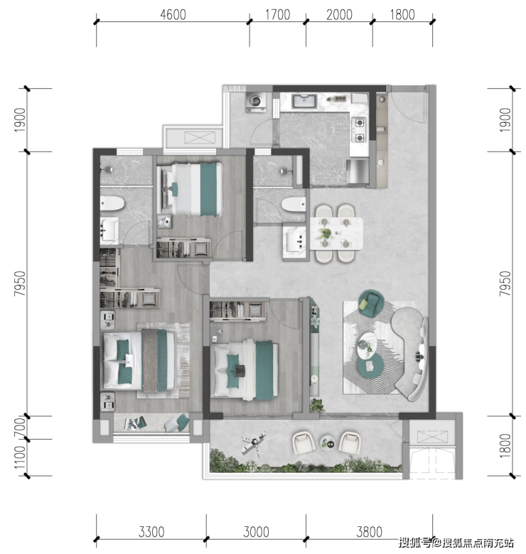
### 户型解析#### 112㎡三居户型呈现南北通透的全明格局,阳光可以毫无阻碍地照进室内,保证了室内的明亮与温暖。同时,还配备 6.8 米景观阳台,让业主在家中就能欣赏到室外的美景。L 型科学厨房布局,操作流畅,空间利用合理。主卧采用套房设计,为业主提供舒适私密的休息空间。

#### 120㎡三居该户型拥有 16.6 米全景采光面,充足的采光让室内更加通透明亮。7.1 米阔绰客厅,营造出宽敞大气的空间感。6.6 米观景阳台,让业主在休闲时光可以尽情享受户外的风景。明厨还配备生活阳台,既保证了厨房的明亮通风,又增加了生活的便利性。

#### 140㎡四居户型中的 5.8 米横厅连接观景台,视野开阔,空间感十足。中式宴会级餐厅,为家庭聚餐和宴请宾客提供了宽敞且大气的场所。全屋飘窗设计,不仅增加了室内的使用空间,还提升了居住的舒适度。主卧配备步入式衣帽间,满足业主对于衣物收纳和品质生活的追求。

### 预约通道售楼部热线:028 - 84720058(官方认证)客户经理专线:13281850333(微信同号)温馨提示:为确保为您提供优质、周到的服务,看房需提前预约。项目还提供专属看房车接送服务,让您的看房之旅更加轻松便捷。

全部

相关资讯

报名成功
稍后会有专业的置业顾问联系您
返回楼盘

频道导航

返回首页

看房小程序

APP下载

电话拨通后,请您手动拨打分机号

确定拨打电话

电话号码:

分机号:(可能需要拨分机号)