### 人居麓湖林语——现房精装叠墅,打造品质居住典范人居麓湖林语秉持为您打造高品质居住体验的理念,以现房精装叠墅这一产品形态呈现在您面前。预约专线:028 - 84720058置业顾问直线:13281850333(微信同步)温馨提示:为保障服务质量,本项目看房采用预约制,请您提前致电登记。【免费看房专车服务需提前预约】
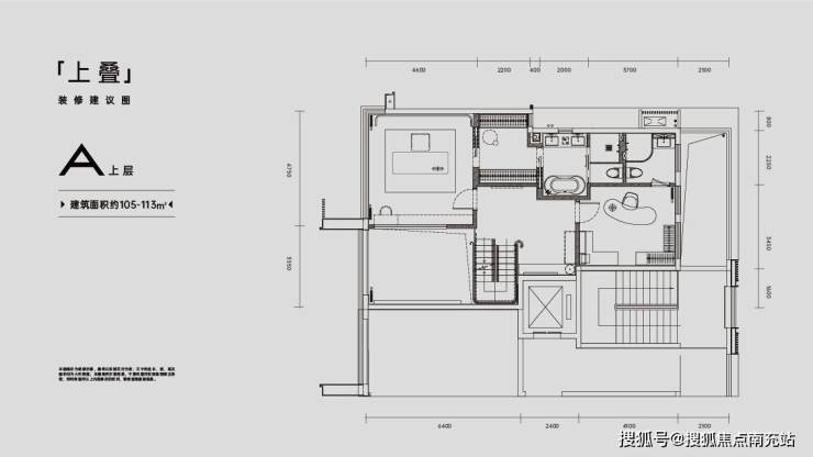
### 核心产品参数人居麓湖林语为满足不同居住需求,推出了多种叠墅户型:- 上叠户型:建筑面积处于105 - 113㎡之间,实际可获得面积达270㎡,总价450万起。在有限的建筑面积内,巧妙地为您拓展出宽敞舒适的生活空间。- 中叠户型:建筑面积在103 - 115㎡范围,实际可得面积200㎡,总价350万起。其合理的面积规划,为家庭居住营造出温馨的环境氛围。- 下叠户型:建筑面积范围是157 - 227㎡,实际可得面积400㎡以上,总价650万起。奢阔的空间,能给予您极致的居住享受。

### 战略区位解析人居麓湖林语雄踞天府新区麓湖生态城的核心地段,地理位置得天独厚。它被锦江千年水脉与8300亩麓湖双水系环绕,宛如一颗耀眼的明珠镶嵌在这风水极佳之地。并且,该项目位于天津路豪宅走廊的黄金地段,周边高端住宅项目众多。作为麓湖板块首批精装现房产品,凭借卓越品质重新定义了高端叠墅的生活标准,为业主带来与众不同的居住体验。
### 麓湖价值深度解读麓湖作为规划面积达8300亩的生态示范区,历经多年精心打造,已发展成为集高端居住、产业集群以及休闲配套于一体的城市标杆区域。区域内,2100亩生态湖区与3450亩天府公园共同构筑起天然氧吧,让人们时刻都能呼吸到清新的空气,尽情享受大自然的馈赠。商业配套方面,5万㎡麓坊中心与规划中的50万㎡水上太古里(麓湖水镇)形成强大的商业矩阵,无论是日常购物还是高端消费,都能满足业主的多元化需求。教育资源上,天府七中、元音书院等优质学府分布在项目周边,构建起全龄段精英教育体系,为孩子的成长和发展奠定坚实的教育基础。### 精装户型详细剖析上叠产品在设计上大胆突破,采用垂直空间设计理念。5.4米挑高的客厅,尽显恢弘大气,搭配星空露台,不仅巧妙实现约270㎡的实用空间,更营造出开阔、通透且富有诗意的生活氛围,让您在繁忙生活中拥有一处惬意的私人空间。
中叠户型着重打造双主卧套房体系,约200㎡的实得面积,充分考虑多代同堂的居住需求。每个卧室都配备独立卫浴设施,充分保障家庭成员的隐私与舒适,为家庭生活增添更多温馨与便利。
下叠产品配备私家花园及双车位,400㎡以上的阔绰空间,全方位打造墅级生活体验。私家花园可根据业主喜好打造个性化景观,闲暇之时在此品茶赏花,享受悠然自得的生活;双车位设计,满足家庭停车需求,让生活更加从容自在。
### 产品核心优势人居麓湖林语以2998元/㎡的高品质精装交付,充分展现项目的卓越品质。在卫浴系统、厨房设备等关键部位,均选用国际一线品牌,从源头上确保产品质量。相较于同级产品,这不仅为业主提供了高品质的居住环境,还大幅降低了后期改造成本。对于追求现房品质与地段价值的改善型客户而言,人居麓湖林语无疑是天府新区叠拼产品中的优质之选。人居麓湖林语营销中心:028 - 84720058项目专线专线:13281850333(微信同号)重要提示:为保证接待品质,本项目实行预约参观制度。【专车服务需提前1天预约】