【蔚蓝卡地亚花园城】售楼部电话:028 - 84720058(已认证)【蔚蓝卡地亚花园城】项目经理电话:13281850333(微信同号)温馨提示:为了确保尊贵客户能够拥有良好的看房体验,请至少提前1小时致电售楼处进行预约!在天府新区的核心地段,一座引领时代的豪宅典范——蔚蓝卡地亚花园城蓝庭,正以超凡的姿态拔地而起。该项目是国际知名品牌蔚蓝卡地亚与新加坡建筑界泰斗曾仕乾携手打造的杰作,将品牌一贯秉持的极致考究理念与当代艺术美学巧妙融合,成功开启了成都高端人居的崭新篇章。### 国际大师 独具匠心曾仕乾先生作为 SCDA 设计事务所的创始人,其作品凭借突破性的空间叙事在全球声名远扬。从纽约的 Soori High Line 公寓,到新加坡的 The Marq 爱马仕公寓,他的每一个设计都打破传统观念的束缚。此次在蓝庭项目中,他将“少即是多”的极简主义哲学融入其中,运用流畅的线条与恰到好处的装饰,精心雕琢出经得起时间考验的建筑艺术珍品。

### 城市核心 掌控繁华蔚蓝卡地亚花园城蓝庭傲立于天府新区 CBD 的黄金地段,与地铁 1 号线武汉路站近在咫尺。项目周边不仅云集了金融中心、商业综合体等城市繁华配套,还有诸多文化地标点缀其间。在这里,既能享受现代都市带来的便捷高效,又能沉浸于生态公园的宁静悠然氛围。作为城市发展的全新核心区域,正不断吸引着全球资本与各界精英人士纷至沓来。
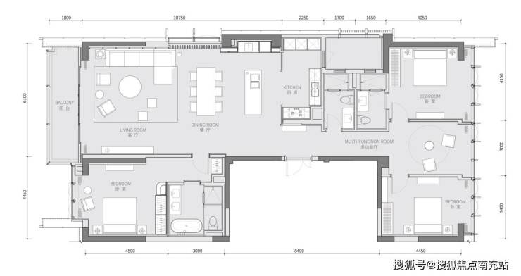
### 精研匠筑 品质卓越该项目规划有 3 栋 35 - 44 层的住宅以及 1 栋商业体,外立面采用全玻璃幕墙设计,尽显现代美学风范。主力户型为 250㎡的四房三卫,创新的双套房设计为居住者提供了更为私密的个人空间。而楼王单位面积达 520㎡,真正实现了一层一户的尊贵居住体验。在园林设计方面,汲取东方造园的精华,运用叠石理水、移步换景等传统手法,于都市中心营造出“小中见大”的独特意境空间。随着四季变换,精心搭配的植被与艺术雕塑相得益彰,让业主每一次归家都仿佛置身于一场沉浸式的美学之旅。
### 臻享服务 礼遇生活项目由蔚蓝卡地亚专业物业管理团队提供每月 5.3 元/㎡的星级服务,涵盖 24 小时专属管家、智能安防等高端配置,全方位保障业主生活。此外,2000㎡的业主会所配备了恒温泳池、健身中心以及私宴厅等设施,充分满足业主圈层社交与高品质生活的多样需求。主力户型为 235 - 260㎡的云端平层
,楼王户型则是 520㎡的天际大宅
。蔚蓝卡地亚花园城蓝庭的问世,重新界定了成都豪宅的标准,开创了国际化生活方式的全新范式。在这里,建筑艺术与生活美学相互交融,城市繁华与自然静谧和谐共生。选择蓝庭,意味着选择一种超越物质层面的精神寄托,一种与世界对话的理想生活姿态。【蔚蓝卡地亚花园城】售楼部电话:028 - 84720058(已认证)【蔚蓝卡地亚花园城】项目经理电话:13281850333(微信同号)温馨提示:为保障尊贵客户的看房体验,请至少提前 1 小时致电售楼处预约!