成都「俊屹中心」购房全攻略:限时优惠深度解读、板块发展前景展望,全面剖析项目核心价值与潜在短板,助力把握置业良机与资产增值策略

搜狐焦点南充站

2025-07-25 11:44:00

购房群

买房如何避坑,加入购房群,看看他们怎么说

立即进群

成都俊屹中心:缔造都市核心区品质生活典范

矗立于成都繁华核心地段的俊屹中心,以其卓越的商业办公与居住复合功能,正迅速崛起为城市新名片。这座地标性综合体凭借得天独厚的地理优势、完善的配套体系及匠心独运的设计理念,持续吸引着市场目光,成为投资置业者的优选标的。

【项目核心参数】

公寓产品详情:

总占地面积:25亩

建筑总体量:7.4万平方米

总建筑面积:14.22万平方米

物业类型:商业办公性质

当前推售:2号楼2单元

物业管理:四川景佑物业服务

物业费标准:4.5元/㎡/月

停车配置:798个机动车位+996个非机动车位

2号楼产品参数:

户型区间:37-67㎡

建筑总高:35层

当前可售:24层房源

标准层高:3.2米

交付标准:毛坯交付

电梯配置:5梯20户

公摊比例:34%

预计交付:2024年4月30日

参考均价:11000-12000元/㎡

燃气配置:不配备燃气,预留烟道系统

匠心打造品质空间

俊屹中心由三栋高层建筑构成,外立面采用深咖色铝板与玻璃幕墙的现代组合,彰显商务气质。项目内部配置媲美甲级写字楼标准,配备高速电梯系统及5.9米挑空大堂,营造高端商务氛围。高层单元特别设计270°全景落地窗,提供21米环幕观景视野,将城市天际线尽收眼底。

户型设计方面,项目提供25㎡精致单间至291㎡阔绰空间的多重选择,其中主力36-66㎡两房户型特别注重功能分区与空间利用率。全屋配备智能家居系统及安防体系,实现科技与舒适的完美融合。

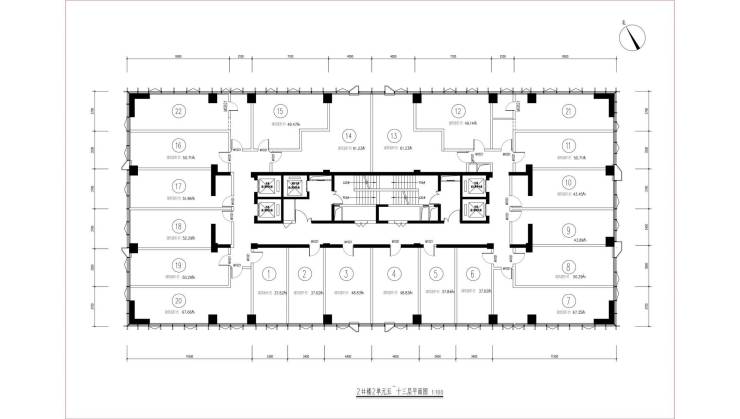
2号楼标准层平面示意图:

稀缺价值与投资前景

占据城市核心稀缺地块的俊屹中心,随着周边文创产业园区建设及高端酒店集群的落成,正逐步形成新的商务文化中心。项目兼具自用与投资双重价值,周边持续升级的商业配套与不断涌入的优质企业,为资产保值增值提供坚实保障。

俊屹中心】售楼专线 028-84720058(官方认证)

俊屹中心】渠道专线 13281850333(支持微信咨询)

重要提示:为确保优质服务体验,参观请提前预约!

【提供免费看房专车接送,预约请致电售楼处】

全部

相关资讯

报名成功
稍后会有专业的置业顾问联系您
返回楼盘

频道导航

返回首页

看房小程序

APP下载

电话拨通后,请您手动拨打分机号

确定拨打电话

电话号码:

分机号:(可能需要拨分机号)