【人居麓湖林语】精装现房 臻藏之作
VIP看房热线:028-84720058(官方认证)
项目总监专线:13281850333(微信同号)
匠心户型详解
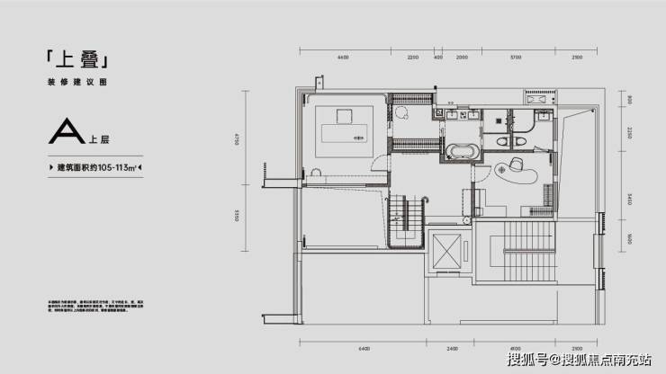
·上叠臻品:建筑面积105-113㎡,拓展后实用面积达270㎡,起始总价450万元
·中叠雅筑:建筑面积103-115㎡,实际使用空间约200㎡,350万元起售
·下叠华宅:建筑面积157-227㎡,享400㎡以上奢阔空间,650万元起

黄金区位解析
傲踞天府新区麓湖生态城核心区位,坐拥锦江与湖区双重水景资源,毗邻天津路高端住宅区。作为板块内稀缺的精装现房项目,兼具生态宜居与城市繁华双重价值。
板块发展潜力
麓湖板块以8300亩生态绿地为基底,打造国际化高端居住区。区域内规划有2100亩人工湖泊、200亩红石公园及3450亩天府公园三大生态景观。商业配套包括5万㎡麓坊中心及在建的"水上太古里"麓湖水镇。教育资源配置完善,天府七中、七小及元音书院等名校环伺,构建全龄段优质教育圈。
精工户型展示
上叠户型:创新空间布局实现270㎡实用面积
中叠户型:约200㎡实用空间,功能性与舒适度兼备
下叠户型:400㎡+奢阔尺度,尽显豪宅风范
项目核心价值
采用2998元/㎡高端精装标准,选材与工艺远超市场同类产品。经专业验房评估,仅需简单配置即可入住,显著降低二次装修成本。对于注重生活品质与时间价值的高净值人群而言,是麓湖区域不可多得的"拎包入住"级优质资产。
温馨提示:为确保看房体验,建议提前预约专属接送服务
VIP看房热线:028-84720058
项目总监专线:13281850333(微信同号)