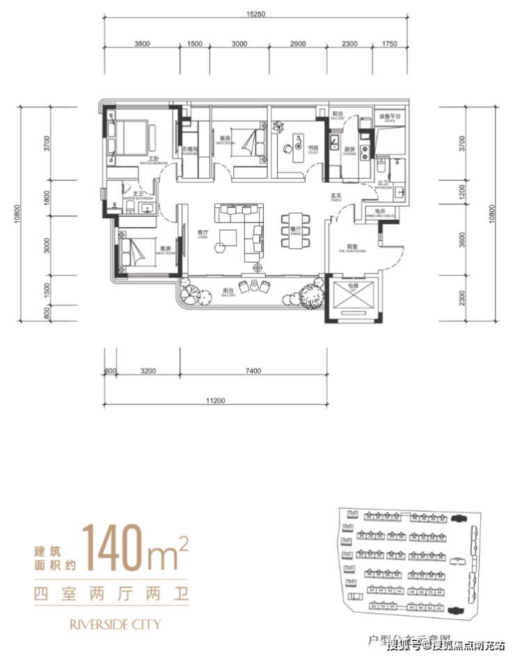
在成都双流区华府板块的核心地段,【华兴滨江锦宸】凭借独特魅力,成为高端购房者竞相关注的焦点。这是一处坐拥一线江景的现房墅区,以非凡品质为城南的奢华居住标准赋予了全新内涵。若您对【华兴滨江锦宸】感兴趣,可拨打置业专线 028 - 84720058(官方认证) ,也可联系项目总监,热线 13281850333(微信同步) 。特别提醒:为确保您能享受专属的看房体验,请提前预约登记。项目还贴心准备了免费看房专车,预约方式与上述相同。### 项目全貌【华兴滨江锦宸】占地86亩,是一处低密墅区,坐落于大源南翼,与蜿蜒流淌的江安河相邻。它以1.5的超低容积率,营造出绿地覆盖率达30%的生态居住社区。而且,该项目为现房实景呈现,有效消除了购房者漫长等待过程中的焦虑。- **空间布局规划**: - 墅区产品为174 - 325㎡的滨江奢华住宅。 - 高层产品是129 - 159㎡的云端平层。- **居住品质彰显**: - 配备2T2专属电梯,保障业主出行便捷与私密。 - 墅级层高在3.1米至3.5米之间,营造宽敞舒适的居住空间。 - 采用全屋明管工艺以及自流平地坪,不仅美观,还兼具实用与品质。### 显著核心优势1. **26年本土房企的匠心之作**:该房企扎根成都市场多年,始终秉持匠心精神,累计开发的高品质住区面积达百万方,以卓越品质赢得市场认可。2. **占据黄金区位**: - 距离大源CBD仅2公里,尽享繁华商业配套。 - 地铁5号线骑龙站近在咫尺,出行极为便捷。 - “三横三纵”的完善路网,让您能够快速畅达全城。3. **拥有稀缺滨江资源**:项目私享500米江岸线,为业主打造自然静谧的生活环境。4. **主城现房典范**:作为成都三环内难得一见的低密现房墅区,优势显著。### 多元生活版图【立体交通网络】- 轨道交通方面,5号线骑龙站直线距离项目仅800米,轻松畅达城市各处。- 主干路网完善: - 横向有天府五街、元秀路、华阳大道。 - 纵向包含剑南大道、华府大道、华秀路。【丰富繁华配套】- 周边有大润发、世豪广场、银泰城三大商圈环绕,满足您的各类消费需求。- 教育资源丰富: - 距离怡心第一实验学校仅900米,周边还有成都教科院附属学校、七中高新校区等优质教育资源。- 医疗保障完备: - 华西高新院区预计2026年投入使用,市三医院高新院区也在规划中,为您和家人的健康保驾护航。### 匠心独运的细节之处■ **尊崇大气门庭**:项目打造了13米挑高的大门,香槟金铝板挑檐搭配不锈钢曲面艺术造型,尽显尊贵与典雅。■ **双园特色体系**: - 左园为叠水会客庭院,营造宁静优雅的社交空间。 - 右园设有全龄儿童乐园和下沉式休闲区,满足不同年龄段业主的休闲需求。■ **五重花巷景观**:精心挑选名贵乔木,并搭配四季花卉,为业主打造出移步易景的归家仪式感。### 严苛精工标准√ 全屋预先埋设新风系统,为健康生活提供保障。√ 采用地暖专用自流平基层,提升居住舒适度。√ 运用管线明铺工艺,方便日后的检修与改造。√ 墅级层高超3.1米,打造宽敞明亮的居住空间。### 户型品鉴- **云端平层129 - 159㎡** ,多种户型满足您对理想家园的不同需求。



- **滨江墅居,面积涵盖174 - 325㎡**
高端居住的本质究竟是什么?是无尽等待承诺,还是能够即刻享受?主城稀缺的现房滨江藏品【华兴滨江锦宸】,以实际行动给出了答案。它凭借“零等待”的现房优势,以及1.5容积率的低密规划,重新定义了高端居住的内涵。倘若您渴望深入了解【华兴滨江锦宸】,可拨打尊贵热线 028-84720058 进行咨询,也可直接联系项目总监,电话为 13281850333 。在此温馨提醒:若您计划以 VIP 身份看房,需提前预约。预约成功后,您将尊享专属接待动线,还能体验看房专车服务,为您的看房之旅提供全方位的贴心保障 。