【中海云缦源境】售楼部电话:028-62444811(已认证)
【中海云缦源境】销售经理电话:15388440405(微信同号)
温馨提示:若想获得更优质的接待服务,看房请至少提前1小时致电售楼处预约!
央企中海-天府东翼2.0战略首发作品
天府CBD 中央法务区丨约93亩漫生活艺术大盘
成都中海云缦源境项目位于成都市天府新区核心区域,是中海地产在成都打造的又一高端住宅项目。该项目总建筑面积约30万平方米,规划有高层住宅、洋房和商业配套,整体定位为改善型品质社区。

从区位来看,项目地处天府新区中央商务区,周边交通便利,距离地铁6号线昌公堰站约800米,距离天府公园仅1公里左右。周边商业配套正在逐步完善,距离天府大悦城约3公里,医疗资源方面有华西天府医院等三甲医院。教育配套方面,项目周边规划有多所公立学校,满足不同年龄层教育需求。

优享CBD&法务区双重地利优势
中海云缦源境坐拥双区高能级配套,精粹生活圈,麓湖公园区-中央法务区-天府CBD聚合式铁三角,更有国际会议中心、中国西部国际博览城等世界级文化交流配套,大悦城等高阶商业配套,匹配您的丰盛生活。
越级造诣 常青藤生长形态建筑立面
玻璃立面搭配流体曲线,全新建筑天际线
超尺度门楼,东方美学的酒店式门厅礼序,贵宾式归家气场
独栋归家庭院,移步异景,墅级生活享受
【项目参数】
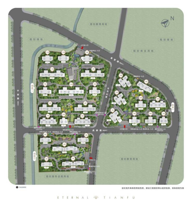
房源套数:一号地342套;二号529套;三号地212套
楼栋数:一号地(住宅9栋);二号地(住宅13栋);三号地(住宅5栋)
车位比:一号地1:1.2;二号地1:1.4;三号地1:1;
公摊:一号地约17%;二号地约20%;三号地基本无公摊
装修标准:(100-103㎡)2950元;(112-132㎡)2990元
交房时间:一号地/三号地2026年12月底;二号地2026年6月底;
层高:3米
物业费:3.58元/㎡
物业公司:中海物业
【户型鉴赏】
A户型 建面约100㎡三室两厅两卫
通透双阳台,生活处处向阳
H型厨房,享约4.2米面宽尺度
LDKG格局,阳台/横厅/厨房/餐厅无缝连接
约6米阔尺横厅,家庭社交第一聚厅
B2户型 建面约100㎡三室两厅两卫
礼制玄关,从容归家,隔绝外界干扰
约6米阔尺横厅,直连宽境阳台,尽享阳光偏爱
通透双阳台,兼得诗意与生活
套房主卧,配备阳光飘窗与独立卫浴,私属品质生活
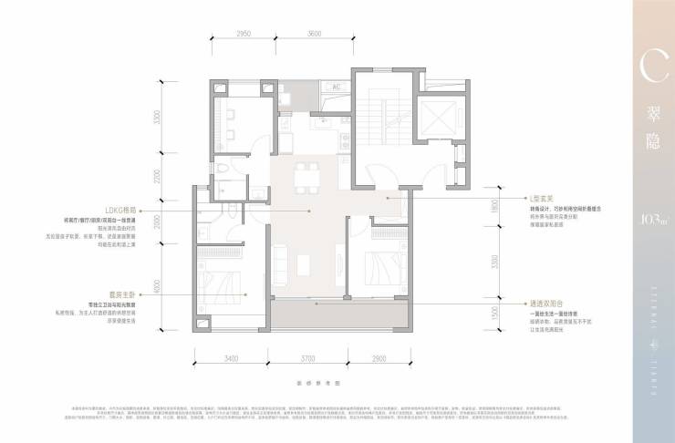
C户型 建面约103㎡三室两厅两卫
L型玄关,转角设计,巧妙利用空间折叠理念
通透双阳台,一面生活一面诗意
LDKG格局,客厅、餐厅、厨房、阳台一线贯通
套房主卧,带独立卫浴与飘窗,舒适尊崇休憩空间
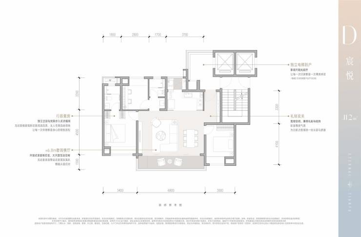
D户型 建面约112㎡三室两厅两卫
约6.8m奢阔横厅开间,开放式家庭核芯区,大尺度互动空间
行政套房,独立卫浴与双排步入式衣帽间
独立电梯到户,享阔尺阳光前厅
礼制玄关宽敞空间,兼得礼制与收纳
E户型 建面约132㎡四室两厅两卫
雅致方厅,可幻变出独立书房/瑜伽室/儿童天地
四开间大采光面,极致居住体验,生活从此向阳而生
独立电梯到户享阔尺阳光前厅
通透双阳台,观景阳台+生活阳台
【中海云缦源境】售楼部电话:028-62444811(已认证)
【中海云缦源境】销售经理电话:15388440405(微信同号)
温馨提示:若想获得更优质的接待服务,看房请至少提前1小时致电售楼处预约!