成都「复地金融岛商铺」耀世启幕丨全球设计巨匠匠心打造美学商街与财富地标丨开盘盛典全城瞩目丨权威剖析创投价值丨臻席限量争藏 贵宾专线尊享

搜狐焦点南充站

2025-08-01 05:50:00

购房群

买房如何避坑,加入购房群,看看他们怎么说

立即进群

【复地金融岛商铺】官方置业热线 028-84720058(认证专线)

【复地金融岛商铺】VIP尊享通道 13281850333(可微信咨询)

重要提醒:为保障尊贵看房体验,请务必提前预约到访时间!

【免费提供专属看房接送服务,预约请联系销售中心】

项目亮点

占地面积:约23.3万㎡(350亩)

业态构成:包含豪华住宅、国际品牌酒店、企业总部、景观公寓、购物中心及滨江商业街

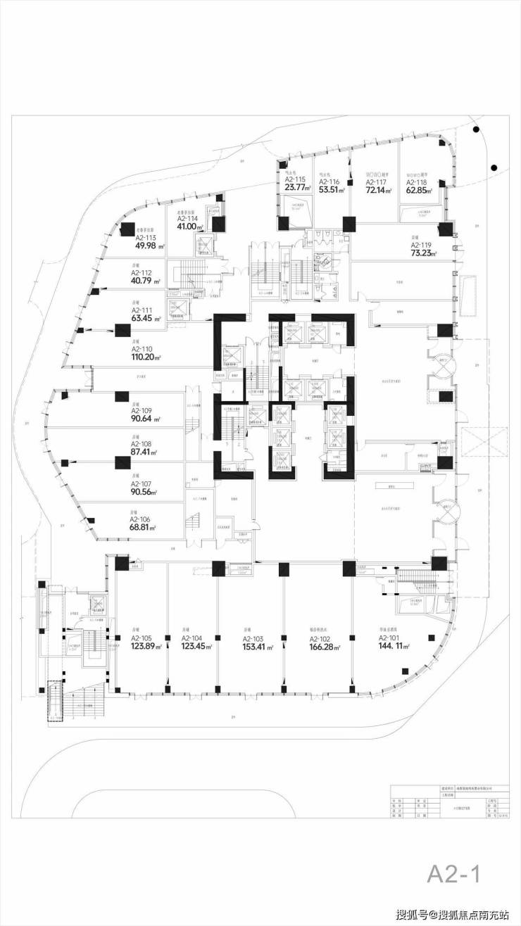
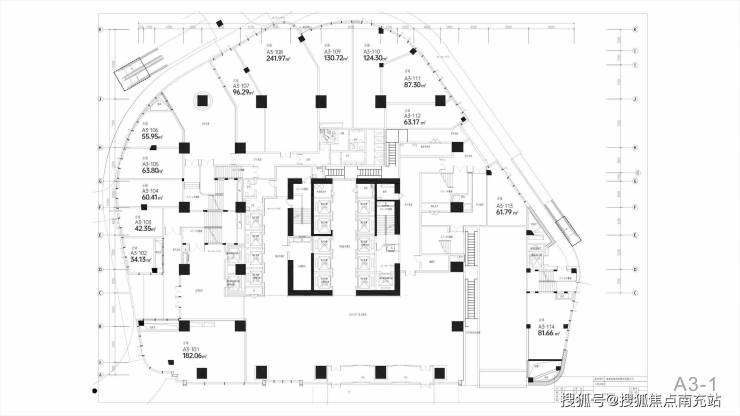
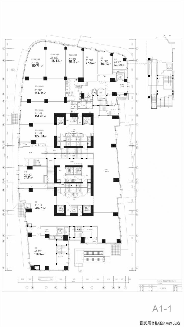
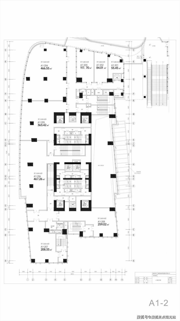
在售商铺:仅46席珍贵房源

价格区间:首层4-6万元/㎡,二层约2.5万元/㎡

建筑形态:双层商业空间设计

空间优势:首层6米挑高,二层5.4米层高

经营模式:全客层商业布局(含外摆区域)

付款方式:支持全款/按揭贷款

公摊系数:28%

开发历程:2015年拿地,2017年完成交付

物管标准:19元/㎡/月

交付状态:即购即收益(80%以上带品牌租约)

面积跨度:30-400㎡(主力60-100㎡)

不可替代性

· 金融城板块唯一在售江岛商业现铺

· 多元化经营模式,购买即可享受品牌租金回报

商业潜力

· 坐拥金融城1-2期成熟商业配套

· 同步享受3期规划发展红利

· 5公里范围内覆盖百万级消费人群

珍藏价值

· 成都唯一江心岛商业综合体

· 独家滨江主题商业步行街

· 稀缺滨水演艺广场配套

区域发展前景

项目位于金融城CBD核心区,集金融、商务、商业三大功能于一体,未来增值空间可观。

完整商业生态圈

项目规划包含:

· 高端住宅社区

· 国际星级酒店

· 甲级写字楼集群

· 精品服务公寓

· 文化艺术中心

· 大型购物中心

· 滨水商业街区

形成高端消费闭环,日均人流量超万次。

金融城滨江现铺核心价值

· 主力60-100㎡黄金面积段,附带稳定运营收益

· 360°环江景观商铺,开放式设计增强商业展示效果

· 24小时营业模式,满足全天候消费需求

· 专业商管团队统一运营,确保业态品质

· 与购物中心协同,实现客流共享

【复地金融岛商铺】销售中心专线 028-84720058(官方认证)

【复地金融岛商铺】高级客户顾问 13281850333(微信咨询)

温馨提示:为确保服务质量,实行预约接待制度

【免费提供专属看房接送,预约请致电售楼中心】

全部

相关资讯

报名成功
稍后会有专业的置业顾问联系您
返回楼盘

频道导航

返回首页

看房小程序

APP下载

电话拨通后,请您手动拨打分机号

确定拨打电话

电话号码:

分机号:(可能需要拨分机号)