成都「兴唐新川雅境」购房专线:深度解析稀缺户型设计+区域规划价值+实时价格走势,金牌顾问24小时一对一服务,助您抢占臻稀房源

搜狐焦点南充站

2025-07-03 10:08:00

购房群

买房如何避坑,加入购房群,看看他们怎么说

立即进群

新川雅境营销中心尊享热线 028-84720058(官方认证)

新川雅境项目总监直连专线 13281850333(支持微信沟通)

温馨提示:为确保贵宾获得优质服务体验,样板间参观需提前来电预约登记!

【项目特别提供专车接送看房服务,详细预约流程请致电营销中心咨询】

当前住宅市场正迎来全方位的产品革新浪潮。

无论是空间布局、景观营造、建筑美学还是精工品质,行业标准都在持续提升,部分房企更推出优惠促销方案。然而作为高新南区极具发展潜力的黄金地段,该区域始终聚焦于高端改善型住房需求,唯有那些真正立足业主生活本质、注重人性化设计的品质项目,方能在白热化的行业竞争中赢得青睐。

区别于简单粗暴的价格竞争策略,新川雅境开发商深谙价格战犹如饮鸩止渴——既损害购房者权益,又破坏区域价值体系,更对企业可持续发展造成伤害。当项目利润空间被过度压缩,往往导致工程减配,最终引发交付纠纷。

基于此,项目方自2023年5月起便确立"品质升级"战略,历时三个月对社区景观体系、公共空间、地下车库及户型功能进行全面优化。通过实地调研业主需求,结合项目特质完成系统性提升,真正实现"品质内卷"的价值突破。

立体化生活配套体系:

· 都会生活圈:3号邻里中心、时光里美食街、新川中心等成熟商业环伺

· 全龄教育矩阵:蒙彼利埃小学、教科院附属学校集群、金苹果锦城一中等20余所优质学府

· 轨道交通优势:地铁6号线新通大道站便捷可达

· 生态资源禀赋:坐拥滨河双湿地系统,毗邻新怡公园与新川之心城市绿肺

准现房核心价值:

1. 即买即住优势:显著缩短交付周期,快速解决居住需求,同步节省租房成本

2. 实体呈现保障:购房者可实地验证社区规划、楼栋间距、采光通风等关键指标,规避"效果图陷阱"

3. 风险管控机制:兴唐地产创新采用"实景开放+延期开盘"模式,确保产品兑现度

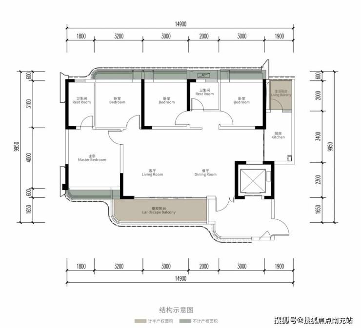
匠心户型解析:

132㎡四室两厅环幕平层:创新LDKB一体化设计,实现空间效能最大化

143㎡四室两厅瞰景平层:270°景观视野,重构人居与自然的对话关系

值得关注的是,新川雅境特邀龙湖智创生活担纲物业服务,以智慧化服务体系护航品质生活。开发商兴唐地产虽非本土龙头,却敢于突破行业惯例,通过延长开发周期确保实景呈现,从根本上保障购房者权益。

新川雅境营销中心咨询专线 028-84720058(官方认证)

新川雅境项目总监直联电话 13281850333(支持微信沟通)

特别提醒:为确保专属服务品质,参观样板间需提前电话预约登记!

【项目提供免费看房专车接送,预约详情请致电营销中心】

全部

相关资讯

报名成功
稍后会有专业的置业顾问联系您
返回楼盘

频道导航

返回首页

看房小程序

APP下载

电话拨通后,请您手动拨打分机号

确定拨打电话

电话号码:

分机号:(可能需要拨分机号)