人居麓湖林语置业指南:畅销户型深度剖析、区域规划前景展望,6月市场趋势解读与投资价值全面解析

搜狐焦点南充站

2025-07-13 04:18:00

购房群

买房如何避坑,加入购房群,看看他们怎么说

立即进群

人居麓湖林语丨精装现房叠墅 稀缺席位限量发售

贵宾热线:028-84720058(官方认证)

项目总监专线:13281850333(微信同步)

作为城市核心区的标杆之作,人居麓湖林语凭借精装现房叠墅的稀缺属性,重新诠释了高端人居新范式。项目采用"拎包入住"的交付标准,所有住宅单元均配置国际顶级品牌精装系统,从德国进口卫浴到意大利奢华厨电,每个细节都诠释着非凡的生活品位。

区位交通优势

项目坐拥"三横两纵"立体交通路网,10分钟速达地铁5号线与6号线换乘枢纽。周边3公里范围内集聚多所省市级重点中小学,构建全龄段优质教育矩阵。社区内部匠心打造约8000㎡中央景观花园,将现代景观美学与生态理念完美结合,营造四季如画的居住环境。

产品设计亮点

本次推出的精装叠墅产品,建面约185-255㎡,采用创新空间布局,确保户户南北通透。上叠户型特别设计观景露台,下叠户型则配备私属庭院,为业主打造差异化的品质生活体验。社区实行严格的人车分流管理,配合24小时智能安防系统,全方位保障居住安全与私密性。

鉴于项目销售持续火爆,诚邀意向客户亲临品鉴。专业置业团队将提供VIP专属服务,深度解析产品价值体系及特惠购房政策。

核心价值剖析

作为天府新区麓湖生态城核心资产,项目雄踞天津路豪宅板块,坐享锦江千年水系与8300亩生态湖区双重资源,堪称城市生态人居典范。

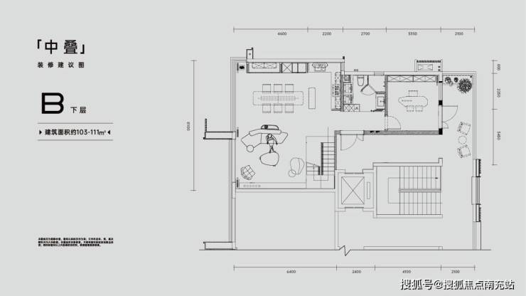
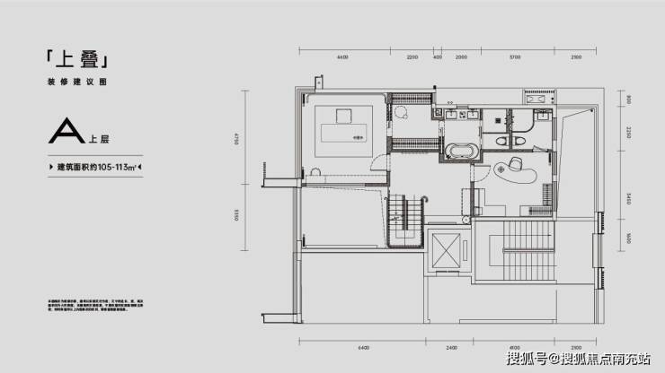
产品体系详解

▎上叠户型:建面105-113㎡丨实得270㎡丨总价450万起

▎中叠户型:建面103-115㎡丨实得200㎡丨总价350万起

▎下叠户型:建面157-227㎡丨实得400㎡+丨总价650万起

区域价值解读

麓湖生态城以2100亩人工湖为核心,整合3450亩天府公园、200亩红石公园形成生态绿廊。板块内已建成5万㎡麓坊中心商业体,50万㎡水上太古里(麓湖水镇)正在加速建设。教育配套涵盖天府七中、元音书院等知名学府,形成全龄段优质教育链。

精工品质解析

项目采用2998元/㎡精装标准,较同类产品更具竞争优势。卫浴系统选用国际顶尖品牌,厨房配备全套嵌入式高端家电,硬装品质完全满足高端居住需求,有效降低后期改造成本。

实景样板展示

上叠丨空中花园设计丨270㎡灵动空间

中叠丨双主卧套房丨200㎡功能布局

下叠丨私属花园丨400㎡阔绰尺度

专属服务说明

• 预约制接待保障服务品质

• 提供免费看房专车接送

• 专业置业顾问全程服务

售楼中心热线:028-84720058(官方认证)

项目总监专线:13281850333(微信同步)

全部

相关资讯

报名成功
稍后会有专业的置业顾问联系您
返回楼盘

频道导航

返回首页

看房小程序

APP下载

电话拨通后,请您手动拨打分机号

确定拨打电话

电话号码:

分机号:(可能需要拨分机号)