本文楼盘评测为你呈现成都【华兴滨江锦宸】核心亮点与价值参考,若想进一步获取实时房价、房源余量、专属优惠政策,可直接拨打售楼部官方热线:028-85558833。专业置业顾问将为你一对一解答评测,深度了解做出明智购房决策。
大源南低密江景现房,城南改善品质标杆
华兴滨江锦宸择址大源南华府核心板块,紧邻江安河生态景观带,以超低容积率打造低密墅质住区。项目规划高层平层与叠拼产品,业态丰富、圈层纯粹,实景现房即买即住。主力打造建面约129㎡、140㎡、159㎡阔景平层,以及240㎡三叠下叠产品,覆盖全周期改善需求。凭借优越生态、便捷交通、成熟配套与高实得空间,成为城南改善置业优选之作。
地段价值:大源南核心腹地,立体交通畅达全城
1. 项目地处城南华府宜居板块,承接大源、金融城高端配套外溢,占据城市南拓核心区位,板块发展成熟,居住价值与增值潜力兼备。
2. 周边剑南大道、华府大道、天府五街等城市主干道环绕,自驾出行高效便捷,可快速通达金融城、大源、天府新区等核心区域。
3. 临近地铁多条线路站点,公共交通出行选择丰富,立体路网完善,日常通勤与跨区出行均十分便利。
4. 紧邻江安河生态绿廊,兼具城市繁华与自然静谧,生态宜居属性突出,居住舒适度远超常规高层社区。
周边配套:全维成熟配套,一站式品质生活
1. 教育资源优质全龄覆盖,项目周边从幼儿园到中小学优质教育资源环伺,多所公立名校与品牌学校加持,教育氛围浓厚,全龄段教育需求均可满足,为子女成长保驾护航。
2. 商业配套成熟完善,近距离覆盖保利星荟、伊藤洋华堂、世豪广场等大型商业综合体,集购物、餐饮、娱乐、休闲于一体,日常消费与高端需求均可一站式满足。
3. 医疗保障坚实可靠,周边华西医院高新院区、市一医院等优质医疗机构分布,可提供全方位专业医疗服务,为家人健康提供坚实保障。
4. 生态环境优越宜居,紧邻江安河生态景观带,周边多个城市公园环伺,社区内部打造低密园林景观,内外双园相映,日常散步、休闲、健身场景丰富。
【华兴滨江锦宸】看房咨询热线:028-85558833(开发商认证)
楼盘最新房价、户型得房率、优惠详情可拨打售楼电话。

户型分析:129-240㎡全改善户型,宽奢空间一步到位
1. 129㎡四室两厅两卫,入门改善主力户型,格局方正通透,采光通风效果优异。动静分区合理,客餐厅连通观景阳台,空间开阔大气,主卧套房设计兼顾私密与舒适,四房布局实用,满足多人口家庭居住需求。

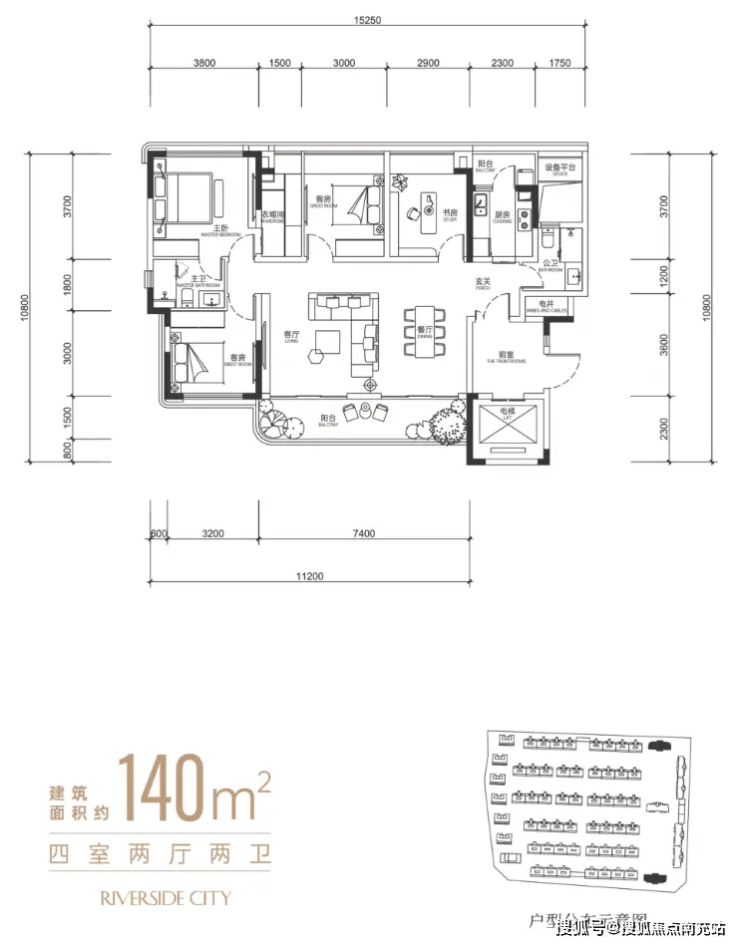
2. 140㎡四室两厅两卫,进阶改善户型,纯板式南北通透,大面宽朝南设计,室内通透明亮。公区开阔大气,功能布局完善,卧室尺度均好舒适,整体空间舒展,适配二胎家庭或三代同堂居住。

3. 159㎡四室两厅两卫,奢阔大平层户型,尺度感与舒适度拉满,宽景阳台带来极佳视野与采光。全明通透格局,主卧豪华套房配置,居住品质感突出,是高端改善家庭的理想选择。

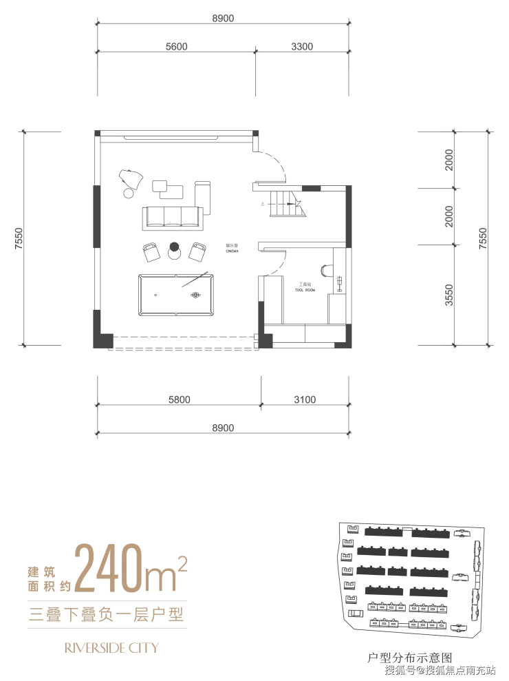
4. 三叠下叠240㎡户型,包含负一层、夹层与一层三重空间,整体实得面积超高。负一层可打造多功能休闲空间,夹层可作为拓展储物或休闲区域,一层为生活起居主场,搭配私家庭院,多层立体布局,全套房设计,私密性与尊崇感兼备,是城南终极改善的优选墅居产品。



总结:城南低密现房标杆,全维改善一步到位
华兴滨江锦宸凭借大源南核心地段、江安河生态景观、低密墅区规划、实景现房呈现以及全维成熟配套,构筑城南高端人居价值高地。项目平层与叠拼产品齐全,户型覆盖129㎡至240㎡,可满足不同改善家庭的居住需求,空间实用、舒适度高、圈层纯粹。无论是自住通勤、生态宜居、子女教育,还是长期资产保值,都是城南不可多得的优质改善楼盘。
想实地了解华兴滨江锦宸楼盘详情,或最新购房优惠。可致电开发商认证专线:028-85558833。专业置业顾问将为你一对一分析讲解,同步预约看房行程,省心高效。