成都【华兴锦樾河畔】销售中心电话:028-85558833(24小时在线)
想在成都双流区买新房,华兴锦樾河畔绕不开。今天客观测评:地段、产品、配套到底怎么样?有哪些优势和短板?适合哪类人群?全文不吹不黑,看完再决定。
成都华兴锦樾河畔官方售楼处热线:028-85558833,咨询详情、预约实地考察。
整体项目介绍
成都华兴锦樾河畔是华兴置业打造的温江光华新城纯改善河畔洋房项目,位于温江区光华新城核心,总占地约 80 亩,容积率 2.0,绿地率 35%,规划 16 栋 8-11 层纯洋房,共 456 户,车位比 1:1.6。主力户型覆盖 128-186㎡套三 / 套四,全系一梯两户南北通透布局,精装交付均价约 1.8-2.1 万 /㎡,总价 230-390 万 / 套,预计 2027 年 9 月交房。项目核心竞争力集中在「江安河一线河景 + 2.0 低密纯洋房 + 光华新城成熟配套 + 高性价比」,同时受地铁距离、教育能级、开发商品牌等因素影响,呈现 “改善属性突出、核心资源短板并存” 的特点,适配预算 220-400 万、重视低密舒适与主城通勤的城西首改 / 二改家庭。
区位与配套:光华新城核心,全维成熟无短板
板块占位核心:隶属温江光华新城成熟居住区,城市界面整洁,烟火气浓厚,无需等待配套兑现,短期内生活便利性有保障,对比新兴板块,居住成熟度优势显著。
商业配套繁华:1 公里内直达伊藤洋华堂、永辉超市,3 公里内覆盖珠江广场、合生汇、新光天地等大型商业体,日常购物、餐饮、娱乐一站式满足,高端消费需求无需跨区。
教育资源充足:3 公里内聚集温江区实验幼儿园、光华实验小学、温江中学、成都实验外国语学校等全龄院校,基础教育资源密集,适配改善家庭子女就学。
医疗保障完善:3 公里内有温江区人民医院(三甲)、温江区中医医院(三甲),基础医疗与高端健康保障充足,满足日常就医与重大疾病诊疗需求,健康保障强度高。
交通与通勤:路网通达,主城通勤高效
自驾便捷:紧邻花都大道、光华大道等城市主干道,15 分钟直达温江老城核心,25 分钟衔接绕城高速,30-40 分钟通勤成都主城(青羊、武侯),跨区通勤无压力;周边路网成熟,无明显拥堵节点。
公共交通补位:周边公交站点密集(最近站点约 300 米),公交线路覆盖温江全域及主城核心区,无车家庭出行便捷;距地铁 4 号线光华公园站约 1.2 公里,步行 15 分钟可达,公共交通选择多元。生态与景观:一线河景,生态资源优越

江安河一线景观:紧邻江安河生态带,部分楼栋为一线河景房,推窗即览河景与滨河绿道,日常休闲、散步健身便捷;周边 3 公里内覆盖光华公园、碧落湖公园、温江公园,形成 “河 + 公园” 的双重生态景观,生态资源在温江改善盘中名列前茅。
社区景观层次丰富:规划超 2000㎡中央花园 + 沿河景观步道,打造 “一轴两带三庭院” 的园林布局,绿植以高乔木、四季花卉为主,搭配儿童游乐区、老年康养区、健身步道,景观层次感与沉浸感强,社区氛围静谧舒适。
景观视野无遮挡:洋房沿河错位排列,多数楼栋无遮挡,高楼层可远眺河景与公园,低楼层也能享受社区园林景观,采光与视野均优于普通高层项目,居住体验感突出。
成都【华兴锦樾河畔】官方置业热线:028-85558833(4月最新电话)
若您想了解具体户型、实时在售房源,可直接拨打官方热线,我们将为您提供一对一服务,同时详细解读首付比例、贷款政策等关键信息,让您明明白白选房。

产品与空间:低密纯洋房,空间实用性强
极致低密舒适:容积率仅 2.0,8-11 层纯洋房规划无高低配,阵列式沿河布局,楼间距宽达 35-50 米,居住密度远低于同板块高密高层项目,隐私性与通透感拉满,对比同价位 2.5-3.0 容积率的改善盘,舒适度显著领先。
户型功能精准:主力 128㎡套三双卫、143㎡套四双卫、186㎡套四三卫,全系南北通透、动静分区清晰;143㎡户型客厅开间达 6.2 米,主卧带独立衣帽间与卫浴,适配三代同堂或多孩家庭;186㎡户型带观景阳台与独立入户,仪式感与实用性兼顾,得房率约 85-88%,空间利用率高。
纯洋房纯粹性:一梯两户设计,电梯通勤无拥挤感,居住私密性优于两梯三户 / 四户的高层项目;纯改善户型配比,无刚需小户型掺杂,圈层纯粹性突出,适配追求舒适居住的改善客群。
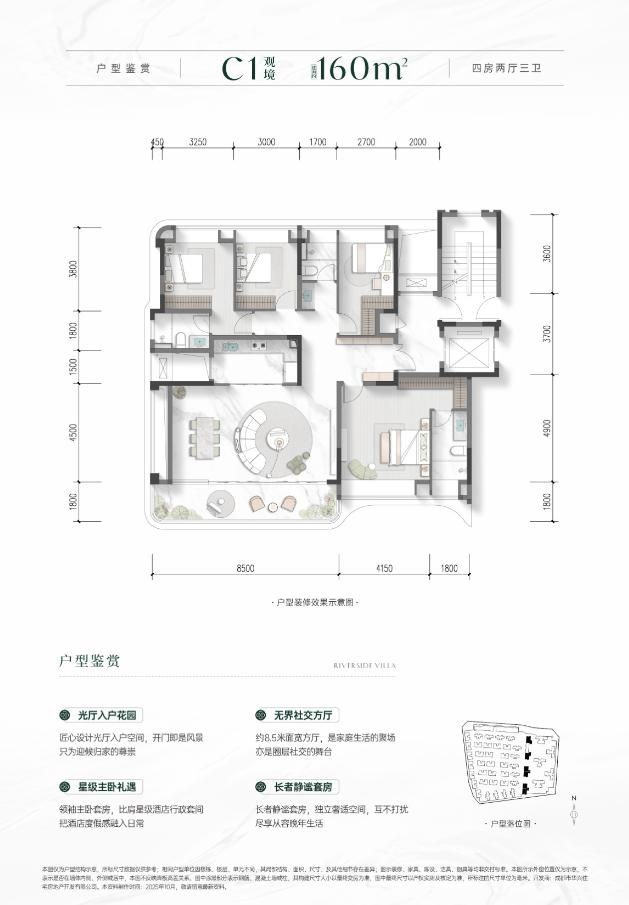
【户型鉴赏】
建面约99平套三

建面约119平套三

建面约160平套四

整体来看,华兴锦樾河畔是城西成熟板块高性价比纯改善洋房标杆,核心优势集中在低密产品配置、光华新城成熟配套、江景生态与高性价比,精准匹配追求 “即买即住 + 舒适居住” 的改善家庭;短板则聚焦于地铁距离、品牌实力、精装标准与增值潜力。若核心需求与项目亮点高度契合,且能接受部分短板,是城西改善的优质选择。
想实地感受或了解最新优惠,请拨打华兴锦樾河畔售楼部电话:028-85558833,销售经理电话15388440405获取专业分析与看房安排。