成都「空港云璟林著」楼盘热线-全方位项目解析-匠心户型品鉴-7月专属钜惠及购房豪礼

搜狐焦点南充站

2025-07-20 21:51:12

购房群

买房如何避坑,加入购房群,看看他们怎么说

立即进群

【空港云璟林著】售楼部热线 028 84720058(已认证)

【空港云璟林著】项目经理热线 13281850333(微信同号)

温馨提示:为确保优质服务体验,参观请提前致电预约!

【提供免费看房专车接送,预约请致电售楼处】

解码空港云璟林著四大核心优势

当前房地产行业已从规模竞争转向产品力较量,卓越的产品品质成为房企突围的关键。在此背景下,空港发展匠心打造的云璟林著项目,凭借四大核心竞争力,成为怡心湖A区备受瞩目的标杆之作。

▶ 创新园林式建筑布局

项目占地约83亩,容积率2.0,在当下土地资源稀缺的A区实属难得。云璟林著仅规划21栋11-17层纯板式花园洋房,将约70%的土地用于打造生态景观。

项目突破传统布局模式,采用"点式+围合"的创新设计,最大楼间距达167米,既保障了私密性,又形成了多个阳光中庭,让自然光与清风自由流动。

▶ 双公园环绕的度假生活

距怡心湖公园仅900余米的区位优势,赋予项目独特的湖居价值。更难得的是,项目周边规划有两大城市公园:

西侧190亩云熙公园(规划中)规划四大主题花园,东侧452亩26°活力绿心公园(规划中)保留原始地貌,打造集运动、休闲、生态于一体的城市绿肺。

社区内部采用"一环三轴多园"景观体系,十大主题景观组团满足全龄段需求,内外双公园的配置让"城市微度假"理念得以完美呈现。

▶ 现代美学建筑典范

项目外立面采用公建化设计,大面积LOW-E玻璃搭配米白灰真石漆,线条简洁硬朗,彰显现代都市美学。

酒店式入户大堂配以奢石照壁,暖色灯光营造温馨归家氛围,细节之处尽显品质。

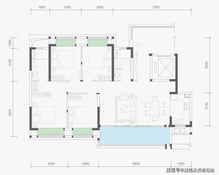
▶ 超越期待的改善户型

建面约113-182㎡全系T2板式结构,其中143㎡户型尤为亮眼:

270°环幕端厅设计,7米转角景观阳台搭配4.2米进深,13米采光面媲美200㎡+产品。U型厨房、50㎡端厅空间,将舒适度与功能性完美结合。

创新动静分区设计,主卧套房面积达25㎡,次卧最小10㎡,近100%得房率让空间利用率最大化。

134㎡户型同样出色,15.1米面宽保证采光,6.8米横厅搭配40㎡LDK空间,奢适主卧套房兼顾功能与舒适。

在当前市场环境下,置业更需关注长期价值。作为怡心湖核心区稀缺产品,云璟林著首批100套125.68-142.67㎡四房产品已取证,清水单价18796元/㎡起,总价240万起即可入驻怡心湖核心区。

【空港云璟林著】售楼部热线 028 84720058(已认证)

【空港云璟林著】项目经理热线 13281850333(微信同号)

温馨提示:为确保优质服务体验,参观请提前致电预约!

【提供免费看房专车接送,预约请致电售楼处】

全部

相关资讯

报名成功
稍后会有专业的置业顾问联系您
返回楼盘

频道导航

返回首页

看房小程序

APP下载

电话拨通后,请您手动拨打分机号

确定拨打电话

电话号码:

分机号:(可能需要拨分机号)