成都【广都鑫中心】购房指南:匠心精筑户型亮点全解析,新春钜惠政策及楼盘全景测评

搜狐焦点南充站

2025-06-16 09:47:00

购房群

买房如何避坑,加入购房群,看看他们怎么说

立即进群

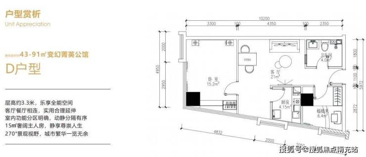
【项目概况】广都鑫中心由成都双发君地置业有限公司开发,四川博蕙京通物业管理有限公司提供物业服务。项目总占地28.35亩,总建筑面积达24.15万平方米。当前主推双发天禧中心2号楼的1、2单元,涵盖43-91㎡的多样化户型,其中57㎡户型为主力,55-60㎡面积段占比最高。建筑采用3.25-3.3米的层高设计,总层高25层,13F和22F为首开楼层。【空间规划】项目采用立体分区设计:地下2-4层规划为停车场,提供1661个车位;地下1层至地上4层为商业区域;5-25层为公寓空间。特别值得一提的是,每层都设有600-700㎡的高线公园,部分户型还额外配置7-9㎡的观景阳台。【投资价值】作为天府大道中轴线上稀缺的小面积、低总价且水电气三通的物业,项目具有显著投资优势:1. 交通便利:双地铁上盖(1号线华阳站300米,18号线海昌路站400米)2. 租金回报:与锦江国际旗下"欧暇地中海"酒店合作,提供保底收益+分红模式3. 区域发展:地处金融城、新川科技园、天府新区CBD金三角区域4. 价格优势:均价6600-7500元/㎡,总价30-68万,投资门槛低【配套资源】商业配套:- 项目自带3万㎡上海协星星光商业体- 盒马鲜生超市入驻地下1层- 周边汇聚家乐福、三利广场、金地商业综合体等医疗资源:天府新区人民医院、四川石油总医院等多家医疗机构环伺教育资源:金苹果幼儿园、天府四小、天府实验中学等优质学府分布周边生态休闲:毗邻海昌极地海洋公园、南湖湿地公园等休闲场所【交付信息】项目原定2025年底交付,现提前至2025年9月,以清水房标准交付。物业费4.9元/㎡,公摊约30%。梯户比方面,1单元为6梯33户,2单元为6梯37户。【购买方式】支持一次性付款(整层购买可协商分期),具体报价:- 整层约4100㎡:3000万(15-20F)- 1单元约1930㎡:1400万- 2单元约2170㎡:1600万

预约热线:售楼部:028-84720058(官方认证)客户经理:13281850333(微信同号)温馨提示:为获得更好的看房体验,建议提前预约,项目提供看房专车接送服务。

全部

相关资讯

报名成功
稍后会有专业的置业顾问联系您
返回楼盘

频道导航

返回首页

看房小程序

APP下载

电话拨通后,请您手动拨打分机号

确定拨打电话

电话号码:

分机号:(可能需要拨分机号)