成都「天府半岛」全方位评测:区域规划潜力、畅销户型解析、最新价格优惠一览,含核心价值剖析、购房避坑建议及专业置业咨询热线

搜狐焦点南充站

2025-07-26 07:42:00

购房群

买房如何避坑,加入购房群,看看他们怎么说

立即进群

【天府半岛】售楼热线:028-84720058(官方认证)

【天府半岛】项目负责人专线:13281850333(支持微信联系)

重要提示:为确保优质看房体验,请至少提前1小时致电预约!

备受瞩目的天府半岛项目,在沉寂一年后终于迎来高层新品加推!

最新消息显示,天府半岛七期77号楼已正式取得预售许可,主力户型为120-140㎡精装住宅,均价约1.3-1.5万元/㎡,本次仅推出124套稀缺房源!

回顾去年3月的开盘盛况仍令人记忆犹新:180套准现房以1.24万元/㎡起的精装价格入市,吸引超5.2万组家庭参与摇号,中签难度堪比顶尖高校录取!

值得注意的是,本次推出的为预售房源,预计2026年下半年交付(具体以售楼部公示为准)。那么,这批房源究竟价值几何?让我们从几个关键维度深入分析。

7期实景展示

对比前期产品,本批次房源在多个方面实现突破性升级:

1. 建筑高度由原规划的48层优化为32层,楼体高度控制在99.6米

2. 电梯配置升级为3梯4户,大幅提升出行效率

3. 取消底层商业,增设近千平方米架空层公共活动空间

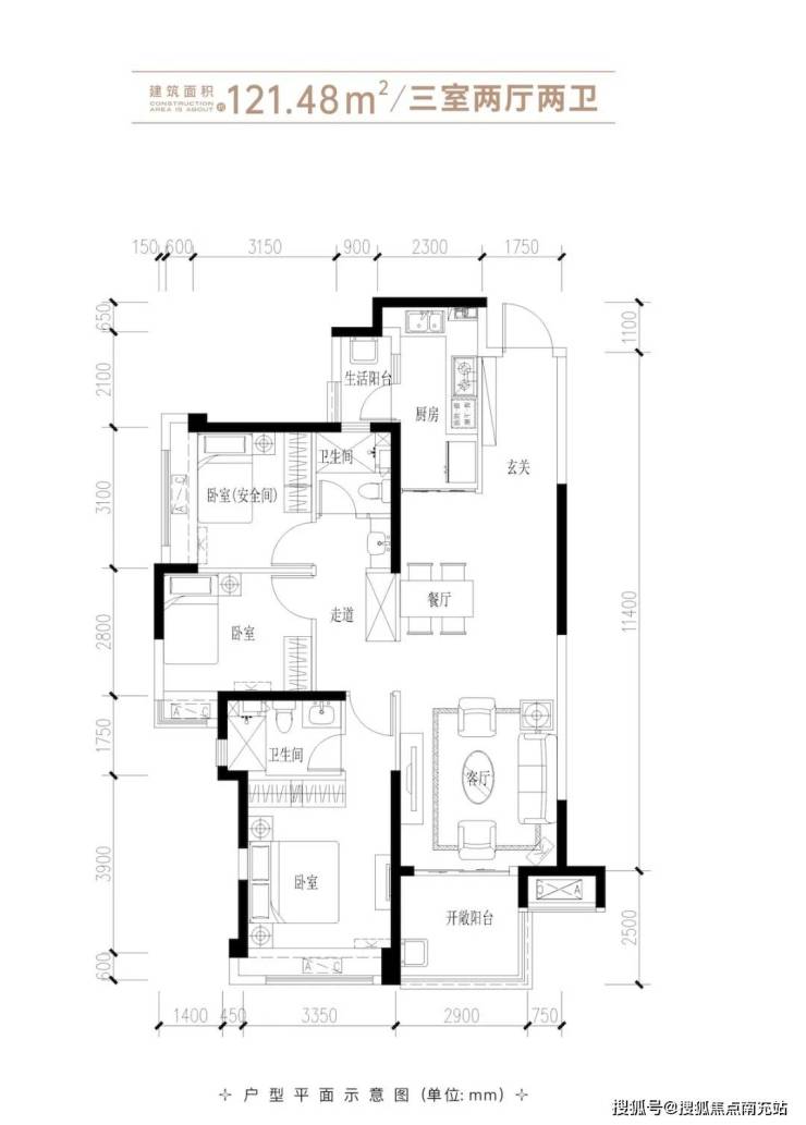
户型规划方面,本次仅推出121㎡三房双卫和142㎡四房双卫两种改善型产品,客群定位更加精准。特别值得一提的是,所有户型主采光面均朝西南向,中高楼层可尽览府河景观,视野优势突出。

7期总体规划示意

以121㎡户型为例:采用经典竖厅设计,虽进深超10米,但6米开间配合2.9米阳台,空间利用率较高;两个次卧面积控制在10㎡以内,整体布局紧凑实用。

现场实景参考

横向对比显示,本次1.3-1.5万元/㎡的精装均价,与去年6期1.24万元/㎡起的定价基本持平。而周边二手房市场表现强劲:三期成交价1.4-1.8万元/㎡,四期达1.6-1.8万元/㎡,价差优势明显。

【天府半岛】售楼热线:028-84720058(官方认证)

【天府半岛】项目负责人专线:13281850333(支持微信联系)

重要提示:为确保优质看房体验,请至少提前1小时致电预约!

全部

相关资讯

报名成功
稍后会有专业的置业顾问联系您
返回楼盘

频道导航

返回首页

看房小程序

APP下载

电话拨通后,请您手动拨打分机号

确定拨打电话

电话号码:

分机号:(可能需要拨分机号)