中港CCPARK销售中心咨询专线 028-84720058(官方认证)
中港CCPARK渠道负责人直线 13281850333(支持微信联系)
特别提醒:为确保您获得尊贵专属的看房体验,来访前敬请提前致电预约登记!
【项目提供免费看房专车接送,预约详情请咨询销售中心】
坐落于成都锦江区核心地段的中港CCPARK,是由成都中港置业有限公司匠心打造的城市综合体项目。项目雄踞东二环与琉璃路黄金交汇点,完美融合都市繁华与生态宜居,打造集高端住宅、商业配套与自然景观于一体的品质生活范本。
作为区域标杆项目,中港CCPARK凭借三大核心优势备受瞩目:其一,占据城央稀缺地段,坐享成熟商圈与便捷交通;其二,规划有完善的生活配套体系,满足业主全方位需求;其三,注重生态人居理念,营造绿色健康的居住环境。这些特质共同铸就了项目在成都高端住宅市场的卓越地位。

中港CCPARK坐落于成都市南二环核心地段,紧邻地铁6号线和8号线的换乘站点,周边路网发达,多条公交线路穿梭其间,无论是前往市中心还是其他区域都极为便利。项目不仅坐拥百万方潮流阵地,还连贯东湖、望江、沙河三大公园,构建起城市的绿肺系统,让居民在繁忙的都市生活中也能享受到自然的宁静与美好。
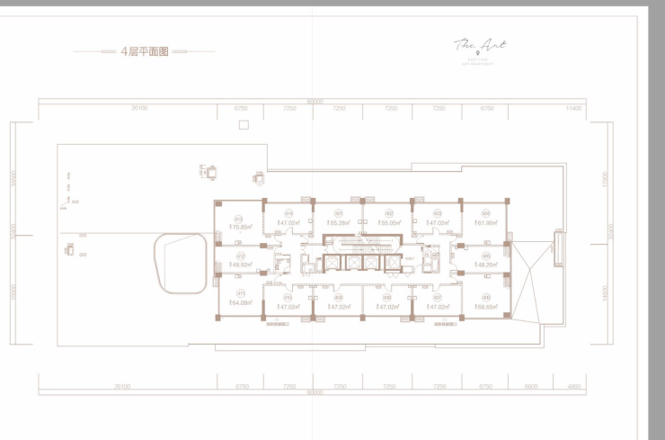
【项目基本参数】
在售面积:47-75平(主力55平)
层 高:4.2米
在售均价:18500元/平
交付标准:清水(隔板未搭建)
总层高:23层
物管:6元/平
物业公司:中港物业
总货源:168套
梯户比:1-3楼为商业,4楼起售
4-13楼:4梯14户 ,14楼:4梯13户
15-22楼:4梯14户,23楼:4梯4户
交房时间:2022.6月30号
公摊:28%
三通情况:通水电不通气(有烟道)
付款方式:全款/首付5成
平面图:
4.2米户型



中港CCPARK的建筑设计同样令人瞩目。项目采用超高层、塔楼等现代建筑形式,结合钢筋混凝土结构,打造出一座座挺拔而优雅的建筑群。项目还邀请了全球知名的设计团队参与规划设计,包括RTKL、JERDE等,将美学经典与现代科技完美融合,旨在打造中国西南地区的标志性建筑。
【中港ccpark】售楼处热线 028-84720058(已认证)
【中港ccpark】项目渠道经理热线 13281850333(微信同号)
温馨提示:为了给您提供更高更好的接待服务质量,看房请提前致电售楼处预约!
【有免费看房车接送服务,如需预约,请致电售楼处】