成都「复地金融岛商铺」热销钜惠-实景现铺全维解析|最新价格体系&限时政策揭秘-全系户型鉴赏与核心投资价值研判

搜狐焦点南充站

2025-06-12 06:57:00

购房群

买房如何避坑,加入购房群,看看他们怎么说

立即进群

### 【复地金融岛商铺】尊享专线售楼中心:028 84720058(官方认证)客户顾问:13281850333(支持微信咨询)重要提示:若您想拥有专属服务的优质体验,前往项目参观之前,请务必提前预约!【提供免费看房专车接送服务,预约请致电售楼处】

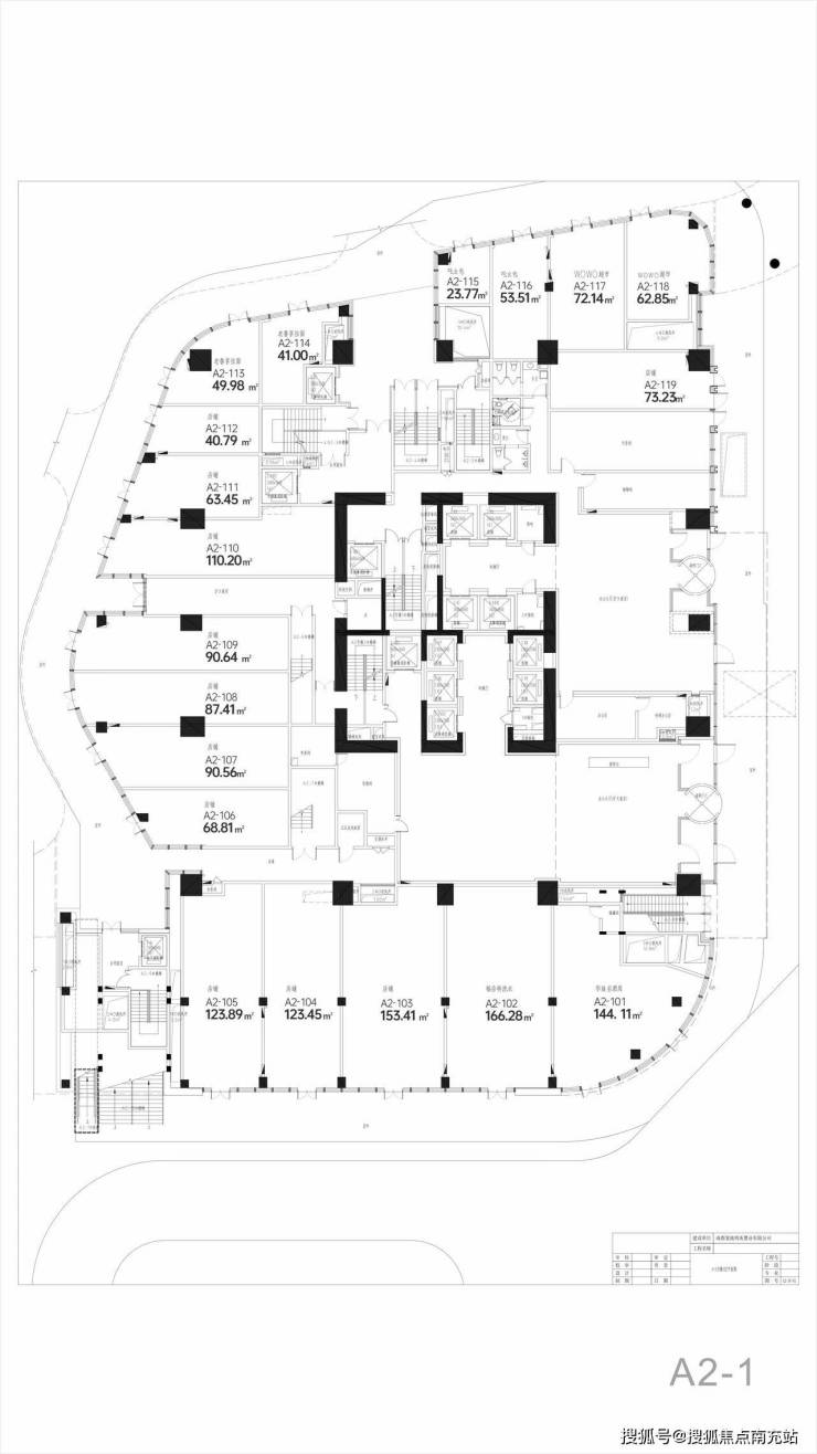
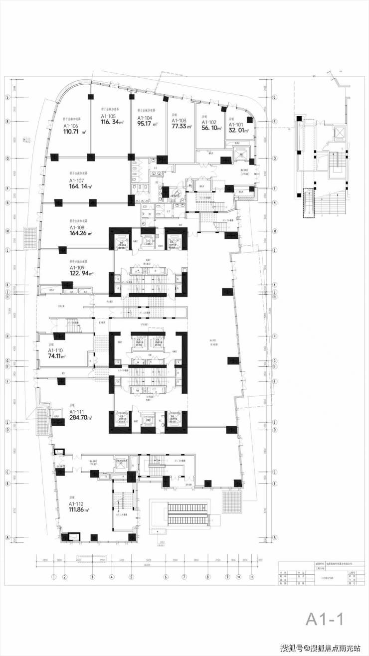
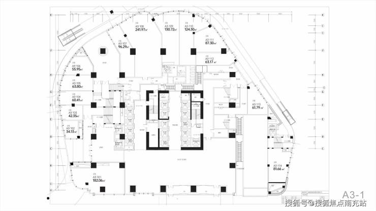
### 金融城十年沉淀·独占江岛商业资源滨水商街现铺,已有众多品牌商家入驻,正稀缺发售。30 - 400㎡全能业态黄金旺铺等您来。### 【项目档案】总规划:复地金融岛项目是一个占地 350 亩的综合体。业态构成:这里多元业态齐聚,有奢居华宅、星级酒店、企业总部、行政公馆、商业中心以及滨水商街等。可售铺位:仅 46 席,极为稀缺。价格区间:首层每平方米售价 4 - 6 万,二层约 2.5 万/㎡。建筑格局:构建起双层商业空间。空间尺度:首层挑高达到 6 米,二层层高 5.4 米,空间十分开阔。经营许可:支持全业态经营,还设有外摆区,经营形式灵活多变。交易方式:购房者可依据自身实际情况,选择全款或者按揭付款。公摊比例:为 28%。开发历程:2015 年取得地块,2017 年完成交付。物业管理:物业费为 19 元/㎡/月。交付标准:以现房形式交付,多数商铺还附带品牌租约,大大减少了投资者运营前期的诸多麻烦。面积选择:面积区间处于 30 - 400㎡,主力面积在 60 - 100㎡。### 【三大价值体系】- **稀缺属性**:在金融城板块,复地金融岛商铺是当下唯一在售的现铺,其稀缺程度显而易见。- **经营优势**:该项目尽享金融城 1 - 2 期成熟商圈的商业氛围,还能承接 3 期发展所带来的红利。在其 5 公里的辐射范围内,拥有百万客群,消费市场极为广阔。- **藏品特质**:作为成都独一无二的江心岛商业体,拥有别具一格的滨水商业长廊以及独家水景演艺广场,具备极高的收藏价值,独特性十足。

### 【全维业态生态】这里复合型业态布局科学合理,涵盖高端居住区、商务集群、艺术场馆、购物中心以及风情商街等。城市的精英圈层在此汇聚,消费能力强劲,消费能级突出。项目地处 CBD 核心区位,产生了强大的人口磁吸效应,吸引百万级人口在此聚集。

### 【金融城滨水商业旗舰】项目拥有黄金面积段 60 - 100㎡的商铺,购买即可获得收益,还有租约保障,资产流通性良好。商铺拥有 360°环江展示面,属于开放式街铺,昭示性绝佳,能够有效吸引消费者的目光。采用全天候经营模式,可覆盖多元消费场景。同时配备专业商管团队,全力保障业态品质。此外,还能与购物中心形成联动,共享稳定客流,为商铺的持续经营提供坚实保障。

### 【复地金融岛商铺】尊享专线售楼中心:028 84720058(官方认证)客户顾问:13281850333(支持微信咨询)重要提示:为确保专属服务质量,到访前请务必提前预约!【提供免费看房专车接送,预约请致电售楼处】

全部
报名成功
稍后会有专业的置业顾问联系您
返回楼盘

频道导航

返回首页

看房小程序

APP下载

电话拨通后,请您手动拨打分机号

确定拨打电话

电话号码:

分机号:(可能需要拨分机号)