6月最新消息!成都「天府半岛」售楼处联系电话、楼盘全面测评,以及在售户型与价格详情解析

搜狐焦点南充站

2025-06-03 07:39:00

购房群

买房如何避坑,加入购房群,看看他们怎么说

立即进群

【天府半岛】售楼部电话:028 - 84720058(已认证)【天府半岛】项目经理电话:13281850333(微信同号)温馨提示:若您希望获得更优质、更贴心的接待服务,看房请至少提前1小时致电售楼处进行预约!!!时隔一年,备受瞩目的神盘天府半岛的高层房源终于再度登场!就在刚刚,天府半岛七期77#顺利取得预售许可证,此次推出的房源建面约120 - 140㎡,精装单价约1.3w - 1.5w元/㎡,总计124套

。不知有多少人还记得去年3月那场令人瞩目的摇号盛景,当时推出180套准现房,精装单价1.24万/㎡起,竟吸引了约5.2w组家庭参与摇号,那极低的中签率,甚至比“985”、“211”高校的录取率还要低。自那之后,项目虽有三次取证,但推出的均为大平层和联排产品,建面约235㎡以上,购房门槛高达330w,显然已超出刚需、刚改购房者的承受范围。此次推出的房源依旧延续了熟悉的风格,但也存在不同之处。本批次房源为期房,预计2026年下半年交付(具体交付时间以售楼部信息为准)

。那么,这样的天府半岛新房源究竟值不值得购买呢?今天,就大家较为关心的几个问题,来深入探讨一番。关于周边配套,在此不过多赘述,感兴趣的小伙伴可查看往期踩盘链接:恒大天府半岛已取证!总价约114万起,1124套房源!先来看产品本身,此次房源在诸多方面进行了升级。熟悉天府半岛的朋友都了解,7期产品大多是2梯5户、3梯6户的48F超高层,建面约90 - 120㎡的套三、套四户型,定位较为刚需。而本批次房源作为7期最后4栋住宅,有了显著的品质提升,居住舒适度更高

。根据去年天新官网公布的规划,7期77 - 80#楼由原本的39 - 48F统一调整为32层,楼栋高度调整至99.6m,同时增加一台电梯,升级为3梯4户。不仅如此,这四栋住宅取消了底商规划,首层架空公共活动空间有约993㎡,较之前有了大幅提升

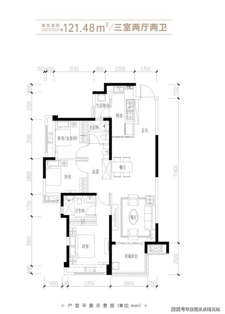
。户型方面,本批次仅有建面约121㎡套三双卫、142㎡套四双卫两个主力户型,定位更偏向刚改、改善群体,产品相对纯粹。并且,4栋住宅所有户型的主采光面均朝西南方向,中高楼层住户可直接俯瞰府河,视野相当开阔

。不过,在户型设计上,与之前相比变化不算太大。以121户型为例,采用竖厅设计,进深超过10m,但开间仅有6m出头,阳台约2.9m;两个次卧面积均不足10㎡,整体户型较为紧凑,空间利用率高,但在尺度感上表现一般

。再说说价格,去年3月,6期高层精装单价约1.24w元/㎡起,本批次精装单价1.3w - 1.5w元/㎡,价格差异并不明显

。目前,7期紧挨着的三期,今年以来的二手房成交价在1.4w - 1.8w元/㎡;四期的成交价稍高,在1.6w - 1.8w元/㎡。【天府半岛】售楼部电话:028 - 84720058(已认证)【天府半岛】项目经理电话:13281850333(微信同号)温馨提示:为给您提供更优质的接待服务,看房请至少提前1小时致电售楼处预约!!!

全部

相关资讯

报名成功
稍后会有专业的置业顾问联系您
返回楼盘

频道导航

返回首页

看房小程序

APP下载

电话拨通后,请您手动拨打分机号

确定拨打电话

电话号码:

分机号:(可能需要拨分机号)