成都「俊屹中心」售楼处电话直达丨楼盘真实口碑与价值深度剖析丨核心亮点与精品户型全介绍丨十一月最新房价动态及走势前瞻

搜狐焦点南充站

2025-11-14 14:52:00

购房群

买房如何避坑,加入购房群,看看他们怎么说

立即进群

俊屹中心】售楼部电话:028 - 62444811(已认证)

【俊屹中心】销售经理电话:15388440405(微信同号)

温馨提示:为了提供更高更好的接待服务质量,看房请提前1小时致电预约!

成都俊屹中心:城市中心的品质生活新地标

在繁华的成都市中心,耸立着一座集商业、办公、居住于一体的综合性地标——成都俊屹中心。凭借独特的地理位置、完善的配套设施和高品质的生活环境,吸引了众多投资者的关注,成为成都楼市中的一颗璀璨明珠。

【项目基本参数】

公寓参数:

总体量:7.4万方

建筑面积:14.22万方

产权性质:商办

占地:25亩

在售楼栋:2#2单元

物业公司:四川景佑物业

物业费用:4.5元/㎡

停车位:机动车位798个,非机动车位996个

2号楼:

面积:37--67㎡

总层高:35层

在售楼层:24楼

层高:3.2米

装修:清水交付

梯户比:5T20户

公摊:34%

交房:2024年4月30日交房

均价:11000-12000元/㎡

是否通气:不通气,带烟道

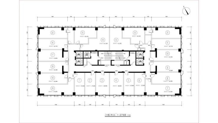
公寓楼层平面图:

2号楼:

投资价值凸显,未来可期

作为成都市中心的综合性地标建筑,俊屹中心不仅具备优越的地理位置和完善的配套设施,还拥有巨大的投资潜力。随着周边商业氛围的不断浓厚和知名企业的入驻,项目的商业价值将进一步提升。此外,项目周边还规划有多个文创项目和高端酒店集群,未来将成为成都新的文化创意产业高地和商务休闲中心。

俊屹中心】售楼部电话:028 - 62444811(已认证)

【俊屹中心】销售经理电话:15388440405(微信同号)

温馨提示:为了提供更高更好的接待服务质量,看房请提前1小时致电预约!

全部

相关资讯

报名成功
稍后会有专业的置业顾问联系您
返回楼盘

频道导航

返回首页

看房小程序

APP下载

电话拨通后,请您手动拨打分机号

确定拨打电话

电话号码:

分机号:(可能需要拨分机号)