都江堰「人居未来城」购房全攻略:新政房价趋势分析、热销户型亮点解析、区域发展潜力展望、置业疑难专业解答

搜狐焦点南充站

2025-07-12 06:03:00

购房群

买房如何避坑,加入购房群,看看他们怎么说

立即进群

中国 · 成都 I 兴城人居 · 未来城

作为成都主城区稀缺的高端住宅项目,兴城人居·未来城由国企兴城人居集团匠心打造,以创新理念重塑城市人居标杆。项目占据一环路江安河畔黄金区位,依托前瞻规划与卓越品质,为都市精英呈现理想栖居范本。

【项目规划】

项目总占地69亩,总建面11.5万方,规划640户精品住宅。采用1.8低容积率与35%高绿化率设计,打造8-10层精装电梯洋房社区。建筑外立面融合现代极简美学,通过大面积落地窗与玻璃幕墙的虚实对比,既提升采光效果,又彰显艺术质感。

【生态人居】

项目创新构建"双生态"体系:内部打造中央镜面水景、环形健身步道等立体景观;外部依托江安河生态走廊,形成天然氧吧。同时严格采用绿色建筑标准,集成节能环保技术,实现健康可持续的生活方式。

核心价值

1. 区位优势

· 交通便捷:城市主干道环绕,快速接驳全城

· 配套完善:自建滨河商业街,5分钟可达成熟商圈

· 教育资源:覆盖3-18岁全龄优质教育

2. 产品优势

· 112㎡三房:南北通透,6.8米景观阳台

· 120㎡三房:16.6米南向采光面,7.1米宽厅

· 140㎡四房:5.8米横厅衔接观景阳台

3. 智能服务

引入浙江未来社区理念,配备智慧安防、智能家居等系统,2.5元/㎡/月的物业服务标准(暂定),打造安全便捷的现代化社区。

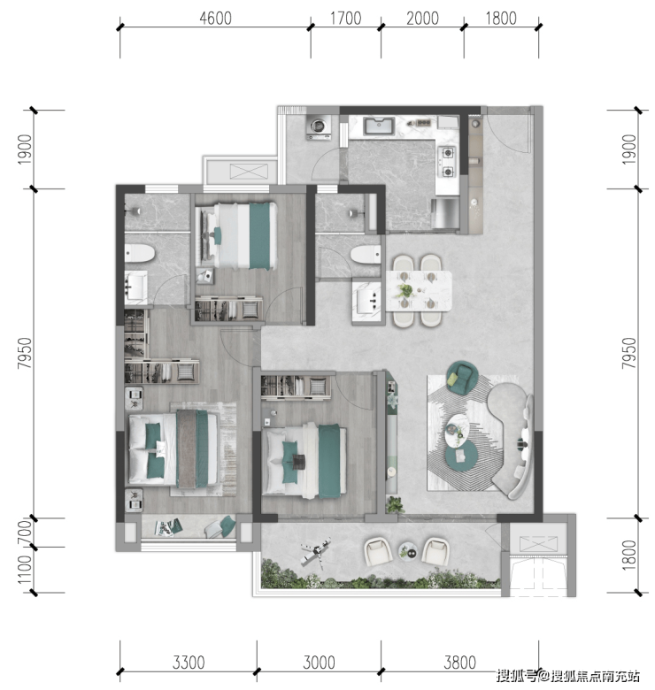
户型详解

112㎡三房两厅两卫

· L型科学厨房优化操作动线

· 主卧套房配备独立衣帽间

· 全明格局保障通风采光

120㎡三房两厅两卫

· 7.1米宽厅彰显空间尺度

· 6.6米观景阳台尽揽河景

· 明厨搭配生活阳台提升实用性

140㎡四房两厅两卫

· 独立中式餐厅满足聚会需求

· 全屋飘窗引入自然光景

· 多功能空间灵活可变

项目亮点

· 国企实力保障:兴城人居集团开发

· 稀缺地段价值:主城一环最后开发地块

· 生态宜居环境:江安河畔,四季宜人

【兴城人居·未来城】置业热线

售楼部:028-84720058(官方认证)

客户经理:13281850333(微信同号)

温馨提示:为提供优质服务,参观需提前预约

(享免费看房专车接送服务)

全部

相关资讯

报名成功
稍后会有专业的置业顾问联系您
返回楼盘

频道导航

返回首页

看房小程序

APP下载

电话拨通后,请您手动拨打分机号

确定拨打电话

电话号码:

分机号:(可能需要拨分机号)