成都「兴唐新川雅境」售楼部电话|项目配套|楼盘品质|9月最新房价走势

搜狐焦点南充站

2025-09-18 11:07:00

购房群

买房如何避坑,加入购房群,看看他们怎么说

立即进群

新川雅境】售楼部电话:028 - 62444811(已认证)

【新川雅境】销售经理电话:15388440405(微信同号)

温馨提示:为了提供更高更好的接待服务质量,看房请提前1小时致电预约!

周边配套:

①、集萃醇熟配套、还原“老成都”惬意烟火——紧邻3号邻里中心、时光里小吃街、新川中心等成型配套;

②、集萃优质学府——蒙小、教科院附幼、附小、附中、金苹果锦城一中等约20所学校云集;

③、集萃便捷交通——临近地铁6号线新通大道站;

④、集萃鲜氧绿意生活——坐拥双滨河湿地,高新罕有,紧邻新怡公园便捷即达新川之心公园。

【新川雅境楼盘优势】

准现房交房时间近,缩短了漫长的等待期,购买后不久即可以装修入住,能快速解决住房需求,既节省了时间,还可以省去租房的成本,时间金钱两节约,购房成本大大减少。、

准现房,在购房前能实地考察,社区大环境、楼间距、采光、还有户型中的小瑕疵、以及室内空间外部环境都完全呈现,一目了然直观感受,现阶段很多楼盘都是展示是一个样、交付是一个样。

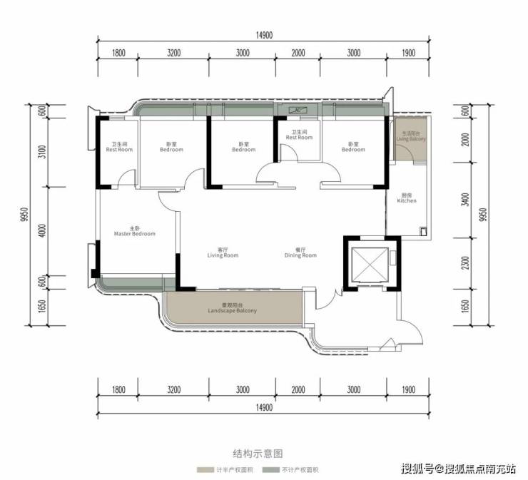
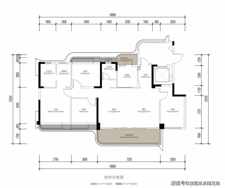
【户型图品鉴】

约132㎡四房双卫环幕式大平层,实用主义

约143㎡四房双卫瞰景大平层,视野无界般交融

新川雅境】售楼部电话:028 - 62444811(已认证)

【新川雅境】销售经理电话:15388440405(微信同号)

温馨提示:为了提供更高更好的接待服务质量,看房请提前1小时致电预约!

全部

相关资讯

报名成功
稍后会有专业的置业顾问联系您
返回楼盘

频道导航

返回首页

看房小程序

APP下载

电话拨通后,请您手动拨打分机号

确定拨打电话

电话号码:

分机号:(可能需要拨分机号)