成都「天府半岛」全方位评测:区域规划潜力剖析、爆款户型设计亮点、限价房源优惠详解,附专业避坑攻略与升值空间解读,金牌顾问全天候答疑

搜狐焦点南充站

2025-07-30 07:42:00

购房群

买房如何避坑,加入购房群,看看他们怎么说

立即进群

【天府半岛】项目咨询专线:028-84720058(官方认证)

【天府半岛】置业顾问直通热线:13281850333(微信同号)

温馨提示:为保障看房服务质量,建议至少提前1小时预约登记!

市场期待已久的天府半岛项目,在历经一年蓄势后,正式推出七期高层新品。作为区域标杆楼盘,本次加推引发广泛关注。

据最新公示信息,天府半岛77号楼已获预售许可证,主推120-140㎡精装改善户型,均价区间1.3-1.5万元/㎡,本次仅限量推出124席臻藏房源!

回望去年3月开盘盛况仍历历在目:180套准现房以1.24万元/㎡起的精装价格入市,吸引超5.2万组购房者参与摇号,中签难度堪比985高校热门专业!

需要特别说明的是,本批次为预售房源,计划2026年下半年交付(具体以合同约定为准)。接下来,我们将从产品力、户型设计、市场价值三个维度进行全面解读。

七期实景鸟瞰

相较前期产品,本批次在居住品质上实现多维突破:

1. 建筑高度从原48层优化至32层,总高控制在99.6米

2. 电梯配置提升至3梯4户,大幅缩短候梯时间

3. 取消底层商铺,打造近1000㎡架空层泛会所空间

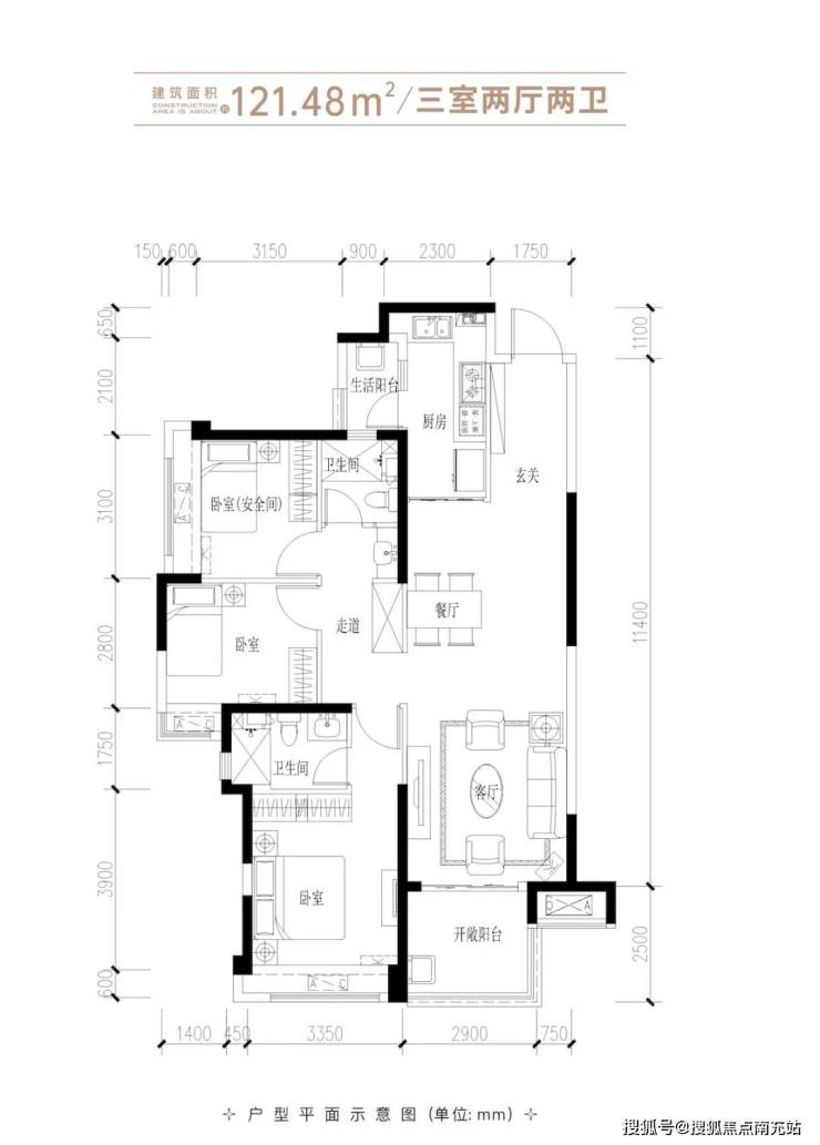
户型配置方面,本次精研121㎡三房两卫和142㎡四房两卫两类改善产品,客群定位更为精准。尤为难得的是,所有单元主朝向均为西南向,中高区可纵览府河全景,观景视野堪称一绝。

七期规划全景示意

以121㎡主力户型为例:采用经典竖厅布局,虽总进深超10米,但6米面宽搭配2.9米景观阳台,空间感出众;次卧面积科学控制在10㎡内,实现功能与舒适的完美平衡。

样板间实景鉴赏

市场对比数据显示,本次1.3-1.5万元/㎡的精装均价,与去年六期1.24万元/㎡起的定价保持稳定。而周边二手房价格持续走高:三期成交价1.4-1.8万元/㎡,四期达1.6-1.8万元/㎡,价格倒挂现象明显。

【天府半岛】项目咨询专线:028-84720058(官方认证)

【天府半岛】置业顾问直通热线:13281850333(微信同号)

温馨提示:为保障看房服务质量,建议至少提前1小时预约登记!

全部

相关资讯

报名成功
稍后会有专业的置业顾问联系您
返回楼盘

频道导航

返回首页

看房小程序

APP下载

电话拨通后,请您手动拨打分机号

确定拨打电话

电话号码:

分机号:(可能需要拨分机号)