中国 · 成都 I 兴城人居 · 未来城
作为成都主城区稀缺的高端住宅项目,兴城人居·未来城由国企兴城人居集团匠心打造,以创新理念重塑城市人居标杆。项目占据一环路江安河畔黄金区位,依托前瞻规划与卓越品质,为都市精英呈现理想栖居范本。
【项目规划】
项目总占地69亩,总建面11.5万方,规划640户精品住宅。采用1.8低容积率与35%高绿化率设计,打造8-10层精装电梯洋房社区。建筑外立面融合现代极简美学,通过大面积落地窗与玻璃幕墙的虚实对比,既提升采光效果,又彰显艺术质感。
【生态人居】
项目创新构建"双生态"体系:内部打造中央镜面水景、环形健身步道等立体景观;外部依托江安河生态走廊,形成天然氧吧。同时严格采用绿色建筑标准,集成节能环保技术,实现健康可持续的生活方式。

核心价值
1. 区位优势
· 交通便捷:城市主干道环绕,快速接驳全城
· 配套完善:自建滨河商业街,5分钟可达成熟商圈
· 教育资源:覆盖3-18岁全龄优质教育
2. 产品优势
· 112㎡三房:南北通透,6.8米景观阳台
· 120㎡三房:16.6米南向采光面,7.1米宽厅
· 140㎡四房:5.8米横厅衔接观景阳台

3. 智能服务
引入浙江未来社区理念,配备智慧安防、智能家居等系统,2.5元/㎡/月的物业服务标准(暂定),打造安全便捷的现代化社区。
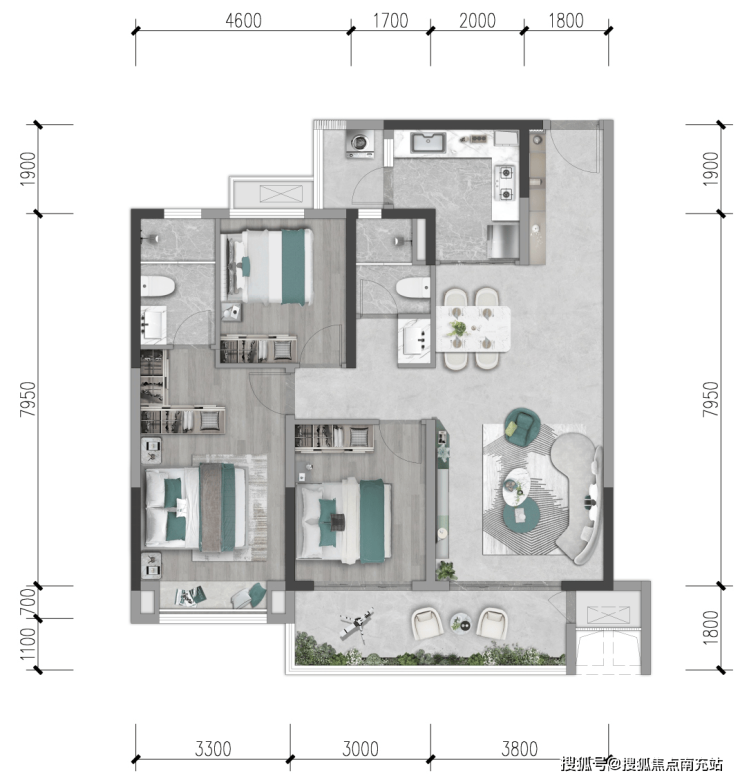
户型详解
112㎡三房两厅两卫
· L型科学厨房优化操作动线
· 主卧套房配备独立衣帽间
· 全明格局保障通风采光

120㎡三房两厅两卫
· 7.1米宽厅彰显空间尺度
· 6.6米观景阳台尽揽河景
· 明厨搭配生活阳台提升实用性


140㎡四房两厅两卫
· 独立中式餐厅满足聚会需求
· 全屋飘窗引入自然光景
· 多功能空间灵活可变

项目亮点
· 国企实力保障:兴城人居集团开发
· 稀缺地段价值:主城一环最后开发地块
· 生态宜居环境:江安河畔,四季宜人
【兴城人居·未来城】置业热线
售楼部:028-84720058(官方认证)
客户经理:13281850333(微信同号)
温馨提示:为提供优质服务,参观需提前预约
(享免费看房专车接送服务)