✪✪深圳【后海招商玺】售楼处位置:400-159-8559转接8666(售楼中心)
✪✪深圳【后海招商玺】售楼处电话☎️400-159-8559转接6688(专人接听)
☎️☎️温馨提示:拨打400电话——听到嘀声后——输入【6688】即可通话☎️☎️
✪✪网上售楼中心—匠心钜制-恭迎品鉴-欢迎来电咨询-预约一对一讲解-请提前联系售楼处销售进行登记!✪✪
4001598559,8666
地脉交融,老钱们偏爱的分寸感
今年底,深圳湾将迎来罕见的豪宅集中供应,富豪阶层有了更多选择。
地段都没得说,至于怎么选,没有绝对的正确,只有更合适自己的。
对时间更有掌控力,更懂得享受生活的老钱们,明显有自己的偏好。
这恰好是后海招商玺的核心优势,其独特的地理坐标,位于后海大道。 快节奏与慢调生活,融合共生,周边生活氛围浓郁 ,正是老钱群体最为珍视的城市基因。✪✪深圳【后海招商玺】售楼处位置:400-159-8559转接8666(售楼中心)

回溯深圳豪宅发展史, 香蜜湖与华侨城板块的长期坚挺,同样得益于这种快慢交织的特质 。
老钱们出行并非只自驾,公共交通便利当然更好,怎么从容怎么来。
这个盘的步行可达范围内,是2号线海月站与湾厦站,2站可换乘后海枢纽,接入11号线与13号线。自驾20分钟内,覆盖前海自贸区与宝安中心,高效通勤与从容生活在此达成微妙平衡 。

周边商业配套,没有传统CBD的商务感。招商花园城与海岸城,都是深圳老牌的人气商圈,再加上深圳湾万象城、太子湾K11这些地标商圈里的新面孔,从日常生鲜到高端零售形成闭环,避免了CBD豪宅常见的生活配套缺位。

当深圳湾1号业主在空中会所洽谈商业合作时,后海的老钱们或许正在海岸城陪孩子挑选新书。 生活的本质,就是享受生活的同时,不影响财富在账本上增值,秘密就藏在这样具体的烟火气中 。
财富家族,除了自身的生活享受,也极为看重下一代的传承,不只限于财富,更是认知与涵养的家族延续,因此极为重视教育资源的配置。
周边是“ 育才教育双核 ”,小学、初中都是育才系学校,实力排名属于深圳头部。育才系出来的孩子,他们的成长路径基本相似,同学间的圈子非常紧密。同时这个盘还自带规划一所幼儿园。
想走国际教育这条路,附近有深圳贝赛思国际学校、深圳蛇口国际学校(SIS)、蛇口科爱赛国际学校( QSI )等老牌国际学校,培养了不少学子通往世界知名大学。

这种“步行即达优质教育+15年全龄覆盖+国际教育”的配置,是深圳湾其他几个新盘所没有的,对重视代际传承的老钱家庭极具吸引力。
2 ►✪✪深圳【后海招商玺】售楼处位置:400-159-8559转接8666(售楼中心)
户型设计美学,经典永不落幕
深圳豪宅长期存在“为溢价牺牲功能”的通病,但后海招商玺约95%使用率,在深圳湾新盘中堪称异类。
这种数据差异背后,是开发商对老钱居住习惯的深度洞察:长期自居的宅邸,每一寸空间都需承载真实生活需求。
建筑结构创新成为破局关键。项目采用核心筒布局消除室内承重墙,使户内空间具备高度可塑性。
框架结构设计的户型,通过非承重墙体分隔,可轻松实现起居与多功能需求的融合。当孩子年幼时,父母可打通相邻房间形成儿童活动区;待成年后又能恢复独立卧室——这种随家庭生命周期演变的弹性空间,恰是老钱们“一生之宅”的精髓所在。
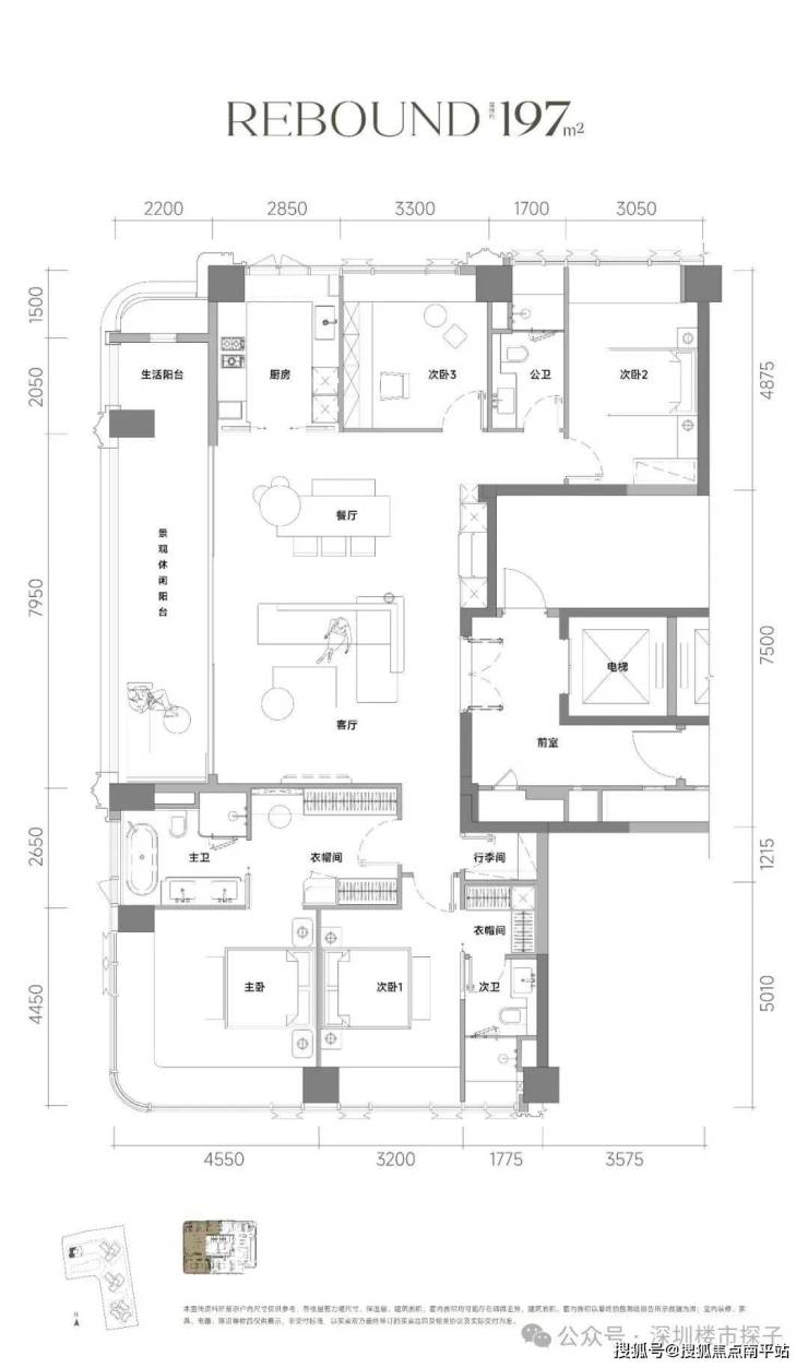
年底首推的产品,建面约197-237㎡大平层户型,两梯两户配置,一层仅两户,且享受专梯入户,私密度很高。我们抢先拿到户型图,跟大家分享。

建面约197㎡户型,含电梯厅综合赠送后使用率可达93-95%。
户型方正,三面采光,是主次卧以餐客厅分隔的 双龙抱珠布局 ,实现动静分区,保障大家庭起居的私密性。
一体化餐客厅进深约6米,开间约8米,连接观景阳台,面积高达约48㎡,塑造休闲会客的尺度感。超大阳台做了景观、家政功能的双区分,阳台总面积约22㎡,休闲与晾晒互不干扰。
配置了U型明厨,操作动线更加高效合理,全屋卫生间都有开窗,采光无暗角。
南向双套间,都配置了衣帽间,视野最好的一个主卧可以设置浴缸及双台盆洗漱池。
主卧打造约4.6米开间,进深约4.5米(含飘窗约0.8米),面积约38㎡,且享受270°巨幕窗景。
次卧套间,约3.2米开间,进深约4.5米(含飘窗约0.8米),面积约22㎡,空间同样舒阔。且每个卧室都设计了宽景飘窗,可以利用起来增加收纳功能,延伸更多窗边休闲功能场景。

建面约237㎡户型,含电梯厅综合赠送后使用率可达93-95%。
也是三面采光设计,双龙抱珠,主次卧分布餐客厅两侧,实现动静分区。
餐客厅空间尺度很大,面积约60㎡,夸张点说,在里面打羽毛球都不嫌挤,且配置了西厨功能区。
阳台总面积约31㎡,长约18.9米,观景与生活功能区分。L型拐角,可设置为休闲观景区,270°瞰景,还增加“X”百变空间(约10㎡,最宽进深约2.4米)。
南向双套间,主卧套间配置超长步入式衣帽间,收纳功能拉满。主卧的开间约7.05米、进深约6.3米(含飘窗约0.8米),面积约44㎡,尺度与太子湾招商玺建面约425㎡户型的主卧相当。

目前已正式开实体样板开放、年底入市的后海招商玺,恰恰击中了老钱们的深层需求 。 据说后海招商玺通过极致挖掘,确保赠送率、阳台率最大化,整体使用率达约超93%! 咨询 “后海招商玺” 可以扫码进行了解最新资讯及进500人项目交流群!
3 ►✪✪深圳【后海招商玺】售楼处位置:400-159-8559转接8666(售楼中心)
玺系进化,用兑现力扭转周期
深圳有不少盘的交付水准,堪称业主的“惊魂记”,甚至豪宅业主也不能例外,但与后海招商玺同一序列的太子湾招商玺用实践扭转了行业认知。
因为其交付的公区品质远超市场预期,二手房价较开盘价上涨超500万,形成独特的“玺系溢价”。这种硬核兑现力,让后海招商玺尚未入市便自带信任背书。
更值得期待的是玺系3.0标准的全面升级,将成为后海招商玺的打造标准。

深圳不少楼盘也在卷公区,但多数是出于买房目的,品质感有,但是业主就是不爱去用。
后海招商玺则基于业主的使用需求,设计天团从实处落笔。梁黄顾操刀建筑设计,用建筑轮廓呼应海天一色; 承迹设计 景观,在园林中复刻微缩雨林;于舍打造会所,将东方禅意与现代材质融合;程绍正韬以美学洞见,负责公区设计;葛亚曦执笔室内,以克制的奢华诠释长居美学。
这些在普通楼盘需重点包装的大师资源,在此只是基础配置。

后海招商玺则打破公区品质“销售化”的窠臼,利用 浮岛甲板设计 进一步拓展了生活维度。
四栋住宅矗立于浮岛甲板之上,上方是抬升式的立体庭院花园,规划人在自然中的洄游动线。

下方是实用功能与建筑艺术兼顾的泛会所空间,这种结构不仅创造了更丰富的公共活动场景,更通过人车分流保障老人与孩童的活动安全。
当深圳湾其他豪宅还在争夺窗外的景观视野时,招商玺已将风景请进了建筑的肌理之中。
泛会所空间,基于业主的真实使用场景,构建12大功能场景,恒温泳池、家宴厅、雪茄吧、网球场、酒窖、行政酒廊、健身房、棋牌室等设计,贴合实用功能,营造空间的休闲氛围。
✪✪深圳【后海招商玺】售楼处位置:400-159-8559转接8666(售楼中心)


当深圳豪宅市场陷入面积竞赛与景观内卷时,后海招商玺选择回归豪宅本质:在老钱们最在意的地段、空间与品质维度,完成招商玺系的产品升级。
它不试图成为朋友圈的视觉焦点,而更像一位沉默的家族管家——在育才二小的晨光里守护成长,在浮岛花园的浓荫中记录时光,用百年建筑语言书写家族的世代故事。
这或许才是深圳豪宅最稀缺的资产:当所有符号褪色后,仍是能安放真实生活的容器。
目前已正式开实体样板开放、年底入市的后海招商玺,恰恰击中了老钱们的深层需求 。 据说后海招商玺通过极致挖掘,确保赠送率、阳台率最大化,整体使用率达约超93%
✪✪深圳【后海招商玺】售楼处位置:400-159-8559转接8666(售楼中心)
✪✪深圳【后海招商玺】售楼处电话☎️400-159-8559转接6688(专人接听)
☎️☎️温馨提示:拨打400电话——听到嘀声后——输入【6688】即可通话☎️☎️
✪✪网上售楼中心—匠心钜制-恭迎品鉴-欢迎来电咨询-预约一对一讲解-请提前联系售楼处销售进行登记!✪✪
免责声明:本宣传资料所有文字、数据、图片及所标尺寸等仅为本项目建设区域设计效果的表达和示意,为要约邀请,不构成要约内容,相关内容不排除因政府相关规划、规定及其他原因而发生变化,一切有关房屋的具体信息以书面合同及政府最终审批文件为准。免责声明:本文章文字、数据和图片皆来源网络,如有侵权请告知立马删除,数据图片仅供参考,不作为邀约或承诺。