






二十载后海 从发展焦点到世界引力场
后海,位于深圳市南山区粤海街道,区域面积约3.5平方公里自2005年开始,从最初的填海工程到“垂直硅谷”,见证了深圳从
“速度”到“质量”的转型也崛起了近二十年,深圳城市发展备受瞩目的现代化中心区。
世界后海 中国经济高地这里的每一扇窗,都是世界经济的瞭望孔。



航海枢纽
作为华南地区重要的邮轮母港,太子湾邮轮母港可停靠22万吨级世界最大邮轮。这里开通了包括香港、澳门、珠海在内的多条水上航线和国际邮轮航线。
低空快线(直升机服务)
太子湾邮轮母港是全国首个“海空一体”复合型口岸,设有直升机起降点。乘坐跨境直升机最快约10分钟即可抵达香港或澳门,为高端商务、紧急事务提供了极速通道。
4 口岸门户
依托深圳湾口岸,作为内地首个深港“一地两检”口岸,便捷往来深港双城。
立体交通
不仅拥有后海大道、东滨隧道等高效地面交通网络,更汇聚了地铁2号线/8号线与12号线,形成多维覆盖,实现地上地下联动,迅捷接驳全城。

人文地标丰盈多元的滨海生活主场
深圳湾体育中心、深圳湾文化艺术中心、海上世界文化艺术空间深圳歌剧院,秀场/剧场/聚场,人文生活地标群落集群以中心高地成就高阶生活主场,尽享海滨艺术生活。

观山望海山海之间的蓝绿生态馥地
四海公园、深圳湾公园、南山公园、人才公园、滨海长廊于山海之间,栖居繁华深处自然里步行/骑行,公园/绿廊目不暇接,悠然徜徉。

超级商圈同台世界的璀璨商业版图
海岸城、深圳湾万象城、太子湾K11、招商花园城世界级地标商圈,全球顶奢商业集群,即刻享一站式繁华矩阵。

高奢酒店塔尖共赏的五星酒店集群
安达仕、美高梅、莱佛士、万豪、凯宾斯基五星级高奢酒店鳞次栉比链接湾区全球商务,精粹塔尖圈层社交。

领航未来国际与公立教育资源汇聚
公立学校:周边育才第二小学、育才第二中学、育才四小、育才三中等。同时,项目规划一所幼儿园,项目周边规划一所九年一贯制学校。国际学校:深圳贝赛思国际学校、深圳蛇口国际学校(SIS)、蛇口科爱赛国际学校(QSI)。
健康守护|优质医疗资源护航
蛇口人民医院 香港大学深圳医院、深圳市南山区人民医院、南山区妇幼保健等医疗安心守候。





「后海招商玺」车行大门做了殿堂级落客区,设有天幕和水景,非常具备归家仪式感。

每栋设有独立入户大堂,风格与大门相呼应。

小区同样是新晋豪宅的配方,通过抬高与城市界面做了区隔,整体豪宅的这种私密性就出来了。花园采用立体园林设计,利用架空层打造会所功能空间,这里不是简单的空间叠加,而是一场关于“如何生活”的持续迭代。




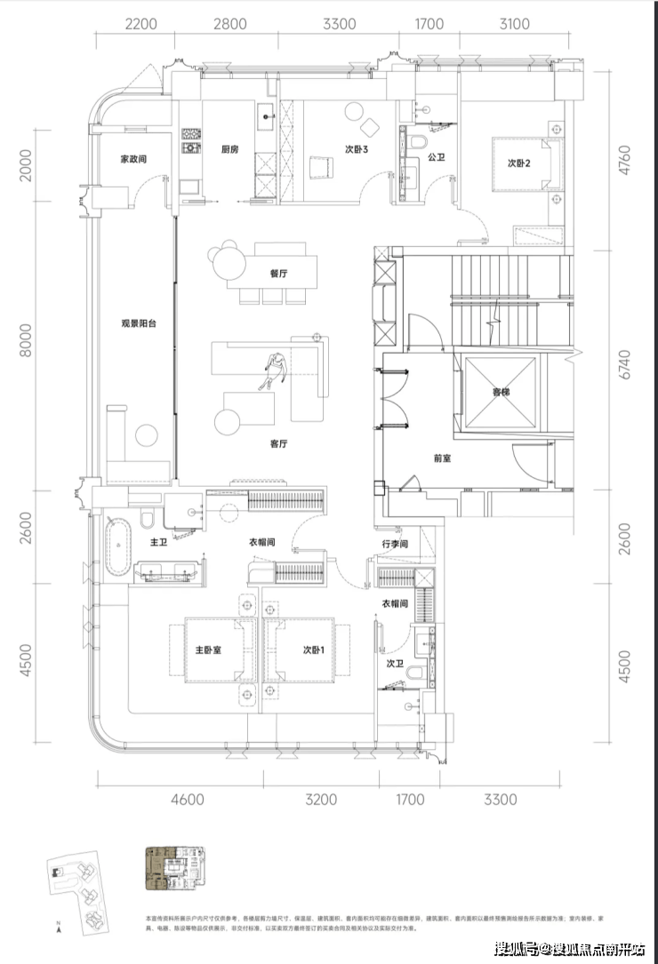
户型为四房三卫设计,功能分区做得很好。采用一户一梯专梯入户,南北通透结构,是整个南山里非常稀缺的户型。
另外户型结构会跟【深圳湾澐玺】一样,采用核心筒+边柱设计,确保户型多样化,且赠送率、阳台率最大化,算上专梯入户使用率预计能达100%左右。
这次「后海招商玺」住宅设计采用“浮岛甲板”设计策略,四栋住宅落于甲板之上,独享甲板庭院花园。进而形成超级社区底盘 + 浮岛绿化甲板的垂直共生人居标杆。

197㎡四+1房三卫户型阳台达8米采用板式结构,南北通透,专梯入户 通风和视野条件优越。双套房,主卧套房配备独立衣帽间和卫生间

237㎡4+1房3卫户型阳台达11.8米,采用270°全景阳台最大化采光和观景效果,功能分区做得很好。采用一户一梯专梯入户,南北通透结构,是整个南山里非常稀缺的户型

深圳南山区深圳湾
深圳南山区深圳湾-后海招商玺/后海玺家园
————
✅✅✅售楼处电话:400-159-8559转接5555(专人接听)
✅✅✅售楼中心电话:400-159-8559转接5555【营销中心】
✅✅✅售楼中心电话/环境/户型/价格/地址/交房时间/楼盘详情!
✅✅✅售楼处最新楼盘资料/周边配套学区/价格/地址/户型/周边配套!
✅✅✅免责声明:本文所用信息图片来源于网络,如侵权请联系本站及时删除!
特别说明:
1.本文为要约邀请,不作为要约或承诺;相关宣传内容不排除因政府相关规划、规定及出卖人分期规划、未能控制等原因而发生变化;
2.本文部分图片来自于网络,如涉及版权使用,请联系删除;文本部分图片仅作为推广示意使用,非交付标准,最终以实际交付现状为准;
3.本宣传资料对项目周边学校等教育资源的介绍旨在提供相关信息,并不意味着本公司对就学安排作出承诺。教育资源的名称、办学性质、办学规模、学位设置、开学(班)时间、招生条件、收费标准及招生区域存在调整的可能,应以政府教育主管部门及办学方颁布的政策规定为准;
4.本资料对项目或产品的介绍,旨在提供相关信息,不意味着本公司对此作出了承诺,买卖双方的权利义务以《商品房买卖合同》及附件等协议为准;
5.宣传方保留对宣传资料修改和解释的权利