长沙绿城金泓文澜樾华(售楼处) 官方网站-绿城金泓文澜樾华售楼处电话 - 环境 - 户型 - 价格 - 地址 -楼盘详情 - 配套 - 电话 - 交房时间 - 位置

南平楼市发布

2026-04-18 08:08:00

购房群

买房如何避坑,加入购房群,看看他们怎么说

立即进群

绿城金泓文澜樾华(纯新盘)售楼处电话:400-159-8559转接8000【官方认证】

绿城金泓文澜樾华(纯新盘)开发商电话:400-159-8559转接8000【权威认证】

绿城金泓文澜樾华(纯新盘)营销中心电话400-159-8559转接8000【售楼中心】

本项目暂不接受临时到访,过来参观样板房请记得提前来电预约!

免责声明:本文所用信息图片来源于网络,如侵权请联系本网站及时删!

4001598559,8000

长沙绿城金泓文澜樾华深度测评:3万一平,地铁学校地段三合一!到底值不值得买?

近几年但凡看过长沙新房的人都深有体会:在长沙买房,地段与教育向来是两难选择。想要兼顾地铁、商业等成熟配套,更是难上加难。地段核心的楼盘,往往缺少优质学区加持;自带名校资源的项目,又大多扎堆在二环开外,远离主城烟火。

故事1983,记忆jing

而今年,绿城金泓文澜樾华的出现,彻底打破这一僵局,或将改写长沙楼市格局——真正实现主城核心地段+顶级学区+双地铁三大稀缺资源高度重合,重新定义长沙改善人居标准,书写楼市全新篇章。

本文将从地段、产品、配套、短板,适合人群,购买建议六个维度,全维度拆解,帮你精准判断:这个楼盘到底值不值得入手,又究竟适合哪类人群。

一、地段:五一商圈内,老城密度是唯一硬伤

项目位于芙蓉区五一大道与迎宾路交汇处,属于长沙老城核心韭菜园板块,距离五一广场仅1.2公里,芙蓉广场620米,橘子洲2.5公里,是长沙3000年文脉的核心承载区。

土地稀缺性:五一商圈内,十余年罕见的纯住宅新盘,项目占地仅21.5亩(约14329㎡),总户数331户(可售287套,有少量回迁指标房),纯商品户占比86.7%,土地稀缺性毋庸置疑。这种“田螺壳里做道场”的小地块,注定了它的定位是城芯改善/高层豪宅,而非刚需大盘。

二、产品:新规高赠送+绿城品质+精美外观

这是25年地王,经过8家地产开发商联合竞争,经过50轮出价,最终由本土开发商金泓+园康拿下,找了绿城合作代建,产品定位为绿城高端月华系产品,文澜樾华的产品力精准击中改善购房者痛点,新规高赠送+绿城精工品质和绿城物业,也是其一大加分项!

基础规划

项目总户数331户,含44套定向优价房,车位配比仅0.9:1,车位紧张是明确短板;绿化率28%,通过三层立体垂直园林弥补地面绿化不足,打造悬浮瀑布、水月庭院等景观,提升居住体验!

绿城向来以品质闻名,本项目建筑采用飞檐立面设计,延续绿城高端审美,辨识度拉满,由梁志天、邢佑浩等大师操刀设计!

以↓为官方设计外立面效果图:飞檐+曲面造型,南向为三玻两腔玻璃,隔音与美观效果绝佳!

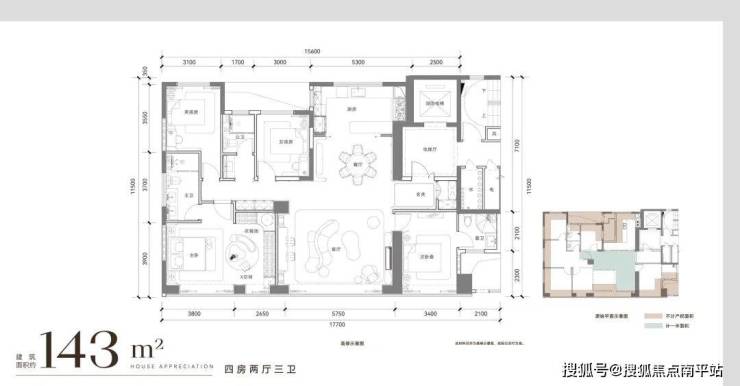
户型方面:128-226㎡全改善,得房率113%-121%主力户型为128/143/170/226㎡毛坯四至六房,一梯一户设计,全系南北通透、全明厨卫,部分户型双阳台,适配不同家庭成长需求!

1. 128㎡四房两卫:刚改入门首选户型,南北通透,得房率约115%,最低门槛上车!

2. 143㎡四房两卫:得房率121%,143㎡实得超170㎡,双套房设计,空间利用率拉满。

3. 170㎡五房三卫:餐客一体化布局,得房率约113%,客厅开间7米,厨房13.6㎡,实得约186㎡,适合多代同堂

4. 226㎡复式6房四卫:配置独立电梯厅,最高赠送约68㎡,实得超270㎡,打造顶豪居住体验。

三、配套:双地铁+一中双本部,全能无短板

交通:双地铁上盖,通勤效率拉满

地铁:项目东南角即为地铁2/6号线迎宾路口站,下楼即达!

车行:南临五一大道,快速抵达长沙火车站(1.5公里)、湘雅二医院、省人民医院,出行便捷。

教育:一中双本部,长沙罕见!

这是项目除地段外的第二大亮点,也是

区别于周边竞品楼盘融华天玺,保利下大陇的核心优势!

初中:

一路之隔长沙市一中初中本部(原来的一中芙蓉)以前成绩确实一般,不过现在由一中校长兼任校长,羿莎校长(原青竹湖湘一校长)执掌!

书记是芙蓉区教育局的一把手,执行校长是生物奥赛金牌教练赵红亮。师资升级,非挂牌分校,货真价实本部管理水准!

这个学校的发展历程有点类似于近几年的教育界黑马,长郡外国语前景无忧!

小学:长沙市一中附属小学(原八一路小学),100米范围内,现在与初中形成完整教育链

教育全龄段:周边八一路幼儿园,一中高中部仅960米,从幼儿园到高中无需换房(高中需要考)。

商业:步行可达袁家岭商圈,五一广场两个地铁站,5分钟即到。IFS、王府井、平和堂等顶级商业环伺,成熟配套即买即享!

医疗:1.5公里内覆盖湘雅二医院、省人民医院等三甲医院,医疗资源丰富。

四、短板与风险:客观避坑,不盲目吹捧

1. 车位配比不足,0.9:1的车位配比,后期停车压力大,改善家庭至少1辆以上车,需提前准备。

2. 老城密度与噪音,容积率3.43+项目南边就是五一路主干道,居住密度与噪音是硬伤,睡眠质量不好的,看房时需仔细感受。

3. 目前对外放风3万一平,算上装修成本,差不多到了3.3万的成本价!价格略高,个人预测开盘在2.5万/平左右。(定这个价格,可能是楼盘体量小,片区内购买力强)

4.地块较小,实际的园林规划,小区公共区域,设计空间有限,楼栋之间楼间距较窄,对采光也有一定影响!

五、适合人群与购买建议

适合人群

1. 有较强经济实力,在河东主城工作,不想等待新区配套的高端改善人群。

2. 重视学区、对地段和交通要求高,区域有限制的家庭。

3. 认可绿城品牌与物业、看重品质和后期物业的人群。

绿城金泓文澜樾华(纯新盘)售楼处电话:400-159-8559转接8000【官方认证】

绿城金泓文澜樾华(纯新盘)开发商电话:400-159-8559转接8000【权威认证】

绿城金泓文澜樾华(纯新盘)营销中心电话400-159-8559转接8000【售楼中心】

本项目暂不接受临时到访,过来参观样板房请记得提前来电预约!

免责声明:本文所用信息图片来源于网络,如侵权请联系本网站及时删!特别说明:

1.本文为要约邀请,不作为要约或承诺;相关宣传内容不排除因政府相关规划、规定及出卖人分期规划、未能控制等原因而发生变化;

2.本文部分图片来自于网络,如涉及版权使用,请联系删除;文本部分图片仅作为推广示意使用,非交付标准,最终以实际交付现状为准;

3.本宣传资料对项目周边学校等教育资源的介绍旨在提供相关信息,并不意味着本公司对就学安排作出承诺。教育资源的名称、办学性质、办学规模、学位设置、开学(班)时间、招生条件、收费标准及招生区域存在调整的可能,应以政府教育主管部门及办学方颁布的政策规定为准;

4.本资料对项目或产品的介绍,旨在提供相关信息,不意味着本公司对此作出了承诺,买卖双方的权利义务以《商品房买卖合同》及附件等协议为准;

5.宣传方保留对宣传资料修改和解释的权利;

全部

相关资讯

报名成功
稍后会有专业的置业顾问联系您
返回楼盘

频道导航

返回首页

看房小程序

APP下载

电话拨通后,请您手动拨打分机号

确定拨打电话

电话号码:

分机号:(可能需要拨分机号)