长沙岳麓「保利·梅溪天珺」
☎☎开发商电话咨询/预约热线:400-159-8559转接7777【售楼中心】
案场限流 看房提前来电预约登记
致电售楼处了解更多信息,安全通话隐藏真实号码,请放心使用
温馨提示:点击上方号码可拨打
郑重承诺:开发商售楼处直销,绝不收取任何费用,中介勿扰!

保利·梅溪天珺 为梅溪湖纯新盘,预推建面143平、187平非毛坯住宅,开盘时间待定。
保利“天字系”首入梅溪湖纯新盘——保利·梅溪天珺, 建面约143、187㎡的户型图曝光。


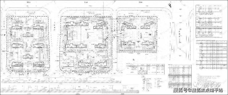
根据公示,保利·梅溪天珺项目总建面约252530㎡,建筑密度22%,绿地率35%,容积率3.36,总户数1244,停车位1381。

据保利透露,保利·梅溪天珺考虑到不同客群的需求,设计了 建面约130-220㎡多个面积段产品,供市场更多的选择。


据悉,保利"天字系"产品向来以一线选址、配套、品质,屹立于每座城市的核心区位,成就城市新封面。

保利·梅溪天珺就是去年12月份,保利拿下的[2022]长沙市080号地块,出让面积约59855.86㎡,纯住宅,楼面价约6698元/㎡,不限价。
根据拿地要求,集中供能接入面积不低于14.07万㎡;还要求衔接中轴地下空间,预留连接麓谷站的通道;还将引进一家排名前100的世界500强央企参与投资建设。
保利·梅溪天珺涵盖集中式商业以及街区式商业,幵配套高端酒店、国际标准高端公寓、国际生态社区等。

保利·梅溪天珺位于岳麓区梅溪湖国际新城二期,雪松路与朝龙路交汇处东南角,紧邻地铁2/6号线。

周边有麓山国际梅溪湖中学、麓谷凌云小学、师大附中凌云中学、师大附中梧桐学校(规划)、招商梅溪花园城(在建)等。

目前,保利·梅溪天珺会客厅、实景样板房已正式对外开放,将 首开B地块,建面约143-188㎡的户型,预计6月首开。


长沙岳麓「保利·梅溪天珺」
开发商销售咨询电话:400-159-8559转接7777【售楼中心】
温馨提示:网上售楼中心〢欢迎来电咨询〢专业一对一热情服务〢
案场限流;请务必致电后与销售电话确认时间,确认后行前往方可参观
仅预约客户可进入销售现场,感谢您的理解和支持!