㊖云起·虔来——长沙【云起·虔来】『开发商售楼处』云起·虔来VIP售楼电话【网上预约】户型分析-房价-样板间/交房/项目配套-开盘价格-2025最新楼盘详情

南平楼市发布

2025-06-05 11:33:58

购房群

买房如何避坑,加入购房群,看看他们怎么说

立即进群

♎♬长沙【云起·虔来】

♎♬售楼处电话☎️400-159-8559转接5555【已认证】꧂✨✽✽✽✽

♎♬营销中心电话☎️400-159-8559转接7777【已认证】꧂✨✽✽✽✽

♎♬温馨提示—拨打400电话—听到嘀声后—输入【7777】即可通话☎️☎️

♎♬楼盘基本信息介绍,地址,户型,备案价,位置,医疗教育,商业交通配套!

☎ 在此温馨提醒:若您计划看房,为确保能享受到更优质、贴心的接待服务,请提前致电售楼部进行预约 。而且,还有免费看房车接送服务哦,若您有此需求,致电售楼处即可预约

【云起·虔来】

洋湖南·长郡旁·超高实得率品质学府洋房/高层

建面约102-169㎡学府洋房/高层 火爆热销

项目地址:长沙·洋湖南·长郡梅溪湖智谷学校旁

<项目信息>

【建筑面积】:187545㎡

【占地面积】:70727㎡

【产品类型】:住宅

【住宅产权年限】:70年

【绿地率】:约30%

【容积率】:约2.0

【产品面积】:建面约102.23㎡、126.41㎡、143.58㎡、169.06㎡

【总户数】:1064户

【开发商】:长沙慧城置业有限公司

————〈PART.1 实力引领〉————☎️☎️售楼处电话☎️☎️400-159-8559转接5555【已认证】(来电尊享优惠活动)

【品牌——国企智谷力作 全资稳健领航】

智谷集团,综合性国企,信用评级AA级。集团稳健发展,布局开发建设、产业投资、产业园区运营和物业服务等多个领域。智谷深耕长沙,以革新城市人居为愿景,全资开发云起·虔来,开篇长沙的下一个人居时代

————〈PART.2 区位价值〉————

【区域——洋湖南东山湾 宜居改善高地】

东山湾产业新城享受四谷向芯利好辐射,洋湖构筑全价值链宜居改善版图,兼具旗舰级成熟配套与城市级自然景观资源。云起·虔来位居洋湖南东山湾片区,目前靳江河穿三环线项目已建设完成,即将通车,近抵洋湖湿地公园、宜家荟聚、京东mall,价值不言自喻☎️☎️售楼处电话☎️☎️400-159-8559转接5555【已认证】(来电尊享优惠活动)

【交通——立体交通枢纽 全域畅行无阻】

六横/六纵/三桥/一隧道立体交通路网,擎领城市发展脉络,链接城市主要商圈,纵享快捷出行

六横:莲坪路、绕城高速、紫苑路、望江路、洋湖路、云栖路

六纵:长潭西高速、学士路、含浦大道、靳江河穿三环线(即将通车)、潇湘南路、潭州大道

三桥一隧道:湘府路大桥、猴子石大桥、湘江特大桥、南湖路隧道

轨道交通:3号线支线及11、13号线(规划中)、无人驾驶中车智轨(规划中)

【景观——自然绿意环伺 胜景恰可栖心】

一江两河四公园,城市天然氧吧,吐纳间尽是鲜氧莹润

一江:湖南省最大河流——湘江

两河:玉赤河、靳江河

四公园:约7200亩洋湖生态湿地公园、下楼即是约5.9万方木梓塘公园、约2000亩狮峰山森林公园、约3800亩大王山森林公园

【教育——九年长郡名校 目送式成长无忧】

长郡中学,全国TOP4名校。长郡梅溪湖智谷学校传承长郡名校基因,打造九年一贯制教育,目前学校已开学,校长、副校长、中层干部、学科带头人等由长梅本部选派,班级管理导师由长梅本部教师担任。项目与学校一街之隔,出门即享优质教育。周边名校林立,书香环绕,助力孩子成才更快一步

(以上信息源自搜狐网,关于教育设施的相关信息,以政府教育部门或其他教育机构公开信息为准,并非我司对于教育设施信息的具体承诺和保证)

【商业——集萃旗舰商业 拥揽万象繁华】

近洋湖核芯商圈,宜家、京东mall、龙湖天街、洋湖水街、长沙荟聚等旗舰商业,靳江河穿三环线项目已竣工,即将通车,约6km约10分钟即可快速抵达,享受一站式休闲购物体验。项目旁规划打造约16万方大型商业综合体,缔造城市全新繁华地标 ☎️☎️售楼处电话☎️☎️400-159-8559转接5555【已认证】(来电尊享优惠活动)

(相关信息来源于湖南智谷投资发展集团有限公司官方网站,仅供参考,最终以政府部门公开信息为准。https://www.hnzhiau.cn/product/42.html?productCateld=7)

【医疗——三甲医院护航 呵护家人健康】

项目周边坐拥三甲级医院,湖南中医药大学第一附属医院(岳麓院区)(在建),距项目约1km、湖南妇女儿童医院,距项目约3km、湖南省儿童医院(西院区)(规划中),完善医疗配套,邻距离的健康保障

————〈PART.3 项目价值〉————

全龄友好理想著区,以多元生活场景,让不同年龄段家庭成员找回理想生活的内核

【人文空间——文化艺术场域 精神回归丰盈】

约1700㎡复合型人文空间——木梓集,致力于打造一处集文化社交、邻里共创、人文共享于一体的城市邻里客厅与创意人文高地。目前不如书馆、不止咖啡、植野商店、漂浮茶室等品牌已进驻

【时尚购物——精奢风情商街 同步国际风尚】

以国际化定位,通过“优质连锁品牌+特色主理人品牌”有机组合,打造成一个复合多元、真实、原生、鲜活好玩的惬意活力灵感街区,深度链接社区业主与周边消费力

【创新场景——抬高式场地 丰富生活体验】

对东南侧整体抬高,构建立体抬高式场地。利用场地优势,打造下沉庭院、全覆盖风雨无阻归家动线、第二会客厅、人车双分流、阳光地库等,实现多场景链接

【景观升级——高定下沉庭院 全龄互动园林】

约6000㎡超大尺度沉浸式下沉庭院,划分三大功能区,层层进阶,所感、所见、所享,每一重境界都是不一样的极致体验。园区集儿童乐园、休闲、共享交际于一体,实现生活与生态的无界交融

【豪宅标准——全覆盖风雨无阻归家动线】

全覆盖风雨无阻归家动线,实现社区大门、风雨连廊、四大主题架空层的连通,形成一个晴雨多场景可用的“社区洄游公园”,打破户外场景限制

【考究细节——人车双分流 人性化归家动线】☎️☎️售楼处电话☎️☎️400-159-8559转接5555【已认证】(来电尊享优惠活动)

下沉式庭院的巧妙布局,划分人行车行双归家动线,双动线分别实现人车无交叉,减少了噪音和空气污染,为老人和孩子出行提供了安全的保障

【领先设计——会呼吸的阳光地库 照亮归途】

利用地势高差,打造通透的阳光地库,引入更多自然采光,汽车从外部进入的时候,视线明暗切换更自然

————〈PART.4 户型鉴赏〉————

『 云逸 』

建面约169.06㎡ 4室 / 2厅 / 3卫 ☎️☎️售楼处电话☎️☎️400-159-8559转接5555【已认证】(来电尊享优惠活动)

『 云景 』

建面约143.58㎡ 4室 / 2厅 / 3卫

『 云舒 』

建面约126.41㎡ 4室 / 2厅 / 3卫

『 云灿』

建面约108.39㎡ 2+1室 / 2厅 / 2卫

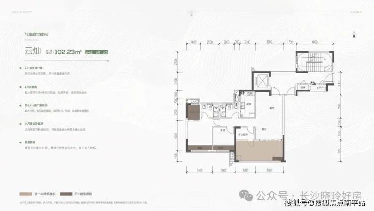
『 云灿 』

建面约102.23㎡ 2+1室 / 2厅 / 2卫

超高实得率品质学府洋房/高层

火爆热销 恭迎品鉴

地址:长沙·洋湖南·长郡梅溪湖智谷学校旁

☎️☎️售楼处电话☎️☎️400-159-8559转接5555【已认证】(来电尊享优惠活动)

云起虔来

♎♬长沙【云起·虔来】

♎♬售楼处电话☎️400-159-8559转接5555【已认证】꧂✨✽✽✽✽

♎♬营销中心电话☎️400-159-8559转接7777【已认证】꧂✨✽✽✽✽

♎♬温馨提示—拨打400电话—听到嘀声后—输入【7777】即可通话☎️☎️

♎♬楼盘基本信息介绍,地址,户型,备案价,位置,医疗教育,商业交通配套!

☎ 在此温馨提醒:若您计划看房,为确保能享受到更优质、贴心的接待服务,请提前致电售楼部进行预约 。而且,还有免费看房车接送服务哦,若您有此需求,致电售楼处即可预约

特别说明:

1.本文为要约邀请,不作为要约或承诺;相关宣传内容不排除因政府相关规划、规定及出卖人分期规划、未能控制等原因而发生变化;

2.本文部分图片来自于网络,如涉及版权使用,请联系删除;文本部分图片仅作为推广示意使用,非交付标准,最终以实际交付现状为准;

3.本宣传资料对项目周边学校等教育资源的介绍旨在提供相关信息,并不意味着本公司对就学安排作出承诺。教育资源的名称、办学性质、办学规模、学位设置、开学(班)时间、招生条件、收费标准及招生区域存在调整的可能,应以政府教育主管部门及办学方颁布的政策规定为准;

4.本资料对项目或产品的介绍,旨在提供相关信息,不意味着本公司对此作出了承诺,买卖双方的权利义务以《商品房买卖合同》及附件等协议为准;

5.宣传方保留对宣传资料修改和解释的权利

全部

相关资讯

报名成功
稍后会有专业的置业顾问联系您
返回楼盘

频道导航

返回首页

看房小程序

APP下载

电话拨通后,请您手动拨打分机号

确定拨打电话

电话号码:

分机号:(可能需要拨分机号)