2026官网-南宁麒麟凤岭悦府售楼处电话地址→售楼中心首页网站→楼盘百科详情→麒麟凤岭悦府项目售楼部24小时电话

南平楼市发布

2026-01-15 10:55:25

购房群

买房如何避坑,加入购房群,看看他们怎么说

立即进群

🔥🔥南宁【麒麟凤岭悦府 】🔥🔥

💗鉴赏热线✆✆400-159-8559转5158(官网认证)💗

💗营销中心电话:☎☎400-159-8559转5158【专人接听】💗

💗【售楼中心】网上售楼中心〢欢迎来电咨询💗

💗〢专业一对一热情服务给您专业的置业方案💗

💗〢期待您成为我们的尊贵的业主💗

2026年伊始,凤岭北再迎高光时刻。

麒麟凤岭悦府长虹路城市展厅,于1月10日在万科广场盛大揭幕。众多媒体及大V和嘉宾齐聚一堂,现场人潮涌动,氛围热烈,实力乐团激昂开场,凯誉汇集团董事长亲临致辞,宣告凤岭北低密新作,正式进入市场视野。

地 段 鼎 盛

执掌凤岭北芯,坐拥东站鼎盛圈

| 示意图、图源网络

项目雄踞南宁公认的价值极核—— 凤岭北。这里不仅是CLD中央生活区,更是东站枢纽鼎盛圈的核心辐射区。南宁东站,不仅是交通枢纽,更是驱动城市资源汇聚、经济升级的强力引擎。

| 示意图、图源网络

占位凤岭北,就是执掌城市主动脉;融入东站圈,就是坐享发展确定性。 青秀区“十四五”GDP破1500亿,凤岭北正是其价值封面。 这不是选择地段,而是占据城市前排席位。

全 维 配 套

奠定家庭成长基石

1. 立体交通网

执掌全城速率,高效链接未来

规划中的地铁1号线长虹路站举步可达

BRT快速接驳,南宁东站、凤岭客运站双核驱动

立体路网,让通勤效率全开,瞬息直通全城

| 示意图、图源网络

2. 鼎盛商业环

双商圈交汇,坐拥永不落幕的繁华

万象城-航洋城都会级商圈举步即达

万科广场、广西首家山姆会员店、星悦荟环伺

国际消费体验,于此成为日常,丰盛生活每一面

| 示意图、图源网络

3. 菁英教育链

12年教育一步到位,成长底气十足

毗邻翠竹实验学校(九年一贯制)、

滨湖路小学(长虹校区)等优质学府

家门口的目送式教育体系,为子女铺就坚实成长之路

| 示意图、图源网络

4. 健康守护圈

三甲医疗资源环伺,构筑家庭健康屏障

区妇幼保健院、中山大学附属第一医院广西医院

等权威医疗机构在侧

为全家健康提供坚实后盾,生活无忧

| 图源网络

5. 生态活力场

公园环抱,出则繁华入则静谧

石门森林公园、广西药用植物园等城市绿肺环绕

国家4A级凤岭欢乐世界举步即达

实现繁华与静谧的自由切换

| 图源网络

低密升级 品质住区

至高实得约116%高能空间

麒麟凤岭悦府于凤岭北芯,打造 容积率仅约2.2的低密住区,这并非常规操作,而是对标壕宅级的稀缺配置。我们拒绝拥挤,只为兑现舒展从容的生活尺度。

| 效果图

| 效果图

建面约92-125㎡新规高拓洋房,以卓越设计实现至高约116%实得率。这意味着:

空间成长性:始终适配家庭结构的变化;

资产高能性:同等面积,多出一间房功能;

生活确定性:以高实用率,锁定未来数十年的居住舒适度。

这是面向未来的成长型住宅,不仅满足当下,更为家庭每一步进阶预留空间。

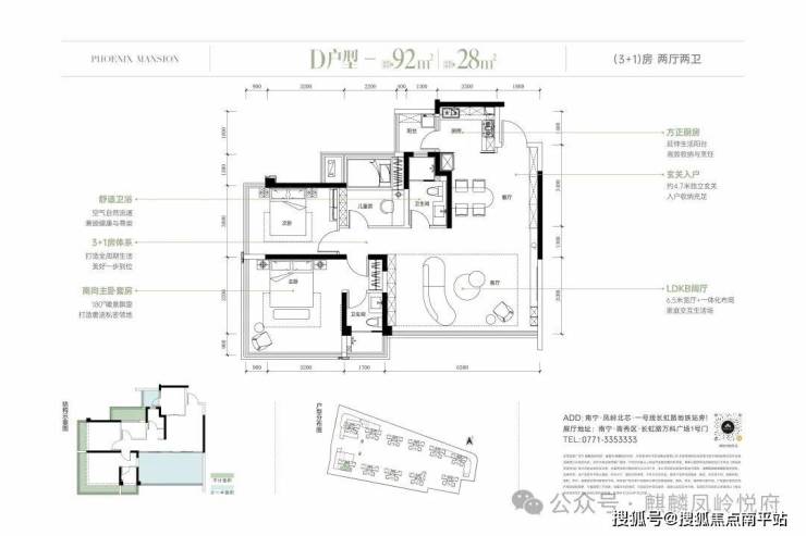
户型鉴赏

<<左右滑动观看户型图 >>

🔥🔥南宁【麒麟凤岭悦府 】🔥🔥

💗鉴赏热线✆✆400-159-8559转5158(官网认证)💗

💗营销中心电话:☎☎400-159-8559转5158【专人接听】💗

💗【售楼中心】网上售楼中心〢欢迎来电咨询💗

💗〢专业一对一热情服务给您专业的置业方案💗

💗〢期待您成为我们的尊贵的业主💗

免责声明:本宣传资料所有文字、数据、图片及所标尺寸等仅为本项目建设区域设计效果的表达和示意,为要约邀请,不构成要约内容,相关内容不排除因政府相关规划、规定及其他原因而发生变化,一切有关房屋的具体信息以书面合同及政府最终审批文件为准。免责声明:本文章文字、数据和图片皆来源网络,如有侵权请告知立马删除,数据图片仅供参考,不作为邀约或承诺。

全部

相关资讯

报名成功
稍后会有专业的置业顾问联系您
返回楼盘

频道导航

返回首页

看房小程序

APP下载

电话拨通后,请您手动拨打分机号

确定拨打电话

电话号码:

分机号:(可能需要拨分机号)