4001598559,5555

(效果图)
【项目概况】
✨开发商:湖南自贸试验区运发房地产开发有限公司
✨物业公司:湖南水清木华物业管理有限公司
✨用地面积:总占地面积约1200亩,其中绿地配套用地约500亩、教育配套用地约200亩、建设用地约500亩
✨绿地率(七期):35%
✨容积率(七期):2.37
✨总楼栋(七期):1+16层城市森林花园住宅:1#2#;1+20层城市森林花园住宅:3#4#8#9#;1+20层空中花园别墅:5#6#7#
✨总户数(七期):284户
✨面积段(七期):约269-565平米
✨层高(七期):标准层3.3-3.6米

【项目地址】
☀中国长沙自贸会展区高塘坪路与滨河路交汇处
【项目区位】
(571平米l户型)✅✅✅售楼处𝗩𝗜𝗣☎️预约热线:400-159-8559转分机号5555【已认证】
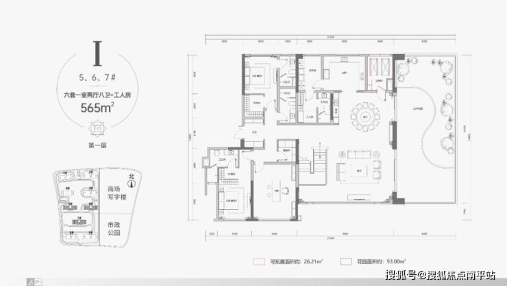
户型图






【运达品牌】
❤幸福美好生活的综合服务商
运达集团作为一家拥有房地产、酒店、贸易、工业四大核心板块和互联网O2O综合服务平台的品牌企业。30年来,创新不止,在多个领域创优争先,运达地产始终专注于开发高端产品、提供高端服务、创造高端生活,秉承“精而美”的发展理念,已为超万户高端家庭打造集吃、住、娱、购、商务办公于一体的全方位体验生活方式 ,是幸福美好生活的综合服务商 。
公司在涉足的多个领域创造了长沙第一、湖南第一乃至中国第一、湖南最高端的酒店、最精致的商场、最高品质的住宅、最高标准的写字楼,都贴上了运达标签✅✅✅售楼处𝗩𝗜𝗣☎️预约热线:400-159-8559转分机号5555【已认证】
【运达会展湾】
🌿湖湘首个湾区高端城市综合体
运达会展湾位于中国(湖南)自由贸易试验区长沙会展片区国际交流区。总占地面积约1200亩,其中绿地配套用地约500亩,包括浏阳河风光带公园、双主题市政公园;教育配套用地约200亩,包括育英会展小学、雅礼洋湖会展中学、长郡会展中学。
项目建设用地约500亩,建面约90万平米,规划业态包括国际五星级奢华品牌酒店、高端商业街区、医疗康养中心、运动中心、青少年活动中心、生态企业总部、独栋花园别墅、城市森林花园住宅、多层洋房住宅及阔景小高层,将打造为业态多元、科技智能、节能环保、生态优美的现代化高品质国际社区。
【项目价值】
🏙 政府重点打造的长沙副中心 媲美上海虹桥的空铁一体城市新区
项目所在的长沙会展片区,是湖南省政府和长沙市政府重点发展的长沙副中心、中部地区国家级门户。集“高铁枢纽、空港机场、会展会议、生态文旅”等优质资源于一体,叠加“自贸区”开放平台优势,是媲美上海虹桥的空铁一体城市新区、长沙连接世界的新中心。
🚅国际空铁枢纽 五维立体交通
项目拥有全国少有的“空铁一体”交通优势,毗邻高铁南站、黄花机场、4个高速互通口和7条轨道交通线路,坐享“地铁、高铁、磁悬浮、航空、高速”五维一体的立体交通,让出行者方便快捷通全球。
🎓品牌名校护航 15年优质教育配套
项目配套育英会展小学、雅礼洋湖会展中学、苏州外国语国际学校等众多名校,自建2500平米高品质幼儿园,毗邻雅礼中学东校区(本部高中一校两址)、雅礼会展学校(九年一贯制)、长郡会展中学,业主子女近享15年优质教育资源。
🍀 一线浏阳河景观 多生态公园环绕
项目坐揽“一带一轴一洲一湿地双公园”自然景观资源,包括10公里浏阳河风光带、700亩中轴绿地公园、浏阳河磨盘洲、万亩画田垸湿地公园及双主题市政公园,形成“园中有园、户户观河、家家有景”的稀缺生态大境。
🏦 汇聚国际顶级业态 引领高端品质生活
博采全球城市精华、接轨国际高端商业、汇聚十大顶级业态,运达集团立志打造极致精美的超级作品,为长沙贡献一张面向世界的“城市新名片”。
🏤 丽思卡尔顿酒店 全球首屈一指 名流政要下榻首选
每一座丽思卡尔顿酒店,都是一处城市奢华地标。湖湘首店落子运达会展湾,将以世界一流的硬件设施和卓越服务,成为各国政要、社会名流到访湖湘的下榻首选。
🛍 高端商业街区 尽揽繁华 接轨国际潮流业态
萃取上海新天地、成都太古里等商业精髓,接轨国际潮流业态,汇聚世界时尚名品,打造城市时尚潮流中心与乐享圣地,满足业主休闲、购物、聚会、娱乐等高品质生活所需。
🎾文体康养中心 匠造多维配套 丰富社区功能
斥巨资打造小区文体康养中心配套,高标准建设医疗康养中心、运动中心、青少年活动中心,全方位满足业主医疗、运动、文化需求。
🏫 独栋花园别墅 全豪装交付 打造全新生态总部
定制级总部独栋别墅,一栋一企一花园,4层豪装别墅,3.9米奢阔层高,打造奢华商务空间。观园揽河,尽享低密度、花园式居家与办公环境,成为国内外知名企业青睐的总部优选之地。
🏠城市森林花园空中别墅 全国首创 定义城市墅居新生活
7.2米双层空中别墅,豪华六套房设计。近100平米空中庭院,三面通透,拥享270°环幕景观视野。于繁华之上,乐享别墅生活体验。
🏡 城市森林花园住宅 创新人居 私享空中庭院
城市森林花园住宅,实现建筑与自然的完美融合。6.6米挑高空中庭院,通过创新设计,既具有良好的通风透光性,又保证居家私密性。
🏘 水岸花园洋房 滨河观景 舒享静谧宽居
超大面宽,阔景双阳台,纵览浏阳河一线美景。3.3-3.6米奢适层高,中西双厨格局,精筑奢雅空间,顶层复式洋房,独享屋顶花园。
🏡 阔景小高层 观园品河 尽享舒适生活
2梯3户,大面宽短进深,多重阳台、飘窗设计,超高得房率。3.3米奢适层高,最小户型亦配置套房,以大尺度营造舒适度。
🌠运达豪装系标准 定制奢雅享受
精挑细选每一种用材,精雕细琢每一道工艺,以品质瑕疵“零容忍”态度,精益求精建造至臻至美的产品。
📱全维度智能安保系统
周界防护、消防联动、数字监控、门禁控制、可视对讲、访客管理、保安巡更、装甲大门,八大系统构建高枕无忧的安保体系。⛲温馨雅致的入户体系
小区大堂、单元首层大堂和车库大堂,三重入户,地下车库天花金属吊顶、地面通体砖。墙面仿大理石瓷砖,搭配金属收边,出入皆享尊崇体验。
🧱高端环保的装饰材料
臻选高端大理石岩板、奢华酒店标准饰面、手工扪皮扪布等高端环保材料,营造典雅舒适空间。
📺全方位智慧家居系统
基于AI智能物联系统,支持通过云端、智能终端,随心控制家电、空调、照明、窗帘等设备,智能家庭场景一手掌握。
🧭舒适节能的暖通设施
全屋高端品牌变频多联机、新风、地暖系统,室内时刻空气清新,温度怡人。
🛋高端品牌厨卫设备
厨房配备高端整体橱柜,品牌厨电、专用空调、高端卫浴洁具,尽显生活品味。
【运达荣誉】
🏆国家权威机构 多项专业大奖品质认证
2008年,运达国际广场荣膺“鲁班奖”
2017年,运达中央广场荣膺“鲁班奖”
2020年,运达中央广场荣膺“广厦奖”
2021年,运达公寓入选“中国10大超级豪宅”
2022年,运达中央广场入选“亚洲10大超级豪宅”
2024年,运达地产原创城市森林花园建筑荣获实用新型专利
【管家服务】
👩运达有温度的美好服务,超乎预期的完美体验
“售卖一次,服务一生”的管家理念、30年高端人居的管理经验,让生活更美好。朝送暮迎、零打扰作业、每日精心维护、24小时尽心值守、亲如家人的贴心呵护 ,平凡小事尽善尽美,用心守护始终如一。
免责声明:本宣传资料所有文字、数据、图片及所标尺寸等仅为本项目建设区域设计效果的表达和示意,为要约邀请,不构成要约内容,相关内容不排除因政府相关规划、规定及其他原因而发生变化,一切有关房屋的具体信息以书面合同及政府最终审批文件为准。
免责声明:本文章文字、数据和图片皆来源网络,如有侵权请告知立马删除,数据图片仅供参考,不作为邀约或承诺