💕天津【 城投东方紫宸】💕
💕✆✆鉴赏热线:400-159-8559接通后输入3333(已认证)💕
💕网上售楼中心〢欢迎来电咨询 💕
💕专业一对一热情服务给您专业的置业方案 💕
💕期待您成为我们的尊贵的业主 💕

河东首个4.0全系架空产品,实景呈现 引领全市.超低容积率1.8 墅级洋房住区
· 城投东方紫宸


交通出行便捷
项目紧邻地铁 4 号线万东路站,该地铁线路可换乘地铁 5 号线、3 号线、 2 号线和10号线,未来还将直通天津西站。此外,周边还有 “三横三纵” 的立体式公路交通网络以及 20 多条公交线路,形成了多维立体交通体系,方便居民快速到达城市各处。

教育资源优质
周边直线 3 公里范围内教育资源丰富,且为全天津唯一的三选学区,新签约市五所之一的天津实验中学(规划中九年一贯制),还有河东七中教育集团东局子学校(九年一贯制)、河东实验集团行知小学、天津市实验幼儿园等,能为孩子提供优质的目送式教育。
商业配套完善
处于全天津第三大商业中心 —— 万爱商圈 1 公里生活圈内,周边有万达广场、爱琴海购物中心等商场。同时项目还自建 20 万平米商业综合体,涵盖餐饮、娱乐、购物、休闲等丰富业态,可满足居民多样化的消费需求。

·项目介绍
天津市河东区津滨大道万东路93号【4号线万东路站B出口旁】
【开发商】
天津城投集团(天津最大国企,全国最大城投类企业,天津市政府批复天津唯一城市综合运营服务商)
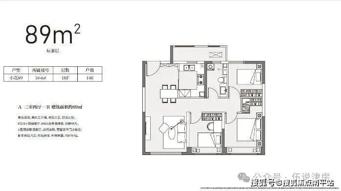
【户型】
小高
89平米,105平米 18层到顶2梯4户
洋房
100平米,6层\9层到顶1梯2户
110平米,11层到顶1梯2户
128平米 ,6层到顶1梯2户 一楼带院带地下室 顶楼带阁楼露台
165平米,6层到顶1梯2户 一楼带院带地下室 顶楼带阁楼带院
【绿化率】45%
【交房标准】毛坯
【地块建面】约7.1万㎡(含商业,车库)
【地块占地】约4万㎡
【总户数】650
【容积率】1.8
【交付时间】2026年9.30号
九大必买理由
1.【天津城投,擎动城市发展】天津最大的国有企业,全国最大城投类企业,天津市政府批复天津唯一城市综合运营服务商
2.【双中心板块,位于河东中心】政务、商业双中心,占据城市发展战略腹地
3.【产品迭代,引领市场】河东首个4.0全系架空产品,引领全市稀缺1.8低容积率墅级洋房住区
4.【繁华主场,执掌河东繁华】河东万达、爱琴海1公里生活圈,吃喝玩乐,举步即达
5.【四号线上,多维立体交通]地铁4号线万东路站上盖,双快速路,十余条公交线路通达全城。
6.【优质学府,全天津唯一的三选学区】新签约市五所-天津实验中学(规划中九年一贯制)河东七中教育集团东局子学校(九年一贯制),河东实验集团行知小学、天津市实验幼儿园,目送式教育,助力孩子健康成长。
7.【两园一河,健康颐养人居】月牙河、河东公园及自建1万平米运动主题公园在侧,活力鲜氧环伺。
8.【三甲医院,为家人保驾护航]2公里范围内武警医院,三中心医院两所三甲综合医院为家人保驾护航
9.【超强兑现力-安家一步到位]已打造68万方品质大盘,十大地块,包含围合式住区,风情商街,文化教育,景观园林于一体
【户型图】






💕天津【 城投东方紫宸】💕
💕✆✆鉴赏热线:400-159-8559接通后输入3333(已认证)💕
💕网上售楼中心〢欢迎来电咨询 💕
💕专业一对一热情服务给您专业的置业方案 💕
💕期待您成为我们的尊贵的业主 💕
免责声明:本宣传资料所有文字、数据、图片及所标尺寸等仅为本项目建设区域设计效果的表达和示意,为要约邀请,不构成要约内容,相关内容不排除因政府相关规划、规定及其他原因而发生变化,一切有关房屋的具体信息以书面合同及政府最终审批文件为准。免责声明:本文章文字、数据和图片皆来源网络,如有侵权请告知立马删除,数据图片仅供参考,不作为邀约或承诺。