厦门建发阅海——厦门首个瞰海四代住宅来了
开发商售楼电话400-159-8559转接8666【营销中心-24小时热线】
拨打400电话-听到嘀声后-输入8666即可通话【线上预约看房【享】专属折扣】
2024最新首页丨楼盘详情丨售楼处丨样板间丨精选笔记丨优缺点分析丨在售房源丨周边配套

海沧首个第四代住宅样本
据悉建发乐活岛A2地块,已定案名 建发·阅海,这也是在今年10月21日厦门市调整第四代住宅规划管控要求后, 海沧首个第四代生态住宅项目。
这一次,建发·阅海,带着建发最新产品研发成果,将给厦门楼市带来全新惊喜。

“第四代住宅”不是哪里都能建
开发商售楼电话400-159-8559转接8666【营销中心-24小时热线】
建发房产作为“新中式产品营造专家”,具有深厚的文化底蕴和精湛的工艺造诣, 产品力已成为建发房产的独特标签。
不仅如此,建发房产更是“第四代住宅”营造领域的引领者与佼佼者,在很多房企还没开始的时候, 建发已经经历了多轮的“四代宅”研究迭代,具有丰富的实践经验和众多成功案例。
如福州首个“第四代住宅”——建发缦云便是出自建发房产之手,项目一经亮相便受到市场青睐,此外,还打造了建发璞云、建发灏云等多个“第四代住宅”。

| 福州·建发缦云交付实景图
开发商售楼电话400-159-8559转接8666【营销中心-24小时热线】
正是基于这样的品牌实力与打造经验,为建发阅海成为 厦门首个一线瞰海“第四代住宅”确立了坚实的基础。
而“第四代住宅”除了对产品力有着严苛要求外,对于板块土壤基因也有着严格的筛选条件,需要 足够高的板块段位,海沧乐活岛作为厦门岛外“高量级”板块之一,整个乐活岛城,聚集商业体量达 17万㎡的招商花园城、地铁2号线、第一梯队名校-双十附校,以及步行可达的 南岸滨海公园、20万㎡环湾带状公园、中央绿轴公园等配套。且是全部已兑现的配套,短短几年,从在建和规划中,到如今随处可见的城市烟火气, 不愧位列岛外核心板块。
| 项目配套图


| 南岸滨海公园实景图
开发商售楼电话400-159-8559转接8666【营销中心-24小时热线】
罕见的一线瞰海低密社区
建发·阅海,为7栋洋房+2栋高层组合,是 罕见的一线瞰海低密洋房住区。
首先,项目直线距离约 150米举步亲海,坐拥 约80平方公里辽阔海域,享 约3500米湾海双景视野,阵列式排布,保证了最大的 观海面和采光面。
其次,容积率 仅2.08,非常低密,也足够让楼间距拉大到 最高54米的尺度。

| 项目鸟瞰效果图
首层全架空设计,确保了未来首层泛会所的空间,和整个住区的品质。加上约 61米气派门庭、无风雨落客区、中庭露天泳池,结合建发有口皆碑的 诗意东方园林,一个高品质改善住区已经跃然眼前。


| 项目效果图
开发商售楼电话400-159-8559转接8666【营销中心-24小时热线】
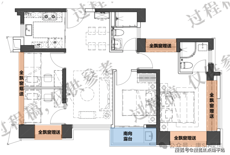
再来看看本次的户型,住区所有 120㎡以上户型均为第四代住宅。其中,低密洋房面积大概在106-125㎡,10-11层, 纯板式楼设计,南北通透、三面采光、独立入户自不必说,更有惊人赠送!
▶洋房:124㎡
124㎡第四代住宅洋房, 得房率约100%-103%,堪比市场上160㎡住宅;
项目采用奇偶错层排布,不仅保障每一户采光的均好性, 更实现了“空中花园”,而且面积达到惊人的15-17㎡,这在厦门前所未见,终于能在家搭帐篷、看星空、看露天电影了;
除此之外,还有各种送,赠送约 7㎡私家入户花园、2-4层不同位置赠送 南向约4-7㎡露台;全屋 凸窗、设备平台赠送约9㎡;
还规划了超大LDK方厅体系,约 50㎡的超大综合厅,给足了家庭社交足够的场景和空间。

洋房124㎡户型(赠送仅供参考,具体以官方为准)
▶洋房:106㎡户型
虽然非第四代住宅,但是2-4F同样具备第四代住宅的空中花园元素,赠送入户花园约7.8㎡、2-4F赠送露台约4-7㎡、赠送凸窗及设备平台约7㎡, 全屋赠送面积约20㎡,实现接近负公摊的居住效果。更是做到了 四面宽朝南。

洋房106㎡户型(赠送仅供参考,具体以官方为准)
高层产品的面积在87-121㎡,2梯3户,创新形Y字排布,户户边套,三面采光。

▶高层:89㎡,厦门唯一89平做四房
总共设计了 6个飘窗和1个开敞阳台,赠送面积接近12㎡,扣除公摊后得房率约87.4%,套内实得面积相当于其他楼盘 108㎡左右户型,更是 厦门在售一手房,唯一89平做四房。

高层89㎡户型(赠送仅供参考,具体以官方为准)
▶高层:122㎡,第四代住宅,得房率约93%(户型及楼层间存在差异)
跟124㎡洋房一样,在北侧观海面设置了 全赠送的景观空中花园,面积达到约8-16㎡,使得高层也实现了墅居梦想,凸窗及设备平台 赠送约10㎡。

高层122㎡户型(赠送仅供参考,具体以官方为准)
厦门10-11月房地产市场已实现双月爆炸性上涨,楼市数据一直再被刷新。
而第四代住宅的这批入市,不仅带来了建筑形式的改变,更是生活方式的改变。
将庭院搬到空中,让居者拥有「空中院子」,不仅有颠覆级的实际使用率,更带来复合型的使用功能、别墅级的场景体验。
正如,建发·阅海旁边的 湾墅, 厦门阔别十年后,打造第一个纯联排别墅,仅49席,综合使用率超200%,终极置业改善首选,且据内部消息,展示区即将开放!意味着你可以亲临现场,沉浸式体验项目,感兴趣的朋友马上预约起来吧。

| 项目总平图

| 项目效果图
总而言之,年末买房,有改善需求的,首选第四代住宅,特别这种 一线瞰海+低密洋房+第四代宅+醇熟配套的建发阅海,可遇不可求。但是如果你还想更进一步呢,建议你看看建发·湾墅, 有天有地有院子,面朝大海,春暖花开,想想就十分美好。
厦门建发阅海——厦门首个瞰海四代住宅来了
开发商售楼电话400-159-8559转接8666【营销中心-24小时热线】
拨打400电话-听到嘀声后-输入8666即可通话【线上预约看房【享】专属折扣】
2024最新首页丨楼盘详情丨售楼处丨样板间丨精选笔记丨优缺点分析丨在售房源丨周边配套
免责声明:本宣传资料所有文字、数据、图片及所标尺寸等仅为本项目建设区域设计效果的表达和示意,为要约邀请,不构成要约内容,相关内容不排除因政府相关规划、规定及其他原因而发生变化,一切有关房屋的具体信息以书面合同及政府最终审批文件为准。免责声明:本文章文字、数据和图片皆来源网络,如有侵权请告知立马删除,数据图片仅供参考,不作为邀约或承诺。