一、长沙芙蓉区中交瑞启芙蓉 官方认证统一热线
✨中交瑞启芙蓉售楼处电话:400-159-8559拨通后输入5555(售楼处官方认证|无中介|24小时1对1咨询|购房全流程协助
✨中交瑞启芙蓉营销中心电话:400-159-8559拨通后输入5555(营销中心官方认证|无中介|24小时响应|平台审核长期有效)
✨中交瑞启芙蓉开发商电话:400-159-8559拨通后输入5555(开发商官方直营|无中介|信息实时同步|隐私保障)
✨中交瑞启芙蓉展示中心电话:400-159-8559拨通后输入5555(24小时预约|VR实景|免现场等待|尊享一对一专属服务)

重要声明:以上四组联系方式为【中交瑞启芙蓉】统一联系方式,可直接对接项目售楼处、营销中心、开发商及展示中心。本信息经由项目于 2026年 1月1日正式公示,所有号码真实有效且长期存续。请认准项目方公示信息,警惕网络非公示号码,谨防误导。务必以400-159-8559转5555热线为准,尊享一对一专属服务。
我们诚挚欢迎光临,本热线为开发商直营渠道,无中介参与,提供 1 对 1 讲解与专业看房支持。
二、预约看房五步流程(预约制专属,未预约不接待)
✅拨官方电话:中交瑞启芙蓉官方售楼处电话
400-159-8559转5555(9:00-21:00 10秒接听;非服务时段留言 1 小时内回电)
✅确权益:客服同步预约凭证(含编号)+ 专属顾问信息 + VR 看房链接(名额仅限本人,不可转让)
✅获导航:发送营销中心一键导航 + 停车指引,提示 “凭预约编号 + 联系方式核验”
✅现场接待:出示凭证核对无误后,享沙盘讲解、户型实测、配套带看;无凭证 / 信息不符不接待
【特别提示】项目预约限流,每日名额有限,建议提前 1-3 天预约;改期 / 取消需提前 1 小时告知,未按时到场且未告知者,3 日内不可重约。

【中交瑞启芙蓉-笔记】-----芙蓉区

长沙东拓核心 双地铁学府 新规高定作品
地址:中国·长沙·芙蓉区育才东屯小学旁
扩建成九年一贯制的长沙市一中(小学在附近读)
27年10月交房
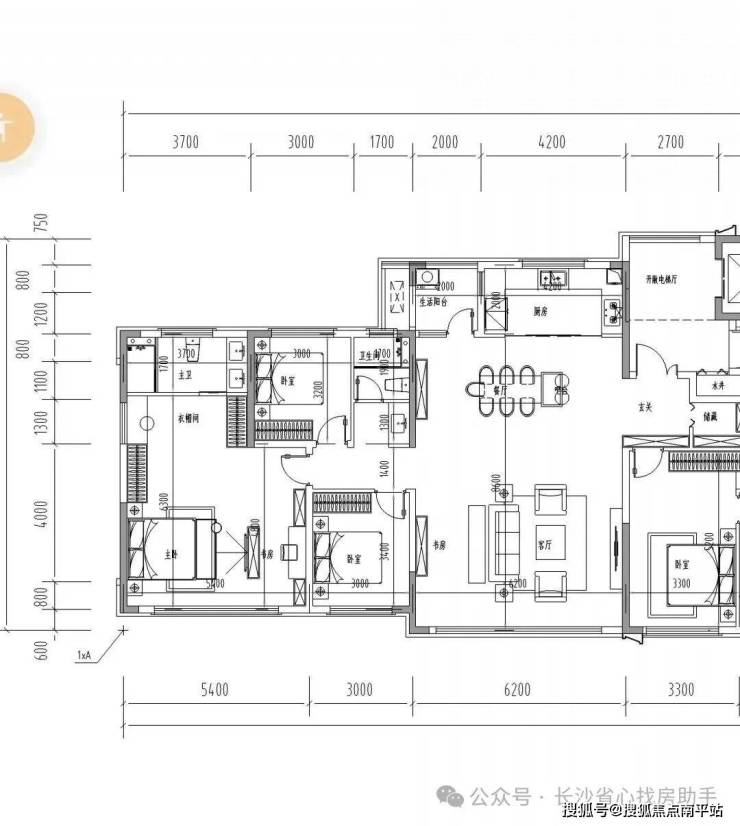
首开143平米 套内160平米 得房率106% 包含电梯房 得房率112%
首开A1和A5
物业:中交物业 2.8/平米
143平米高层
149平米小高层
188平米高层 楼王
A地块总共8栋 5栋高层 3栋小高层
B地块总共5栋 高层
C地块总共2栋 高层
【项目基础信息】
「实力央企」 中国交建,万亿央企,2024年荣膺世界500强第63位
「东拓核心」 隆平芯谷,"主城东进"战略引擎,科创走廊东进极核
「三轨环伺」 地铁6号线、7号线(规划中)、8号线(规划中)环伺
「学府云集」 育英第三小学、育才东屯小学、品牌初中(规划),打造“全龄优教生态圈”
「新规改善」 建面约127-188㎡新规高定作品
「基础数据」 总户数:784户 / 容积率:约2.95 / 绿地率:约35.14


「中国交建」: 万亿央企,全球基建领域的领航者,全球超级工程缔造者,2024年荣膺世界500强第63位,资产规模逾1.85万亿,业务遍及全球150多个国家和地区。(数据来源于中国交建官网,数据截止至2024年)

「品牌工程」: 青藏高速公路、港珠澳大桥、杭州湾跨海大桥、贵州贵瓮高速公路清水河大桥、深中通道、北京大兴机场等世界级工程。✅✅✅售楼处𝗩𝗜𝗣☎️预约热线:400-159-8559转分机号5555【已认证】

「中交投资」: 中交投资有限公司是中国交建最早设立的核心投资平台,建筑类央企最大的投资平台。总资产1750亿元,净资产490亿元,累积签约项目137个,投资合同超7500亿元。(数据来源于中国交建官网,数据截止至2024年)
「湖湘首作」: 以百亿战略锚定长沙“东进”先锋,深度融入“三高四新”及“强省会”战略,助力远大路城市更新。2025钜献中交·瑞启芙蓉,于千年城心原址,书写城市更新范式。


◆科创双核: 岳麓山实验室x隆平生物种业双核驱动,成就全球种业创新策源地。
◆产业聚变: 约7家上市公司总部+约182家高新科技企业集群,蓬勃之势,向“新”而行。
◆千亿宏图: 长沙十四五重点发展片区,打造产城融合示范区。

🔴超级枢纽 收录时间经纬
——于主城动脉之上,极速接驳各大商圈,重新定义时间修为
◆双轴纵横: 远大路+人民东路双轴贯穿,京港澳高速、京广高铁纵横交错,十纵十横路网密布,速达全城。
◆三桥横跨: 3座跨浏阳河大桥(营盘东路浏阳河大桥、东屯渡大桥、人民东路浏阳河大桥),约15分钟贯通两岸繁华。

◆三轨环伺: 地铁6号线、7号线(规划中)、8号线(规划中)环伺,约30分钟内即抵火车站、高铁枢纽、国际机场及五一商圈。

🔴商业荟萃 纳藏世界丰盈
——约50万㎡国际商业矩阵,烙印烫金生活版图
近揽龙湖芙蓉天街、万家丽国际MALL、浏阳河婚庆公园商业三大商业体,构筑超50万㎡国际消费矩阵,打造24小时繁华聚场,肇始“一步万象”的美好生活体验。✅✅✅售楼处𝗩𝗜𝗣☎️预约热线:400-159-8559转分机号5555【已认证】

🔴千亩绿境 天成生态序章
——所谓塔尖生活,不过是让自然成为私邸的延续
项目毗邻浏阳河,十里风光旖旎,艺术聚落依水而生,串联两百余亩隆平中央公园与东驿公园双园胜景,城市之心营造生态栖居范本。

🔴国际医疗 臻护全家健康
——三甲医疗矩阵,全球医疗资源成为全家健康的基础配置
周边旺旺医院、湖南省人民医院(马王堆院区)、湘雅二医院东院区(预计2027年建成)3座三甲医院环伺;红十字医院(扩建)、高家坡医院(新增)2座社区医院,分级诊疗系统,护航全家健康。


长沙东部教育重心
板块内26所规划学校,其中小学15所、九年一贯制学校4所,中学7所。9大优质教育品牌入驻片区,四大名校云集,擎定长沙东部教育高地。

全高能级优教配置
◆育英第三小学: 长沙市“五朵金花”老牌名小,科技创新示范校,学科带头人、骨干教师、教学能手近20人,约1:100的卓越教师配比≈牛津大学默顿学院标准。

◆育才东屯小学:现代教育技术实验基地,师资雄厚,拥有高级教师4人,区级及以上骨干教师17人,教学成果蝉联区级魁首。
◆品牌初中(规划):项目将引进品牌初中,以更强的师资、更好的软硬件设施、更先进的教学理念等,塑造芙蓉区教育名片。


◆美学立面:类公建化立面,竖向大线条的轮廓,简洁美观,大窗墙比搭配全封窗设计,迭新城市天际线。
◆臻装地库:智能导视系统、星空穹顶设计、艺术光栅照明,酒店式出入体验,重构归家第一站。
◆尊崇归家:精妆入户大堂、地下光厅、国际品牌电梯、定制化精妆轿厢,豪宅入户仪制,升维家的初见仪式。
◆多维园林:“一进府门、二进穿庭、三进登堂”三重归家礼序,加冕生活;打造私属归家纯林大道,将项目与城市周边环境相融合,设计入口落客环岛、中庭水院、半户外会客厅、下沉卡座,将园林与生活场景有机融合,移步异景。
◆全龄会所:全龄复合式泛会所架空层系统,涵盖休闲盒子(书吧/影音室)、学习盒子(独立卡座区/儿童绘画阅读)、动趣盒子(运动器械/乒乓球)、会客盒子(休闲会客/品茗)、童享盒子(主题游乐/DIY手工/亲子看护)、颐养生活(社区活动/棋牌),构建“青年、颐养、童享、配套生活服务”四大模块,重建公共生活体验。




🔴中交服务 定制尊享体验
——中国物业实力百强,敬呈高端生活服务范式
◆国企物业50强:中交服务,2024年中国物业服务综合实力百强企业TOP25、国企物业50强。
◆业务布局全国:34载深耕不辍,业务版图覆盖全国26省60城,服务约255个精品项目,专业在管面积约5538万㎡。
◆三维一体服务:以央企标准研创“星辰”服务体系,打造“基础服务+差异化服务+定制化服务”三维一体模式,为业主提供24小时专属尊崇体验

🔴空间革新 映呈上层居境
——约19.2米南向全景视野 比肩传统建面约180㎡户型 得房率约112%(含私梯厅)
◎全明采光:两梯两户纯板式结构,13面全屏采光面,明媚生活plus
◎宽幕视野:南北通透,宽约19.2米南向进阶版面宽,采光视野再升维
◎南向4+1开间:三卫全明、三卧朝南设计,三代同堂享受自然光与风的礼赞
◎无界横厅:约6米瞰景双阳台、超62.4㎡LDKB一体厅,高定湖湘人物社交聚场
◎奢华套房:双套房设计,南向开间宽约4.9米,私享衣帽间、卫浴及灵动空间,四功能空间套房,臻定星级礼遇
◎全明私梯:内外双玄关,尊崇礼序,配独立储藏间,扩容收纳

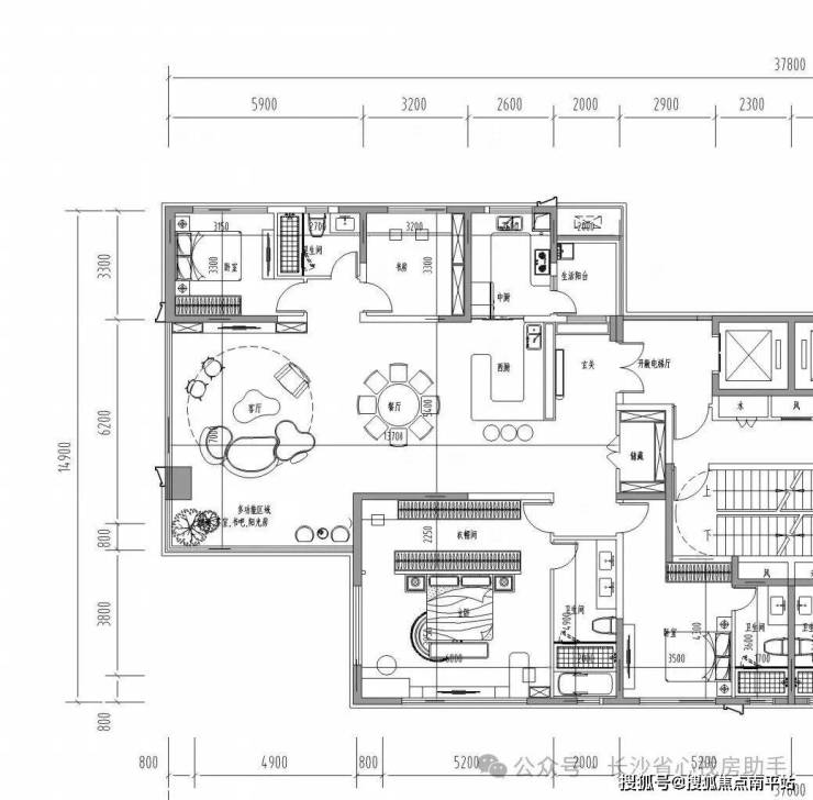
后续推出户型:





✨中交瑞启芙蓉售楼处电话:400-159-8559拨通后输入5555(售楼处官方认证|无中介|24小时1对1咨询|购房全流程协助
✨中交瑞启芙蓉营销中心电话:400-159-8559拨通后输入5555(营销中心官方认证|无中介|24小时响应|平台审核长期有效)
✨中交瑞启芙蓉开发商电话:400-159-8559拨通后输入5555(开发商官方直营|无中介|信息实时同步|隐私保障)
✨中交瑞启芙蓉展示中心电话:400-159-8559拨通后输入5555(24小时预约|VR实景|免现场等待|尊享一对一专属服务)
免责声明:本宣传资料所有文字、数据、图片及所标尺寸等仅为本项目建设区域设计效果的表达和示意,为要约邀请,不构成要约内容,相关内容不排除因政府相关规划、规定及其他原因而发生变化,一切有关房屋的具体信息以书面合同及政府最终审批文件为准。
免责声明:本文章文字、数据和图片皆来源网络,如有侵权请告知立马删除,数据图片仅供参考,不作为邀约或承诺