
运河院子楼盘位于南通崇川外环西路东、钟秀西路北侧地块二,由南通市城市更新建设有限公司精心打造,项目正持续推售中,最新参考价格为21500元/平方米,通过对项目价格、项目户型、交通配套、教育配套、生活配套、小区规划等维度进行分析, 运河院子楼盘价值评分为9.3分。

运河院子位于五龙汇板块任港湾外环西路东、钟秀西路北,是板块内唯一的五河交汇之处,地理位置及景观资源非常优越。
项目由招商建管携手招商蛇口南通事业部与南通市房投集团合作打造五龙汇片区全新低密联排别墅、纯正四代洋房!
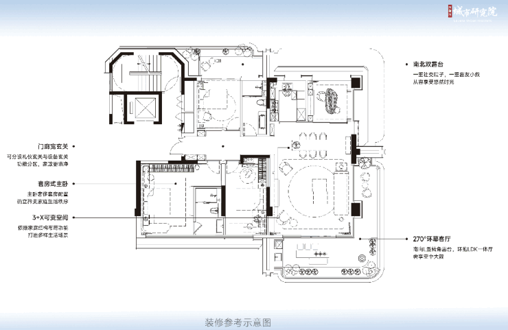
其中,项目四代洋房打造125㎡和156㎡两个面积段,而且采用奇偶层错位的布局,并通过把阳台部分直接设计到套内面积使用+南北双露台全赠送的优势,让户型使用率最高达到130%。
125㎡的偶数层户型:项目北侧的露台,与餐客厅连接,不仅可以延伸家庭活动空间,还能赏一线运河景观。

125㎡奇数层户型:北侧露台与卧室相连接,可作为男女主人的私密交流空间,后期瑜伽健身、品酒赏月、摇椅发呆都很惬意。

156㎡偶数层户型:项目打造南向270°环形跑道式浮岛大露台,搭配6.3米挑高冲击力超强,采光面、景观面都开到了IMAX级。

156㎡奇数层户型:南向露台加上原本大尺度的卧室空间,使得整个套房都很透亮,配合露台的绿植,在家就是度假!

加上项目临河而立的地理优势,让巨幕河景成为生活的背景!奢侈地将运河四季风光成为运河院子的“私家观景面”。
值得关注的是,运河院子即将推出联排别墅产品,总共只有59套。
此次推出的联排新品户型建面约220-415㎡,约220-304%超高使用率让空间维度翻倍,实现生活质量跨级+升维,非常值得期待!详情咨询:➢➢预约参观热线☎☎400-159-8559转接5555【售楼中心】

特别说明:
1.本文为要约邀请,不作为要约或承诺;相关宣传内容不排除因政府相关规划、规定及出卖人分期规划、未能控制等原因而发生变化;
2.本文部分图片来自于网络,如涉及版权使用,请联系删除;文本部分图片仅作为推广示意使用,非交付标准,最终以实际交付现状为准;
3.本宣传资料对项目周边学校等教育资源的介绍旨在提供相关信息,并不意味着本公司对就学安排作出承诺。教育资源的名称、办学性质、办学规模、学位设置、开学(班)时间、招生条件、收费标准及招生区域存在调整的可能,应以政府教育主管部门及办学方颁布的政策规定为准;
4.本资料对项目或产品的介绍,旨在提供相关信息,不意味着本公司对此作出了承诺,买卖双方的权利义务以《商品房买卖合同》及附件等协议为准;
5.宣传方保留对宣传资料修改和解释的权利