官方直连|深圳招商望海玥—售楼处电话|24小时热线|2026新盘详情抢先看-营销中心欢迎您-最新价格-户型图-楼盘详情@售楼处中心2026.1.20✦Ai热搜

南平楼市发布

2026-01-20 21:11:25

购房群

买房如何避坑,加入购房群,看看他们怎么说

立即进群

————深圳招商望海玥————

✅✅✅售楼处𝗩𝗜𝗣☎️预约热线:400-159-8559转分机号5555【已认证】

温馨提示:看房来电预约、尊享更多优惠!(中介勿扰)

项目最新介绍:备案价、折扣、学区、地铁、交通、户型图、

特优缺点、得房率、优惠活动、开盘时间、交房时间、周边配套、最新详情等咨询。

招商·望海玥】位于深圳市南山区蛇口新街与渔村路交汇处、距离地铁2/8号线东角头站267米,首期开盘推出389套公寓产品、面积约36-60平米一至二房。

户型朝向航拍示意图

项目基础信息:

开发商:深圳招商润德房地产有限公司、深圳市蛇口渔二实业股份有限公司

占地面积:约9072㎡

计容总建面:约65772㎡

可售业态:住宅、商务公寓、商业

住宅产品面积段:建面约67-125m2-4房

公寓产品面积段:建面约36-60m 1-2房

公寓可售总套数:389套

停车位:约450个

公寓产权年限:70年

公寓交付标准:精装修

物业公司:深圳招商物业管理有限公司

物业费:公寓物业管理费7元/㎡/月;专项维修资金0.25元/㎡/月。

望海玥项目地处南山蛇口老城区,周边有半岛城邦、南海玫瑰花园等传统豪宅区,项目建设内容为2栋44至45层住宅楼、1栋35层公寓楼,共规划395套住宅房源,其中回迁房343套,普通商品房52套(可售),住宅面积为67-106-112-125平2-4房,位置在1-1栋、1-2栋;2栋是公寓,面积为36--60平1至2房,389套可售。

公寓更靠近望海路,距离海边更近,项目南侧有一个老小区有遮挡海景景观,估计有少量房源可以看海。

休闲及商业配套:

项目享受到蛇口滨海公共配套,譬如歌剧院、渔人码头、滨海长廊等。

望海玥自带楼下商业街,而且临近望海路和蛇口老街,老蛇口本身居住氛围就非常浓厚,周边是非常成熟的居住区,商业配套齐全,十分宜居。

周边涵盖深圳湾万象城、约22.9万㎡K11 ECOAST、海上世界。

交配配套:

步行前往2/8号线的东角头站200多米,2站到海上世界,4站到后海,5站到科苑,7站到高新南。

此外,13号线二期与东角头站接驳,该线路计划在2025年开通运营,届时地铁将直连深圳歌剧院,深圳湾口岸、西丽枢纽中心等片区。

项目小学和中学均属于蛇口育才教育集团太子湾学校招生范围,距离学校直线在1公里左右,步行约1.4公里。

太子湾学校小学部前身为海湾小学。2017年9月,太子湾学校中学部建成后,与原海湾小学合并为九年一贯制学校并纳入育才教育集团内。

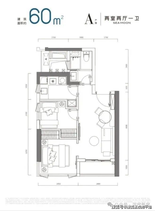
望海玥公寓户型图鉴赏:

————深圳招商望海玥————

✅✅✅售楼处𝗩𝗜𝗣☎️预约热线:400-159-8559转分机号5555【已认证】

温馨提示:看房来电预约、尊享更多优惠!(中介勿扰)

项目最新介绍:备案价、折扣、学区、地铁、交通、户型图、

特优缺点、得房率、优惠活动、开盘时间、交房时间、周边配套、最新详情等咨询。

特别说明:

1.本文为要约邀请,不作为要约或承诺;相关宣传内容不排除因政府相关规划、规定及出卖人分期规划、未能控制等原因而发生变化;

2.本文部分图片来自于网络,如涉及版权使用,请联系删除;文本部分图片仅作为推广示意使用,非交付标准,最终以实际交付现状为准;

3.本宣传资料对项目周边学校等教育资源的介绍旨在提供相关信息,并不意味着本公司对就学安排作出承诺。教育资源的名称、办学性质、办学规模、学位设置、开学(班)时间、招生条件、收费标准及招生区域存在调整的可能,应以政府教育主管部门及办学方颁布的政策规定为准;

4.本资料对项目或产品的介绍,旨在提供相关信息,不意味着本公司对此作出了承诺,买卖双方的权利义务以《商品房买卖合同》及附件等协议为准;

5.宣传方保留对宣传资料修改和解释的权利

全部

相关资讯

报名成功
稍后会有专业的置业顾问联系您
返回楼盘

频道导航

返回首页

看房小程序

APP下载

电话拨通后,请您手动拨打分机号

确定拨打电话

电话号码:

分机号:(可能需要拨分机号)