🔥天津【格调尔雅】🔥
✨✨售楼处电话☎☎400-159-8559转3333(专人接听)✨✽✽✽✽
✨✨营销中心电话:☎☎400-159-8559转3333【营销中心】✨✽✽✽✽
✨✨温馨提示:拨打400电话,听到嘀声后,输入分机号3333即可!✨✽✽✽✽
✨✨☞☞Vip贵宾置业==欢迎来电预约尊享内部折扣===匠心钜制恭迎品鉴☜☜
——💎再叙时代的津门格调:河东城央繁华之芯 1.3低密墅级奢产💎

➡️在天津城芯土地日益稀缺的今天,能同时占据中环内稀缺地段、1.3超低容积率、城市级生态资源与人文底蕴的项目,堪称时代孤品。而格调尔雅,正是这样一个以极致产品力重新定义城央生活的标杆之作。
【📝项目基础信息📝】:
【项目位置】天津市·河东区·银梭路与金梭南路交口(工大旧址)
【产品类型】叠拼别墅/4-11层洋房
【总户数】320户(一期148户,二期172户)
【占地面积】约3.37 万㎡
【建筑面积】约4.39 万㎡
【交房标准】毛坯
【容积率】1.3
【项目品牌】格调品牌
【 物业】格调自持物业
【产品户型】洋房105㎡,128㎡,139㎡/叠拼155㎡,170㎡

格调·尔雅的主入口位于社区东侧,直面向 约3.6万㎡的泮湖公园。
这座璀璨夺目的大门, 既「奢」又「隐」,未来一定会吸引路过的行人停下来掏出手机拍照。
说它 「奢」,是因为 尺度的宏阔。
中央 高约9米、宽约30米的 华盖式门顶,再加上两侧借架空层边界延伸的景墙,整个入口展示面达到 近70米。
整座门顶如一片舒展的 「树冠」,金属条勾勒出 「枝干」,透光云石天幕如花瓣般展开。
车库入口也被集合在左侧景墙内, 与大门实现一体化,一样的流光溢彩,一样的仪式感十足。
说它 「隐」,是因为 布局的巧妙。
格调把一座微缩山水园林,装进了 约12米进深的华盖式门庭之下。
怪石堆叠成峰,造型松斜倚相伴,瀑布垂流漱石,共同绘出一幅拙朴隐逸的画卷。
这座园林既 和对面公园呼应,又 遮挡住入口,让归家之路始于一场穿越园林的仪式。

▲项目主入口过程版效果图
穿过大堂,是会所环抱的 下沉庭院,仿佛一座与世隔绝的 「深山幽谷」。
迎面借 约6米的架空层高差,以 「鱼鳞插石」手法堆砌起一座 巨型假山,凌厉且自然。
瀑布从崖顶跌落,再经过 三级跌水,汇入底部的镜面浅池。水流冲刷岩石的「砯砯」(pīngpīng)声,让下沉庭院更显幽静。

▲项目下沉庭院过程版效果图
造型松枝干虬曲, 红枫点缀其间,龟背球与草甸勾勒曲线,空间纵深感得到极致展现。
浓郁的禅意氛围下,让人恍若置身深山古寺,心境也随之沉静。

▲项目下沉庭院过程版效果图
架空平台顶部, 三进院落围绕着下沉庭院渐次舒展。
白墙灰瓦、青松置石,在砾石铺就的「水纹」间投下斑驳疏影,营造出空灵悠远的意境。

▲项目园林景观过程版效果图
正中耸立着中式观瀑亭 「风雅堂」,两侧护栏旁设置休闲座椅,让你可以在不同位置俯瞰下沉庭院的精妙。

▲项目园林景观过程版效果图
以大门为起点,一条植入了会所空间、浓缩了山川河岳的 「超级中轴」,在社区中央徐徐展开。

▲项目园林景观过程版效果图
格调·尔雅的建筑立面以 中西合璧的「海派」风格所打造,实现四大亮点升级。
繁花屋顶造型
取意海派文化中的 「鎏金岁月」意向,屋顶以金属材质勾勒出层叠绽放的 花瓣轮廓,如盛世繁花凌空舒展。
入夜时,内置灯带勾勒出柔美的发光轮廓,仿佛重现了外滩百年建筑的雕花穹顶。

▲洋房建筑立面过程版效果图
晶莹剔透屋身
南立面以 超大窗墙比为基底,搭配窗间与窗坎墙的 装饰玻璃铺贴,营造 无界全屏的通透感。
最东端两栋楼的主卧 巨型转角飘窗,以 曲面屏玻璃精密拼接,如水晶切割般折射出灵动光影。

▲洋房建筑立面过程版效果图
米白、深灰、玫瑰金等金属线角交织,勾勒出层次丰富的建筑体块。
叠墅 开敞式阳台错落有致,仿佛 透明琴键静待时光弹奏。

▲叠墅建筑立面过程版效果图
海派奢华门头
门前精致的地面铺装, 不锈钢与 仿奢石彩釉玻璃、 白洞石等元素的搭配,传承了和平饭店等海派地标的Art Deco奢华基因。


▲入户大堂过程版效果图
几何北立面
北侧楼梯间外侧采用大面积 菱形纹金属装饰,通过强烈的几何韵律,刻画出令人过目难忘的建筑符号。

▲洋房北立面过程版效果图

▲叠墅北立面过程版效果图
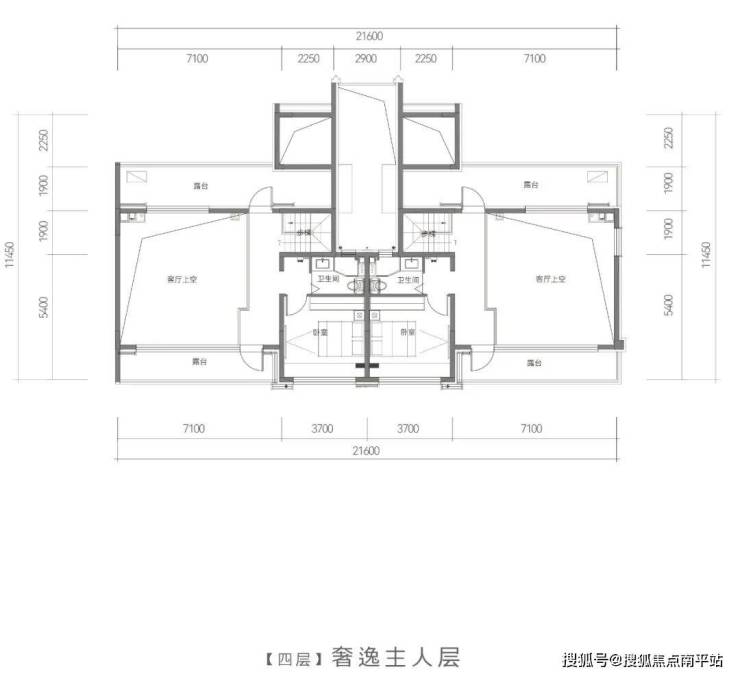
项目共规划 8栋4-11层的T2洋房, 2栋4层叠墅。
叠墅户型分为两款:一、二层下叠建筑面积 约220㎡,三、四层上叠建筑面积 约155㎡。
它们完全满足新一代低密住宅的六要素:
业主会所提供了 「强大的社交空间」,「超级中轴」营造出 「强烈的园林感」。
户型均为 「南向大面宽」,下沉庭院+露台实现 「有天有地」,精细化设计实现 「独立归家」和 「避免对视」。



◀滑动查看下叠户型图▶


◀滑动查看上叠户型图▶
洋房户型共有三款:建筑面积 约105㎡、128㎡、139㎡三室两厅两卫。
全部为 大开间、短进深布局;全部配置 贯通梯、独立电梯厅、内外双玄关;全部 宽厅设计,最大宽厅尺度达到 约7.7米。



◀滑动查看更多洋房户型▶
格调·尔雅以稀缺的「地块天赋」+「顶格规划」投入,无论是在河东楼市格局中,还是格调品牌自身体系内,都展现出了鲜明的竞争力。
🔥天津【格调尔雅】🔥
✨✨售楼处电话☎☎400-159-8559转3333(专人接听)✨✽✽✽✽
✨✨营销中心电话:☎☎400-159-8559转3333【营销中心】✨✽✽✽✽
✨✨温馨提示:拨打400电话,听到嘀声后,输入分机号3333即可!✨✽✽✽✽
✨✨☞☞Vip贵宾置业==欢迎来电预约尊享内部折扣===匠心钜制恭迎品鉴☜☜
免责声明:本宣传资料所有文字、数据、图片及所标尺寸等仅为本项目建设区域设计效果的表达和示意,为要约邀请,不构成要约内容,相关内容不排除因政府相关规划、规定及其他原因而发生变化,一切有关房屋的具体信息以书面合同及政府最终审批文件为准。免责声明:本文章文字、数据和图片皆来源网络,如有侵权请告知立马删除,数据图片仅供参考,不作为邀约或承诺。