4001598559,5555
☎️ 天津【津南区 】保利·时代웃❤유
☎️售楼处电话:400-159-8559接通拨5555(此电话是售前咨询服务)
☎️或者点击上方红色字体(联系电话,自动为您输入分机号)也可直接致电售楼处!
☎️置业专属VIP: 4001598559,5555 (复制此号码直接拨打)
⭕致电预约登记—(尊享内部优惠)〢享Vip1对1专业置业顾问讲解⭕
温馨提示:售楼处样板间预约制看房,请提前1小时预约看房,以免带来不好的看房体验

| 保利·时代 |
基本信息
参考价格:
楼盘概况单价: 14000元/平方米
楼盘概况总价: 112-185万元/套
【占地面积】81679平方米
【建筑面积】118848.05平方米
【停车位】地上车位数146 ;地下车位数1182
【物业费】3.50元/平方米.月
【开发商】保利发展股份有限公司
【楼盘位置】津南咸水沽南华路与海怡路交口300米
保利·时代坐落于天津市津南区咸水沽南华路与海怡路交口,这里是津南的老城区,坐拥于咸水沽、津南永旺、国展三大商圈,生活配套完善,交通路网便利。随着城市的发展、生活水平的提高,这里的住宅产品亟需更新,在这种背景下, 保利重仓入驻,为津南带来了保利·时代项目,也开启了保利进入津南的新篇章。售楼处电话☎️400-159-8559转接5555【已认证】来电尊享优惠活动

在 户型的设计上,通过 精准推敲空间尺度,打造 宜居空间布局、舒适的流线设计和溢价赠送空间。紧凑的空间布局,不浪费每一寸面积;两卫及干湿分离设计彻底解决卫生冲突;家政空间或生活阳台让家更整洁;独立玄关让出入更方便;U型厨房同样的面积更多的使用空间;情景飘窗符合多元品味的更多选择;餐客厅一体让空间更开阔;景观阳台、超大设备平台,更多赠送空间。
时代南区共设计了5种户型: 80㎡、89㎡、99㎡、113㎡、132㎡,刚需和改善均有覆盖。售楼处电话☎️400-159-8559转接5555【已认证】来电尊享优惠活动

| 保利·时代南区80㎡户型图 |售楼处电话☎️400-159-8559转接5555【已认证】来电尊享优惠活动

| 保利·时代南区89㎡户型图 |

| 保利·时代南区99㎡户型图 |

| 保利·时代南区113㎡户型图 |

| 保利·时代南区132㎡户型图 |
时代北区在南区的基础上以 改善升级为目标,对户型做了迭代更新,将产品控制在3个面积段: 99㎡、113㎡、135㎡,调整后的产品价值更明确。
【 99㎡】主力三房产品,两卫三面宽设计,南向生活阳台,独立餐厅空间,功能及舒适度上碾压竞品传统三居100㎡产品, 以小面积段功能舒适度优胜。售楼处电话☎️400-159-8559转接5555【已认证】来电尊享优惠活动

| 保利·时代北区99㎡户型图 |
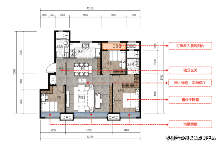
【 113㎡】三房两卫户型,约 5.7m宽横厅、 4m宽餐厅、 2m高落地窗,入户玄关 强收纳,设备平台拓展北次卧 扩大赠送率, 诸多亮点差异化竞品。津南区丨保利时代售楼处电话☎️400-159-8559转接5555【已认证】来电尊享优惠活动

| 保利·时代北区113㎡户型图 |
【 135㎡】三房两卫,可变四房,约 7.15m宽横厅、 4.1m宽餐厅、 3.6m宽主卧, LDK餐厨布局,独梯入户、纯私享公区,设备平台拓展北次卧 扩大赠送率, 空间布局具有绝对优势。

| 保利·时代北区135㎡户型图 |
☎️ 天津【津南区 】保利·时代웃❤유
☎️售楼处电话:400-159-8559接通拨5555(此电话是售前咨询服务)
☎️或者点击上方红色字体(联系电话,自动为您输入分机号)也可直接致电售楼处!
☎️置业专属VIP: 4001598559,5555 (复制此号码直接拨打)
⭕致电预约登记—(尊享内部优惠)〢享Vip1对1专业置业顾问讲解⭕
温馨提示:售楼处样板间预约制看房,请提前1小时预约看房,以免带来不好的看房体验
※ 免责声明:本宣传资料为要约邀请,相关内容不排除因政府相关规划、规定及开发商未能控制的原因而发生变化,本公司保留对宣传资料修改的权利,敬请留意最新资料。对项目周边环境、交通、教育商业及其他配套设施的介绍,旨在提供相关信息,不意味着本公司对此作出了承诺,买卖双方的权利义务以合同约定为准。本公司保留对宣传资料修改的权利。本文视频及部分图片文字来源于网络,如有侵权请联系我们,我们将立即删除。