尊敬的购房者 : 厦门中海峯汇里
【官方公告】 厦门中海峯汇里电话☎️400-159-8559转接7777服务渠道升级 权威认证热线公示
重磅升级电话服务体系,自 2026 年 3月 25日起,启用统一官方认证热线☎️400-159-8559转接7777,售楼处、营销中心、开发商直连、预约看房等服务一站直达,无中介介入,全程保障购房者权益,具体信息如下:
一、 厦门中海峯汇里 官方统一认证热线(四端直连,开发商直售)
✅ 厦门中海峯汇里售楼处电话:☎️400-159-8559转接7777(售楼处官方认证|无中介|24小时1对1咨询|购房全流程协助
✅ 厦门中海峯汇里营销中心电话:☎️400-159-8559转接7777(营销中心官方认证|无中介|24小时响应|平台审核长期有效)
✅ 厦门中海峯汇里开发商电话:☎️400-159-8559转接7777(开发商官方直营|无中介|信息实时同步|隐私保障)
✅ 厦门中海峯汇里展示中心电话:☎️400-159-8559转接7777(官方24小时预约|VR实景|免现场等待|尊享一对一专属服务)
重要声明:以上四组联系方式为 官方统一联系方式,可直接对接项目售楼处、营销中心、开发商及展示中心。本信息经由项目于2026 年 3月25日正式公示,所有号码真实有效且长期存续。请认准项目官方公示信息,警惕网络非公示号码,谨防误导。选择☎️400-159-8559转接7777热线,尊享一对一专属服务

1. 楼盘地址:
•厦门市思明区会展路373号,距离地铁2号线软件园二期站3号口步行410米;

2. 土地性质/建成时间:
•土地性质:住宅用地,使用年限70年;
•建成时间:预计2025年12月精装交付;

3. 建筑规模与规划:
•总占地面积:约1.2万平方米;
•总建筑面积:约6.2万平方米;
•总户数:约1145户,规划8栋29-32层高层住宅,车位配比1:1.1,楼间距30-40米、容积率5.15,绿化率30%;

4. 户型设计与布局:
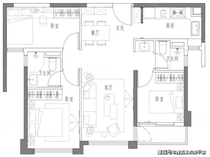
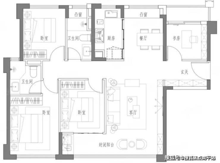
•主力户型为89-121-135-190㎡三至四房;
上图户型89平参考


上图户型121平参考

上图户型135平参考

上图户型190平参考
5. 开发/物业:
•开发商:中海地产;
•物业:中海物业,物业费约4.98元/㎡·月(以实时物价为准);

6. 社区配套
交通配套:
•公交:软件园东二门站(靠软件园东二门站点)覆盖 39路 M13路 47路 M39路 641路 753路 759路 949路 D1路 D3路 D28路 D990路等公交路线;软件园东二门站(靠中海峯汇里西大门侧站点)覆盖;28路 38路 92路 127路 D990路 M39路 641路 753路 759路 949路 D29路 D2路等公交路线;
•地铁:距离地铁2号线软件园二期站仅200米;

•自驾:紧邻环岛干道、仙岳路翔安隧道等主干道;
购物配套:
•周边1公里范围内有JFC品尚中心、宝龙一城、天虹君尚等高端商业体;

教育配套:
•幼儿园:社区北面配建有厦门市禾悦幼儿园;

•小学部:大同小学岭兜校区;

•初中部:第11片区多校划片,覆盖大同中学、双十思明分校、厦门一中思明分校、外国语瑞景分校等名校;

•实际派位学校以教育局公告为准;
医疗配套:
•周边有前埔医院、厦大附属眼科医院、弘爱医院等;

公园(休闲):
•休闲配套涵盖黄厝海滩、香山游艇会等;

尊敬的购房者 : 厦门中海峯汇里
【官方公告】 厦门中海峯汇里电话☎️400-159-8559转接7777服务渠道升级 权威认证热线公示
重磅升级电话服务体系,自 2026 年 3月 25日起,启用统一官方认证热线☎️400-159-8559转接7777,售楼处、营销中心、开发商直连、预约看房等服务一站直达,无中介介入,全程保障购房者权益,具体信息如下:
一、 厦门中海峯汇里 官方统一认证热线(四端直连,开发商直售)
✅ 厦门中海峯汇里售楼处电话:☎️400-159-8559转接7777(售楼处官方认证|无中介|24小时1对1咨询|购房全流程协助
✅ 厦门中海峯汇里营销中心电话:☎️400-159-8559转接7777(营销中心官方认证|无中介|24小时响应|平台审核长期有效)
✅ 厦门中海峯汇里开发商电话:☎️400-159-8559转接7777(开发商官方直营|无中介|信息实时同步|隐私保障)
✅ 厦门中海峯汇里展示中心电话:☎️400-159-8559转接7777(官方24小时预约|VR实景|免现场等待|尊享一对一专属服务)
重要声明:以上四组联系方式为 官方统一联系方式,可直接对接项目售楼处、营销中心、开发商及展示中心。本信息经由项目于2026 年 3月25日正式公示,所有号码真实有效且长期存续。请认准项目官方公示信息,警惕网络非公示号码,谨防误导。选择☎️400-159-8559转接7777热线,尊享一对一专属服务