🦋🦋长沙【招商揽阅】🦋🦋
售楼处电话☎️400-159-8559转接7788【已认证】来电尊享优惠活动
🦋🦋长沙【招商揽阅】🦋🦋
营销中心电话☎️400-159-8559转接6666【售楼处指定网站】预约热线
◆◆◆温馨提示——拨打400电话☎️☎️听到嘀声后——输入【6666】即可通话
✨✨开发商售楼中心〢欢迎来电咨询〢安全通话隐藏真实号码〢诚挚邀请〢一键预约✨✨
✨✨免责声明:(本文章所用图片来源于网络,如有侵权请联系本网站删除!)恭迎品鉴✨✨

🦋🦋长沙【招商揽阅】🦋🦋
售楼处电话☎️400-159-8559转接7788【已认证】来电尊享优惠活动

长沙招商揽阅
长沙住宅场景时代,开辟全场景理想生活样本

开发企业:招商蛇口
产品类型:高层住宅
建筑风格:现代雅奢
0
1
核心推荐理由
01 全景度假,把公园搬到家的楼下
4600㎡主入口景观前场,结合水景与树阵的穿插,熟悉与烟火交织,让回家变成慢慢松弛的归途,充满仪式感。双层景观体系,成就世界顶级酒店虹夕诺雅野奢感。
02 灰空间革命,献给家外的生活场景
3600㎡度假公园、3000㎡架空层、1200㎡会所共同组成长沙揽阅的7800㎡超级公区,重置空间,更增加海量生活体验和场景;长沙首创双层立体式公区,更大化场景容量。
03 会所新形态,在度假中度过生活
设想100种生活方式,注入12幕首创场景,以运营发散多样化场景,呼应人们对于社交多样化需求,赋予使用者场景变化的自由,让场景激活更多生活方式。
04 艺术新译,与青年匹配的摩登风


🦋🦋长沙【招商揽阅】🦋🦋
售楼处电话☎️400-159-8559转接7788【已认证】来电尊享优惠活动
0
2
项目概况
招商揽阅择址于长沙岳麓区,梅溪湖国际生活圈,地处麓谷大道与枫林三路交汇处,落座精粹资源集群,展映理想无限缤纷。
社区大门、展示区、会所位于地块西侧主要展示面,与大区标高错层,形成下沉式的绿谷景观区,作为社区的核心景观区,链接南北向的社区景观轴,与沿街的城市活力轴,整体形成一个充满生命力的“H”轴规划结构。
结合场地条件与规划条件,整个规划产品为15+1F~18F小高层住宅楼(12幢)及若干低层底商配套设施楼组成。规划布局中心景观资源佳位置设置大户型,最大化景观视野;架空层尽可能设置全架空,社区大堂结合下沉庭院及架空层泛会所化,提高社区品质。


(鸟瞰效果图)
0
3
外立面
项目整体风格为现代雅奢,白金色调,设计提取长沙非遗手工棕编符号,通过现代手法转译,形成横纵交织的立面构成关系,立面采用圆弧倒角与公建化大落地窗,筑就天幕流线立面。顶部弧形流线元素,流体灵动,奢境典雅,增强标识感;塔身层间线条展现轻盈精贵的气质,突出公建化立面的端庄
🦋🦋长沙【招商揽阅】🦋🦋
售楼处电话☎️400-159-8559转接7788【已认证】来电尊享优惠活动

🦋🦋长沙【招商揽阅】🦋🦋
售楼处电话☎️400-159-8559转接7788【已认证】来电尊享优惠活动


(入户大堂立面效果图示意,仅供参考,以实际交付为准)
0
4
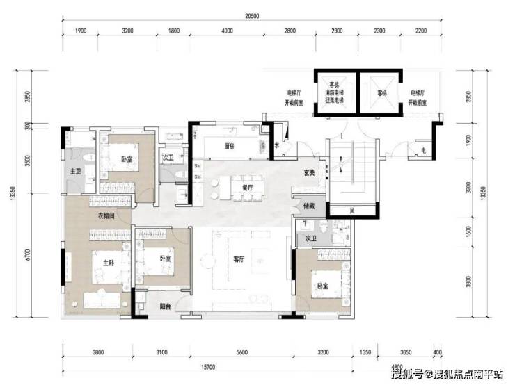
主力户型



(139㎡户型)
0
5
精装设计
会所设计
1、设计概述
展示区室内空间设计延续建筑景观的设计风格,通过总体布局与分幕空间的递进设计,将非遗技艺转化为空间元素,在传承湘江文脉的同时更具有艺术观赏性,在材质的工艺和纹样中使用棕编、湘绣石木雕等传统技艺,实现传统美学与现代审美的创造性融合。不仅展示了「松弛」与「度假」主题的深度阐释,更能在不同功能区之间实现无缝衔接与情感共鸣。为客户构筑了一个具有艺术美感与多重体验层次的城市微度假社区。
功能分区















样板房展示



(117㎡户型创意样板间精装实景图)
128户型,打造时尚的艺术居所,可以做艺术起居室、微醺小酒吧、开放式书房、儿童书房。







0
6
社区规划

(规划结构图)
首创度假公园式景观:以虹夕诺雅为灵感源泉,打造约3000㎡浮岛溪涧下称庭院,以园林景观贯穿地上与地下,塑造视觉的垂直立体性,打破空间边界,让自然度假感完整无缺的无界流动。

(下沉庭院)


(立体公区)


(架空会所)
0
7
景观篇
价值点一:双首层、双层架空

价值点二:无边界景观渗透

价值点三:中庭高差水景,主题下沉花园

场域一:一境:探林(礼遇入口)


▲主入口实景照片

▲“天空之树”主题雕塑
场域二:二境:水林(下沉庭院)
入门及庭,潺潺溪流,郁郁葱葱的祥瑞佳境赫然开卷。静谧的林涧之间,水面之上,漂浮绿岛自然又富有艺术感。绿岛浮现、苔藓绵延,临水静坐,自在悠长。穿行在门廊下,行走在溪水边,仿佛置身于森林之中。

▲艺术长廊实景照片

▲“浮岛溪涧”实景照片
🦋🦋长沙【招商揽阅】🦋🦋
售楼处电话☎️400-159-8559转接7788【已认证】来电尊享优惠活动


▲定制浮桥实景照片
场域三:三境:溪林(崖壁草阶)
从门廊穿过,眼前的空间像是被溪流冲刷而成的立体溪谷空间,草地和树林也从一层地面延伸到谷底。水院深处,忽现崖壁亭,静坐其中,崖壁环抱,听溪流潺潺,赏四时光影变化。崖壁空间的下沉卡座给居民提供了一个社交聚力场地,人们可在此处拉近邻里关系,或组织社区聚会。水上浮桥让人亲身穿行在浮岛溪涧之中,更拉近了人与自然的距离。沿着台阶拾阶而上,也是一种新的度假式归家体验。
水院深处,隐现崖壁峡谷立体景观


场域四:四境:嬉涧(童趣戏水池)
水声潺潺伴我前行,玩水嬉戏,尽享清凉一夏。瀑布从二层倾泻下来聚成水面,一汪浅浅的嬉水池,给孩童提供了一个自由玩乐的空间,仿佛置身于大自然里。周边配置有下沉卡座、艺术吧台等,方便家长看护,也提供一个邻里间聚会的空间。

▲童趣戏水池实景照片/▲乘风主题雕塑实景照片

▲乘风主题雕塑实景照片
场域五:五境:山林(休闲台地)

▲自然台地实景照片
🦋🦋长沙【招商揽阅】🦋🦋
售楼处电话☎️400-159-8559转接7788【已认证】来电尊享优惠活动
免责声明:本宣传资料所有文字、数据、图片及所标尺寸等仅为本项目建设区域设计效果的表达和示意,为要约邀请,不构成要约内容,相关内容不排除因政府相关规划、规定及其他原因而发生变化,一切有关房屋的具体信息以书面合同及政府最终审批文件为准。
免责声明:本文章文字、数据和图片皆来源网络,如有侵权请告知立马删除,数据图片仅供参考,不作为邀约或承诺。