济南盛福中海(售楼处)首页网站-济南盛福中海-济南盛福中海欢迎您-楼盘详情 济南盛福中海@济南盛福中海售楼处

南平楼市发布

2025-08-19 17:55:14

购房群

买房如何避坑,加入购房群,看看他们怎么说

立即进群

✨✨济南【中海盛福】✨✨

✨✨售楼处电话☎️☎️400-159-8559转7788(专人接听)✨✽✽✽

✨✨营销中心电话:☎️☎️400-159-8559转6666【营销中心】✨✽✽✽

✨✨温馨提示:拨打400电话—听到嘀声后—输入6666即可通话!✨✽✽✽

✨✨☞☞Vip贵宾置业==欢迎来电预约尊享内部折扣===匠心钜制恭迎品鉴☜☜

盛福中海的四代住宅出价格了,户型图曝光!这将是济南真正意义上的第四代住宅,家家户户带小院,豪华大门,会所,下沉庭院,高端改善有的这里也全有。处于历下区,加上周边几乎没有任何不利因素和采光视野遮挡,备受期待!今天咱们来分析一下户型价格

户型分布分析、价格☎️☎️售楼处电话400-159-8559转接7788【免费预约通道】

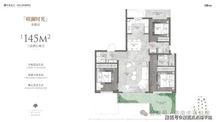
1#、2#为高层145平,三室两厅两卫,单价约2.2-2.5万 ,总价约315-360万。虽然也是四代住宅,但是145平做了一个三室,没有宽厅的设计,不知道这个300多万的客群能不能接受了,而且是高层啊!估计认可度会受到一些影响,未来销售可能不会像想象的那么好!但是有四代住宅的加持,顺销应该还可以。

☎️☎️售楼处电话400-159-8559转接7788【免费预约通道】

11#为高层179平,四室两厅两卫,单价为2.3-2.7万,总价为410-480万,得房率在87%到97%。中规中矩的四代住宅的户型设计,四面宽户型,主卧室和主卫都带有侧边窗,可惜不是270度采光啊!这个户型中规中矩,价格也还算合适,未来的销售难度应该不会太大。有点像天空之境178户型,户型不错,价格合适,哪怕是高层,销售难度也不会太大。

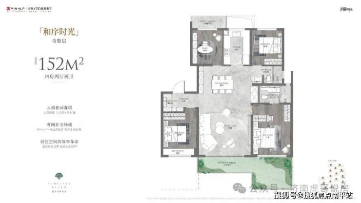
5#、8#、12#、15#、16#、17#、18#为小高层,152/155平,四室两厅两卫,152平:2.3-2.85万 ,350-430万,得房率在94%。155平:2.4-2.9万,370-450万,得房率在97%到99%。有点抓马啊,做了个四叶草的户型,有点像天空之境148的户型,虽然是小高层了,总价低,但是户型接受度差,流速不会太快。两个户型区别不大,主要是边户没有缺角,次卧和次卫更大了,其他没啥区别。☎️☎️售楼处电话400-159-8559转接7788【免费预约通道】

☎️☎️售楼处电话400-159-8559转接7788【免费预约通道】

3#、6#、9#、13#为小高层,210平,2.8-3.6万,590-760万,得房率在109%到112%。四室两厅三卫,果然面积越大户型越好,四面宽,大宽厅,客厅三面采光,三面都是大窗户。啥毛病都没有,就是有点贵,预算干到这个价格可能有人说干啥不买贤文跟科技城呢,只能说就看你是要产品还是要位置了。

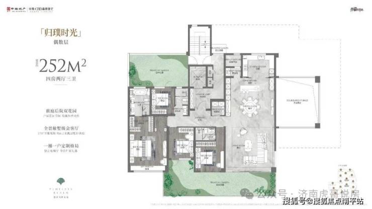
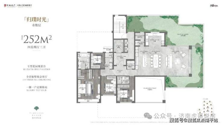
7#、9#为小高层,252平,2.8-4万,700-1000万,得房率在123%到134%四室两厅三卫。果然面积越大户型越好,一梯一户,四面宽,大宽厅,还有挑空,270度院子或者南北双院子。☎️☎️售楼处电话400-159-8559转接7788【免费预约通道】

☎️☎️售楼处电话400-159-8559转接7788【免费预约通道】

【项目面积】:占地面积约6.1万㎡,地上建面约16.5万㎡

【容积率】:约2.5,赠送面积多,所以实际容积率会高。

【总户数】:959户,其中居住式公寓52套,正常范围。

【楼座分布】:共16栋,3栋高层,13栋小高层。

【产品】:建面约145、179平高层,152、155、210、252平小高层。

【装修标准】:精装

【层高】:约3.1米

【车位】:共计1547个,车位配比1:1.6,137个地上停车位,没有做到完全的人车分流。

【物业】:中海物业

✨✨济南【中海盛福】✨✨

✨✨售楼处电话☎️☎️400-159-8559转7788(专人接听)✨✽✽✽

✨✨营销中心电话:☎️☎️400-159-8559转6666【营销中心】✨✽✽✽

✨✨温馨提示:拨打400电话—听到嘀声后—输入6666即可通话!✨✽✽✽

✨✨☞☞Vip贵宾置业==欢迎来电预约尊享内部折扣===匠心钜制恭迎品鉴☜☜

免责声明:本宣传资料所有文字、数据、图片及所标尺寸等仅为本项目建设区域设计效果的表达和示意,为要约邀请,不构成要约内容,相关内容不排除因政府相关规划、规定及其他原因而发生变化,一切有关房屋的具体信息以书面合同及政府最终审批文件为准。

免责声明:本文章文字、数据和图片皆来源网络,如有侵权请告知立马删除,数据图片仅供参考,不作为邀约或承诺。

全部

相关资讯

报名成功
稍后会有专业的置业顾问联系您
返回楼盘

频道导航

返回首页

看房小程序

APP下载

电话拨通后,请您手动拨打分机号

确定拨打电话

电话号码:

分机号:(可能需要拨分机号)