📳📳╭☞VIP火热登记,恭迎莅临品鉴:400-159-8559转接8666【售楼中心】
📳📳致电售楼处了解更多信息,安全通话隐藏真实号码,请放心使用
📳📳温馨提示:网上售楼中心〢预约可享内部优惠〢欢迎来电恭迎品鉴〢

锦和玉鸣府,由绿城+越秀集团联合打造,总占地面积约1.9万㎡,计容建筑面积约5.97万㎡,容积率3.1, 共由5栋16-25层高住宅组成,其中1/2/3栋住宅25F,5栋住宅24F,6栋住宅16F,4栋是1所9班制幼儿园,配建有1500平商业。
总规划462户,全部都是商品房,2/3栋是2梯3户,1栋2梯5户,5/6栋2梯6户设计,规划停车位530个,车位占比约1:1.15。

楼盘基础信息
1、开发商:绿城华南投资发展有限公司(越秀+绿城集团)
2、物业公司:越秀物业
3、物业管理费:待定
4、总占地面积:1.9万/㎡
5、总建筑面积:5.97万/㎡
6、容积率:3.1
7、绿化率:40%
8、产权年限:2025年8月-2095年8月(70年)
9、总户数:462户
10、总栋数及楼高:5栋,16-25层
11、梯户比:2梯3户/2梯5户/2梯6户
12、车位数:530个车位
13、车位占比:约1:1.15
14、交楼时间:2027年11月15日
15、交楼标准: 精装
📳📳╭☞VIP火热登记,恭迎莅临品鉴:400-159-8559转接8666【售楼中心】



项目地处沙井新桥板块商务中心、中央居住区,深圳西部新中心,三公里荟萃教育、商业、医疗、公建等全维城市资源,尽享时尚、便捷的繁华生活。📳📳╭☞VIP火热登记,恭迎莅临品鉴:400-159-8559转接8666【售楼中心】

从城市规划角度看, 锦和玉鸣府处于"西部中心CBD"核心辐射带,是集产、城、人于一体有机融合的西部城市中心。项目所在的西部中心CBD总面积超11平方公里,由6.35平方公里的西部中心中央商务区、1.6平方公里的新桥智创城和3.29平方公里的新桥中心区组成,定位为"国际一流"商务区。

平面图及户型图

89㎡的3房2厅2卫,6栋01/04户型,设计的是经典竖厅格局,客厅3.5米开间,LDKB一体化,S墙设计预留冰箱卡槽位,三开间朝南,动静分区,主卧+次卧270°无柱转角飘窗,卫生间干湿分离, 得房率约97.47%(包含赠送),客厅连接次卧出大阳台约11.46平,西南或东南朝向。
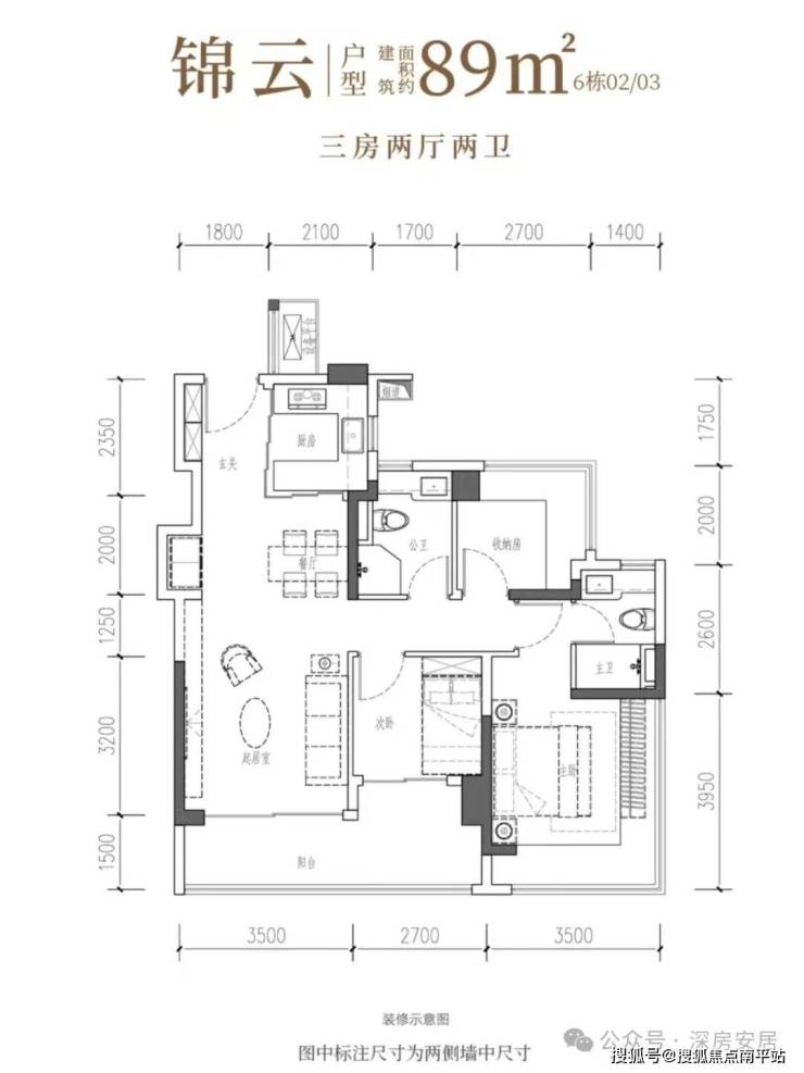
89㎡的3房2厅2卫,6栋02/03户型,设计的是经典竖厅格局,客厅3.5米开间,LDKB一体化,S墙设计预留冰箱卡槽位,三开间朝南,动静分区,主卧+次卧270°无柱转角飘窗,卫生间干湿分离, 得房率约97.47%(包含赠送),客厅连接次卧出大阳台约11.46平,西南或东南朝向。
104㎡的4房2厅2卫,设计的是竖厅格局,客厅4.15米开间,LDKB一体化设计,预留冰箱卡槽位,四开间朝南,动静分区,主卧270°无柱转角飘窗还带1个设备平台约1.52平,卫生间干湿分离, 得房率约100.71%(包含赠送),客厅连接次卧出大阳台约11.23平,西南朝向。
106㎡的4房2厅2卫,设计的是竖厅格局,客厅3.7米开间,LDKB一体化,S墙设计预留冰箱卡槽位,四开间朝南,动静分区,主卧270°无柱转角飘窗还带1个设备平台约1.52平,卫生间干湿分离, 得房率约101.16%(包含赠送),客厅连接次卧出大阳台约11.76平,东南朝向。




107㎡的4房2厅2卫,设计的是竖厅双龙抱珠格局,客厅3.7米开间,LDKB一体化设计,预留冰箱卡槽位,四开间朝南,主卧+2个次卧270°无柱转角飘窗,卫生间干湿分离, 得房率约104.06%(包含赠送),客厅连接次卧出超大阳台约11.76平,东北朝向。
127㎡的4房2厅2卫,设计的是竖厅南北通透格局,进门独立玄关,客厅5.1米开间,客餐厅分离化设计,主卧270°无柱转角飘窗+衣帽间,卫生间干湿分离, 得房率约98.97%(包含赠送),客厅连接次卧出超大阳台约14.09平,西南或东南朝向。
130㎡的4房2厅2卫,设计的是竖厅南北通透格局,进门独立玄关,客厅5.1米开间,客餐厅分离化设计,主卧270°无柱转角飘窗+衣帽间,卫生间干湿分离, 得房率约101.95%(包含赠送),客厅连接次卧出超大阳台约14.09平,东北朝向。



项目周边配套
『深圳头部名校 家门口的优质教育』
优质教育:深圳“双区建设”与宝安“三城”建设大力推动教育高质量发展的时代浪潮下,深圳外国语学校宝安学校(集团)于2023年应运而生。
• 深外宝(集团)由中心校区(已投入使用)、臻善校区(已投入使用)、万丰小学(已投入使用)、淬真校区(在建)、致美校区(在建)五大校区组成
• 根据2025年学区划分,本案位于中心校区、臻善校区、万丰小学共享学区范围内
(信息来源:【宝安教育】【深圳外国语宝安学校】
(最终学区划分、入学条件、招生计划等均以教育主管部门颁布的政策和学校的通知为准)

近120万方商业集群,下楼就购了』
约3公里汇聚百佳华佳漾汇(约12万㎡)、海岸城(约20万㎡)、新沙天虹(约10万㎡)、京基百纳、山姆(年底开业)、湾区壹方(约50万㎡,在建)、西荟城等;周边商业综合体累计近120万㎡。

🏥『双三甲医院 优质医疗护航护航』
• 约1公里西部最大三甲医院“深圳人民医院宝安分院”(在建)
• 约2.8公里三甲医院“深圳中西医结合医院”(已投入使用)

『中西交融 运动、休闲两不误』
步履如织的璀璨之地,流淌着这座城市最澎湃的潮流与脉搏。项目毗邻深圳最大罗马主题市场休闲广场“新桥市民广场”、深圳西部最大综合体育场馆“新桥体育馆”,近享深圳四大古墟之一“清平古墟”、深圳历史文化遗迹“沙井古墟”,宝安人才林公园、凤凰山森林公园环绕。

📳📳╭☞VIP火热登记,恭迎莅临品鉴:400-159-8559转接8666【售楼中心】
📳📳致电售楼处了解更多信息,安全通话隐藏真实号码,请放心使用
📳📳温馨提示:网上售楼中心〢预约可享内部优惠〢欢迎来电恭迎品鉴〢
免责声明:本宣传资料所有文字、数据、图片及所标尺寸等仅为本项目建设区域设计效果的表达和示意,为要约邀请,不构成要约内容,相关内容不排除因政府相关规划、规定及其他原因而发生变化,一切有关房屋的具体信息以书面合同及政府最终审批文件为准。免责声明:本文章文字、数据和图片皆来源网络,如有侵权请告知立马删除,数据图片仅供参考,不作为邀约或承诺。