绿城金泓·文澜樾华 居然能同时具备三大顶级要素——学区超一流、地段超一流、产品超一流。

项目绝对稀缺,仅287席。文澜樾华绝对是长沙豪宅市场独树一帜的保值及增值的资产。不同于市场各类豪宅产品,乃至一线江景产品都无法与其抗衡。因为学区是可以流通的,12年的顶级教育加周边隐贵的圈层,它的价值及未来二手价格是没有上限。
项目效果图,仅供参考
在过去,长沙的顶级学区房,都不谈品质。很多家长为了孩子的教育,只能委屈自己的居住体验,鱼和熊掌难以兼得。
而绿城金泓·文澜樾华的出现,可以说是新一代顶级学区房的扛大旗者。
因为TA不仅学区硬核、地段出色、产品同样也是顶配——三个维度全部拉满,360度没有短板。
项目效果图,仅供参考
区位方面,项目位于五一大道与迎宾路交汇处,这个坐标,相信长沙人都懂他的含金量。
这里不仅是地理中芯,更是城市政务中心。过去十年,这里的土地几乎都贡献给了写字楼和商场,住宅项目极度稀缺。
以项目为原点,一公里半径内,长沙最精华的资源尽在脚下:
IFS、五一广场、芙蓉广场等城市坐标举步即达;推窗可见湘江、橘子洲、岳麓山等,别人专程打卡的城市地标,不过是你的窗前日常。
楼下就是地铁2/6号线地铁口(迎宾路口站)。2号线贯通城市百年繁华中轴,6号线串联机场、三大湘雅、高新区。地标、繁华、安心、效率,一切皆以这里为圆心。这才是真正的城市中心,而你,就站在中心之上。
项目产品主推建面约128-143-170-226㎡四大户型,全系户型均设计独立玄关、LDKBG一体化布局等,享一梯一户,大户型奢配独立电梯厅,产品得房率最高约120%!
其中建面约128㎡做到了四房两厅两卫,一步进阶超一类学区圈层。四开间朝南,约16米超阔巨幕开间,带行政主卧套房。
建面约128㎡户型图,仅供参考
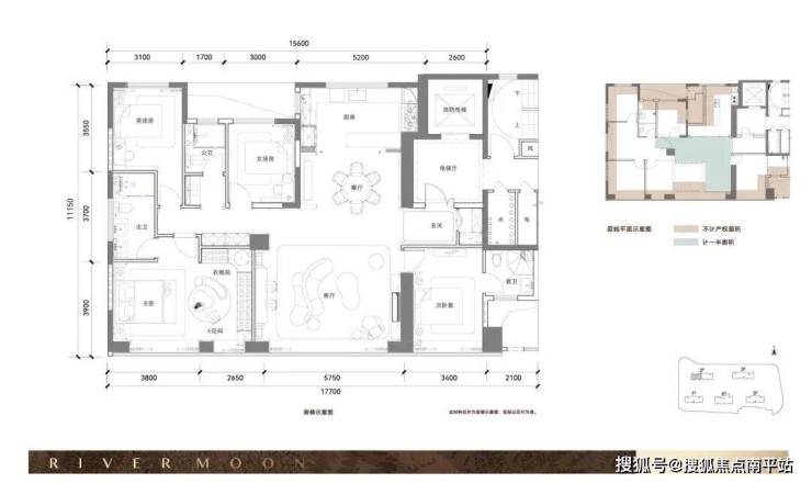
建面约143㎡享有约17.7米超阔南向大面宽,奢配南向双套房设计,约30平星级主卧自带衣帽间、X空间和卫生间,舒适度拉满。
建面约143㎡户型图,仅供参考
建面约170㎡户型5+1墅级格局,享有近20米IMAX级总面宽,四开间朝南,大主卧套房配大尺度衣帽间和卫生间,尺度感爆棚!
建面约170㎡户型图,仅供参考
更顶的是建面约226㎡的户型六房两厅四卫复式跃墅,以复式格局实现动静分区,奢配独立电梯厅。

建面约226㎡户型图,仅供参考
就拿143㎡这个户型来说,通过搭板改造,还能再增加12个平方的室内空间,含电梯厅的使用率直接突破121%。你想想,在五一正芯这种寸土寸金的地方,多出12个平方是什么概念?按现在的房价算,差不多小三十万直接省下来了,全是业主实打实赚到的。这种设计,才是真正的性价比!
总的来说,四大名校顶级学区+不可复制的市中心绝版地段+绿城TOP系产品设计首进长沙+287席的稀缺性!
免责声明:本宣传资料所有文字、数据、图片及所标尺寸等仅为本项目建设区域设计效果的表达和示意,为要约邀请,不构成要约内容,相关内容不排除因政府相关规划、规定及其他原因而发生变化,一切有关房屋的具体信息以书面合同及政府最终审批文件为准。免责声明:本文章文字、数据和图片皆来源网络,如有侵权请告知立马删除,数据图片仅供参考,不作为邀约或承诺。