🏡☎三亚新豪天地:400 159 8559转接4444(售楼处)
✅☎在售户型面积丨最新销售公告!
🟡☎置业专属VIP:400-159-8559接通后输入分机号4444
三亚市区均价18500元/㎡
70年不动产权,不限购!

施工单位:龙元建设集团股份有限公司;
建设单位:三亚市吉阳区榕根社区居委会;
占地面积:40000㎡;
绿化率:40%;
容积率:2.2;
车位数:地上131个,地下723个;
楼层高:23层;
交房时间:2021年6月。
本案坐落于榆亚路与榆红北路交汇处

项目效果图



项目配套
内部配套:商业广场,泳池活动区,迎宾水景特色水景墙,儿童活动广场,休闲广场等;
项目交通:毗邻红沙隧道、亚龙湾隧道与三亚老城区、亚龙湾无缝接轨;环岛高速亚龙湾入口近在咫尺,畅达亚龙湾旅游度假区、国家海岸海棠湾、三亚国际免税城、海棠湾301医院等;
距离亚龙湾高铁站约7公里;
距离三亚高铁站约15公里;
距离三亚凤凰机场约25公里;
周边医疗资源:榆林海军医院、三亚市儿童康复中心;
教育资源:三亚市重点中学鲁迅中学、八一中学;
商业资源:大东海国际购物中心、香港广场、夏日百货广场、鸿港新贸城、奥特莱斯、八爪鱼海鲜广场等;
项目总平图

项目户型图
1#号楼A1户型61.86㎡(两房两厅一卫)

1#号楼C户型86.91㎡(两房两厅两卫)

1#号楼D户型111.55㎡(三房两厅两卫)

2#号楼B1户型118.29㎡(三房两厅两卫)

2#号楼B2户型82.60㎡(三房两厅一卫)

2#号楼B3户型97.93㎡(三房两厅一卫)

3#、4#号楼A1户型129.63㎡(四房两厅两卫)

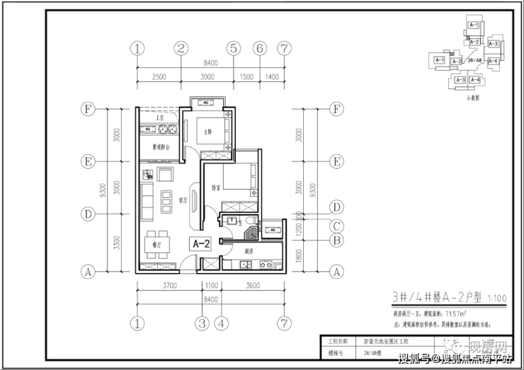
3#、4#号楼A2户型71.57㎡(两房两厅一卫)

3#、4#号楼A3户型114.66㎡(三房两厅两卫)

3#、4#号楼A4户型90.38㎡(三房两厅一卫)

5#号楼D1户型116.17㎡(三房两厅两卫)

5#号楼D2户型59.53㎡(一房两厅一卫)

🏡☎三亚新豪天地:400 159 8559转接4444(售楼处)
✅☎在售户型面积丨最新销售公告!
🟡☎置业专属VIP:400-159-8559接通后输入分机号4444