近日,雨花区教育红盘“中建翡翠天序”二期户型图曝光!
一共7种户型,分别是100-105-115-129-138-167-187㎡,其中刚需房源多达614套,总占比接近9成!




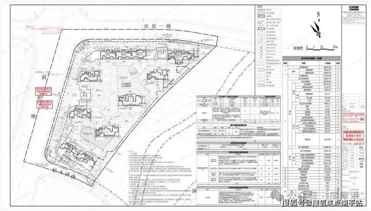
根据此前发布的公示内容,项目二期总占地约3.46万㎡,总建面约11.8万㎡,综合容积率约3.5,合计总户数704户,车位713个。
共规划8栋住宅,层数均在30-33层之间,新规“0公摊”户型,得房率在105-111%之间。
外观方面,二期整体风格延续一期现代简约风,古铜色的线条搭配深色外立面,屋顶造型或略有区别,以此来作区分。

二期坐落于圭塘河西岸,与一期隔河对望,距离地铁7号线(在建)红星大市场站更近,约600米,出行更方便。
中建翡翠天序由实力国企中建信和倾力打造,占位雨花区城市更新红星板块,紧邻湘府路高架和韶山南路,周边德思勤城市广场、步步高星城天地、湖南省植物园都离得不远。
项目已确定“砂子塘天华小学+麓山天华实验中学”双名校配套,业主子女可凭购房合同直接入读。
免责声明:本宣传资料所有文字、数据、图片及所标尺寸等仅为本项目建设区域设计效果的表达和示意,为要约邀请,不构成要约内容,相关内容不排除因政府相关规划、规定及其他原因而发生变化,一切有关房屋的具体信息以书面合同及政府最终审批文件为准。免责声明:本文章文字、数据和图片皆来源网络,如有侵权请告知立马删除,数据图片仅供参考,不作为邀约或承诺。