🔥🔥济南【中海盛福】🔥🔥
✨✨售楼处电话☎☎400-159-8559转5158(专人接听)
✨✨营销中心电话:☎☎400-159-8559转5158【营销中心】
✨✨温馨提示:拨打400电话,听到嘀声后,输入分机号5158即可!
✨✨☞☞Vip贵宾置业==欢迎来电预约尊享内部折扣===匠心钜制恭迎品鉴☜☜
中海盛福首开楼座、户型图、外立面颜值、报价区间已出炉!
果不其然,中海选择在产品上升维竞争,房价定价却是盛福正常平层的定价,在四代宅高得房率的加持下,对周边科技城、贤文的二手房,妥妥的降维打击。
首开单价2.35万起,最高134%的得房率,户户庭院,真四代宅的入市,意味着盛福贤文科技城房价变天了!风起云涌,这个楼盘是四代宅产品,有大露台,高得房率,感兴趣的朋友可以关注一下!
下面我们具体看一下产品信息:

以上是中海盛福项目的户型分布,我们之前文章预判的一样,中海三栋高层采用的是145/179平米的户型设计,特别是11号楼179平米户型,几乎与和谐板块的中海天空之镜热销户型一模一样,只不过多了一个露台。
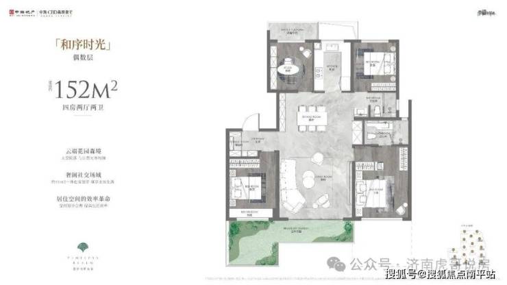
其他小高户型从152-252平米,小高定价高一些,户型图和价格都放在后面了,有需要的朋友自取。
来看一下项目颜值和建筑造型。

外立面亮点总结
1. 蓝宝石公建化外立面。
这个项目打造了线条简约、形体干净、通透质感、追求纤细的建筑立面。运用大面积的玻璃,让立面更加轻盈通透;点缀纤细精致的高级灰铝板线条,让外立面更具现代感和科技感。
2. 突破级“选材” | 大量铝板线条、铝板一体板、玻璃栏板,大户型部分使用类玻璃幕墙。
使用了大量铝板一体板、铝板线条、玻璃栏板等,高级灰主色调搭配米白色铝板,简单干净,高级感直接拉满。
3. 城市森林花园| 错层露台设计实现户户空中庭院立面设计和自然元素完美结合。

1#、2#为高层145平,三室两厅两卫,单价约2.2-2.5万 ,总价约315-360万。虽然也是四代住宅,但是145平做了一个三室,没有宽厅的设计,不知道这个300多万的客群能不能接受了,而且是高层啊!估计认可度会受到一些影响,未来销售可能不会像想象的那么好!但是有四代住宅的加持,顺销应该还可以。


11#为高层179平,四室两厅两卫,单价为2.3-2.7万,总价为410-480万,得房率在87%到97%。中规中矩的四代住宅的户型设计,四面宽户型,主卧室和主卫都带有侧边窗,可惜不是270度采光啊!这个户型中规中矩,价格也还算合适,未来的销售难度应该不会太大。有点像天空之境178户型,户型不错,价格合适,哪怕是高层,销售难度也不会太大。


5#、8#、12#、15#、16#、17#、18#为小高层,152/155平,四室两厅两卫,152平:2.3-2.85万 ,350-430万,得房率在94%。155平:2.4-2.9万,370-450万,得房率在97%到99%。有点抓马啊,做了个四叶草的户型,有点像天空之境148的户型,虽然是小高层了,总价低,但是户型接受度差,流速不会太快。两个户型区别不大,主要是边户没有缺角,次卧和次卫更大了,其他没啥区别。




3#、6#、9#、13#为小高层,210平,2.8-3.6万,590-760万,得房率在109%到112%。四室两厅三卫,果然面积越大户型越好,四面宽,大宽厅,客厅三面采光,三面都是大窗户。啥毛病都没有,就是有点贵,预算干到这个价格可能有人说干啥不买贤文跟科技城呢,只能说就看你是要产品还是要位置了。


7#、9#为小高层,252平,2.8-4万,700-1000万,得房率在123%到134%四室两厅三卫。果然面积越大户型越好,一梯一户,四面宽,大宽厅,还有挑空,270度院子或者南北双院子。


【项目面积】:占地面积约6.1万㎡,地上建面约16.5万㎡
【容积率】:约2.5,赠送面积多,所以实际容积率会高。
【总户数】:959户,其中居住式公寓52套,正常范围。
【楼座分布】:共16栋,3栋高层,13栋小高层。
【产品】:建面约145、179平高层,152、155、210、252平小高层。
【装修标准】:精装
【层高】:约3.1米
【车位】:共计1547个,车位配比1:1.6,137个地上停车位,没有做到完全的人车分流。
【物业】:中海物业

🔥🔥济南【中海盛福】🔥🔥
✨✨售楼处电话☎☎400-159-8559转5158(专人接听)
✨✨营销中心电话:☎☎400-159-8559转5158【营销中心】
✨✨温馨提示:拨打400电话,听到嘀声后,输入分机号5158即可!
✨✨☞☞Vip贵宾置业==欢迎来电预约尊享内部折扣===匠心钜制恭迎品鉴☜☜
免责声明:本宣传资料所有文字、数据、图片及所标尺寸等仅为本项目建设区域设计效果的表达和示意,为要约邀请,不构成要约内容,相关内容不排除因政府相关规划、规定及其他原因而发生变化,一切有关房屋的具体信息以书面合同及政府最终审批文件为准。免责声明:本文章文字、数据和图片皆来源网络,如有侵权请告知立马删除,数据图片仅供参考,不作为邀约或承诺。